QQ登录

只需一步,快速开始

登录 | 注册 | 找回密码

三维网

 找回密码
 注册

QQ登录

只需一步,快速开始

展开

通知     

查看: 2603|回复: 8
收起左侧

[讨论] CAD全國比賽試題

[复制链接]
发表于 2017-6-10 15:00:19 | 显示全部楼层 |阅读模式 来自: 中国浙江嘉兴
特征建模
主题分类用于问题归类:

马上注册,结识高手,享用更多资源,轻松玩转三维网社区。

您需要 登录 才可以下载或查看,没有帐号?注册

x
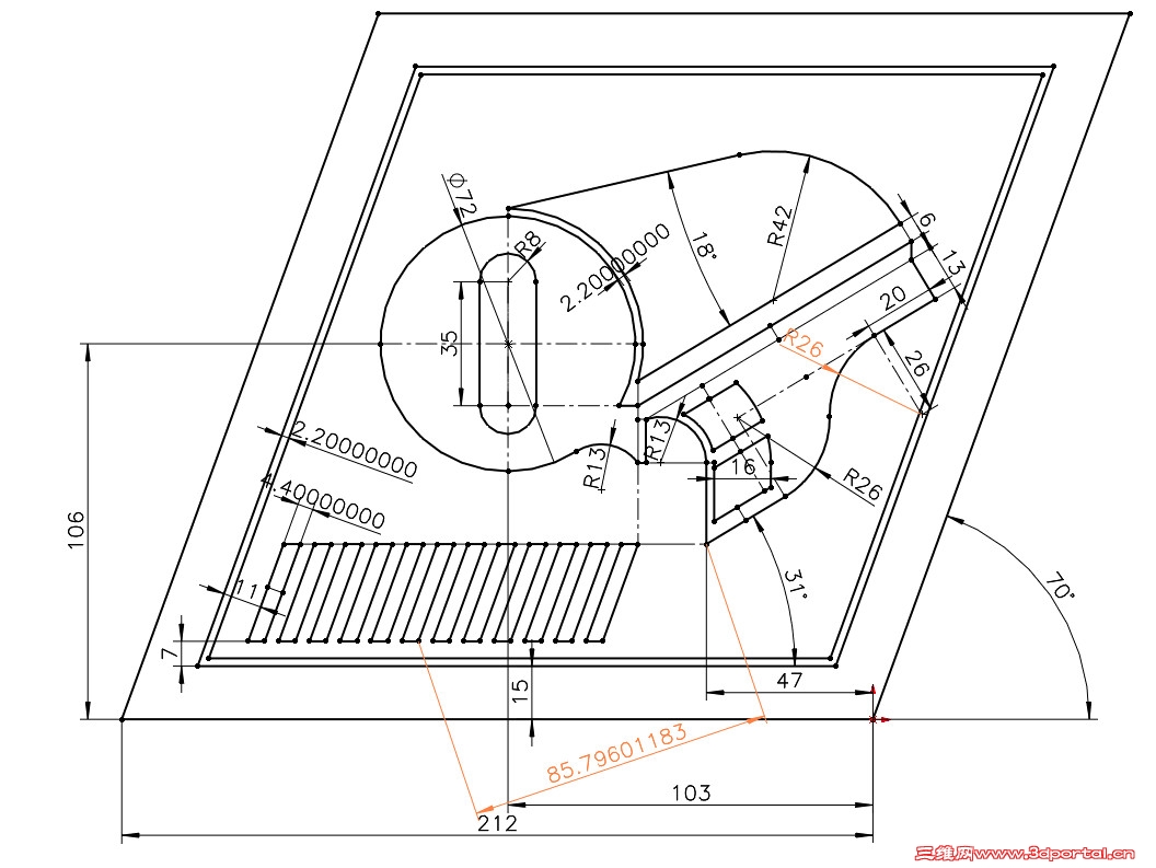
他網看到的題目,如下試作了,就不知道對不對.
  m  }1 Q" V; v9 D7 p& \, i" y" O+ {7 r' ~6 c8 R
諸大有興趣試作相互比對了!5 P& D- t! d6 d) k8 ~3 ?; n" q

8 i, ^1 X7 X+ n, b% H8 w1 G. B 1.png # v) ]4 F' R$ I5 k0 X

& V: t% `' ~% v2 R  T8 A H08.png
% D/ G& \8 c9 H) `( s
: u* }+ J& J8 s8 e5 f$ l% q! h 2.png 5 h6 e5 T1 B, G5 M4 n* U* a7 R
& ?' v* d: G$ P; L4 ^+ m7 \
3.png ( s9 N2 z- Q$ N% C: d, o. X7 |: W
发表于 2017-6-11 20:19:18 | 显示全部楼层 来自: 中国广东肇庆
这图看上去有点晕,估计一时半刻搞不清其中的关系。
 楼主| 发表于 2017-6-12 17:22:35 | 显示全部楼层 来自: 中国浙江嘉兴
如下有人畫出,但有差異,不知是不同軟件作畫的精度因數,還是某個步驟有差異造成的??
- D% n3 a9 U" }, k1 R
) ^2 u& \9 u7 q9 k2 O就沒人想研究一下嗎?- s8 L6 V+ W: D. L+ @

( Z5 d/ Z/ g# _, k) s9 u
- c8 [$ T/ _: m" `1 U5 d  Z: ], v 012323.jpg ' t$ a$ x" K/ n6 J& r5 d1 {
发表于 2017-6-12 17:49:09 | 显示全部楼层 来自: 中国广东肇庆
ryouss 发表于 2017-6-12 17:22  V4 [& Z: Q4 D: |5 x
如下有人畫出,但有差異,不知是不同軟件作畫的精度因數,還是某個步驟有差異造成的??2 b* e+ [* R2 @/ s- A

3 @. j8 f/ k/ ]. |5 ?就沒人想研究一下嗎? ...

+ e! S! n2 ^8 q- S今天太热,现在有点头痛,晚上找个时间画一下看看。
发表于 2017-6-12 22:18:15 | 显示全部楼层 来自: 中国广东肇庆
本帖最后由 SW2016 于 2017-6-12 22:35 编辑 & U$ A5 v$ u& `- b4 E

3 q# f: X+ R# w/ U1 g2 F1 ?5 X: X画了一下,看得有点眼花,不知有没有看错。8 P* p6 @( d2 `" [5 g! K0 y3 t
草图.jpg : ^8 N, Q+ M! Q
CT1.jpg
4 t& K7 ?7 V0 E( V2 ]4 D' N( g7 K+ { CT2.jpg
发表于 2017-6-12 22:27:41 | 显示全部楼层 来自: 中国广东肇庆
找了半天,没找到J=13在哪。6 T% Z" Q; h8 q! I  p/ u
出现差异的原因应该是下面那排斜孔,我这部分的草图不是用阵列,而是用等长关系来约束。

评分

参与人数 1三维币 +3 收起 理由
阿帕奇 + 3

查看全部评分

 楼主| 发表于 2017-6-13 09:06:41 | 显示全部楼层 来自: 中国浙江嘉兴
本帖最后由 ryouss 于 2017-6-13 09:44 编辑 & Z) h% ?) b# ?  z. `$ t
SW2016 发表于 2017-6-12 22:27
: F8 K% h! x2 S2 n7 T9 ?  n1 r找了半天,没找到J=13在哪。9 a% m& a5 n5 L. z: Y6 l4 S
出现差异的原因应该是下面那排斜孔,我这部分的草图不是用阵列,而是用等长关 ...
" Z0 h) c1 W( N; n( }7 g
謝謝S大的參與支持
* u( [7 C# J' E2 @; P! B
6 M, G; W( \" W# A$ t8 z如下圖1,知道差異點啦!原來是兩個尺寸看錯位置了,圖2是正確的.% A* S8 F' ^: b5 M
- O9 R" {) O+ v: w' W. W) L
圖1" l. d- r' h" Z$ o. @# U( H+ C
4.png
* I  f, k" n1 x7 i8 s, V% s4 |/ h4 y6 ?4 L; M% @0 k+ ]# n2 r

7 L" C% }; j- X* E' i6 l1 U( |. l# M0 A3 f# W( p
圖2& n4 g  x/ A' n: t) }

1 n, P- N/ @7 D7 B 5.png
. d8 `3 n6 V. f8 P& S7 O$ O; o
发表于 2017-6-14 09:47:01 | 显示全部楼层 来自: 中国广东肇庆
做梁大这题需要点耐心,试画了一下,结果和5楼一样,就不上图了。

点评

謝謝關心!因開始看錯尺寸位置,和他者尺寸有出入才請諸大試做比對!  发表于 2017-6-14 10:16
发表回复
您需要登录后才可以回帖 登录 | 注册

本版积分规则


Licensed Copyright © 2016-2020 http://www.3dportal.cn/ All Rights Reserved 京 ICP备13008828号

小黑屋|手机版|Archiver|三维网 ( 京ICP备2023026364号-1 )

快速回复 返回顶部 返回列表