QQ登录

只需一步,快速开始

登录 | 注册 | 找回密码

三维网

 找回密码
 注册

QQ登录

只需一步,快速开始

展开

通知     

查看: 2406|回复: 2
收起左侧

[求助] 直线振动筛CAD图纸

[复制链接]
发表于 2018-1-18 11:56:38 | 显示全部楼层 |阅读模式 来自: 中国山东济宁
安装
主题分类用于问题归类:

马上注册,结识高手,享用更多资源,轻松玩转三维网社区。

您需要 登录 才可以下载或查看,没有帐号?注册

x
各位朋友: $ E( b( O* l  v
    你们好6 w" l6 X  p3 f  Z6 q- |7 @
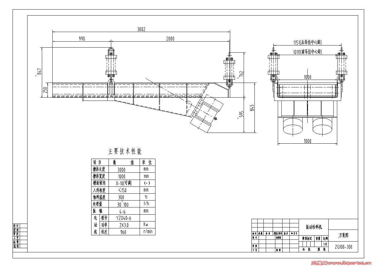
  谁有直线振动筛的图纸,能否发给我一份,只要大概的装配图就可以了,我做一个方案需要这个图纸。不胜感激。
) N% ]$ y/ v! S* p* u4 e' q3 k: g
发表于 2018-1-19 08:36:27 | 显示全部楼层 来自: 中国河北唐山
发你一个
烧结振动给料机.png

评分

参与人数 1三维币 +5 收起 理由
2005llnn + 5 鼓励积极应答和参与的回帖。

查看全部评分

 楼主| 发表于 2018-1-25 16:51:18 | 显示全部楼层 来自: 中国山东济宁
zhaowenzhu 发表于 2018-1-19 08:36
" c7 a; q' i& ^0 V4 E7 l, \发你一个

6 |7 a4 z* B0 ]5 K$ L$ m5 J9 w; q谢谢,
发表回复
您需要登录后才可以回帖 登录 | 注册

本版积分规则


Licensed Copyright © 2016-2020 http://www.3dportal.cn/ All Rights Reserved 京 ICP备13008828号

小黑屋|手机版|Archiver|三维网 ( 京ICP备2023026364号-1 )

快速回复 返回顶部 返回列表