QQ登录

只需一步,快速开始

登录 | 注册 | 找回密码

三维网

 找回密码
 注册

QQ登录

只需一步,快速开始

展开

通知     

查看: 4106|回复: 9
收起左侧

[求助] 手动液压机设计问题

[复制链接]
发表于 2018-6-25 21:07:04 | 显示全部楼层 |阅读模式 来自: 中国内蒙古呼和浩特

马上注册,结识高手,享用更多资源,轻松玩转三维网社区。

您需要 登录 才可以下载或查看,没有帐号?注册

x
大家好:2 \7 I3 A9 a7 [) }9 @4 ~
1.技术现状:, I4 M) {% c4 _1 C. q5 a% h2 W
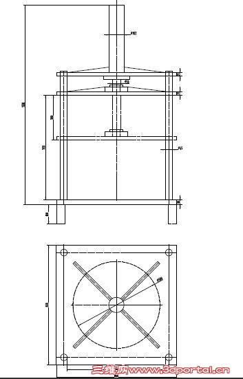
          我现在要给工件加压,使工件的不同段胶粘接面压紧,然后挤出气泡并使胶水固化,目前采用的手动压机【如图1】不能实现长时间【5小时】的保压,胶水固化时间约18小时。另外压向所用载荷较小,不同种类的工件需要的载荷约为500kgf~2t。4 q5 F$ I  a; q" I! I+ V1 |" K
2.问题:' w1 R4 ]% I; c0 W9 g& I' [, S
          我想重新设计一款压机【一种为自动补压型,但是由于工件所需载荷较小,担心自动补压压力脉动破坏工件】;【另外一种是设一一款手动压机。】5 U8 ~, N& j- q* _- y; M: E/ z+ v
          其中手动压机原理图如图2,采用手动泵+手动换向阀+液压锁+蓄能器+截止阀的模式,液压锁实现保压,同时采用蓄能器进行泄露补充,并在油缸进油腔的蓄能器后端附近装设截止阀,不知是否可行,希望大家给些建议和意见。发布推广信息 ) u! F& B: Z- t* e' B( `2 H! b/ E

原来使用的手动压机

原来使用的手动压机

重新设计的手动压机原理图

重新设计的手动压机原理图
图3.JPG

评分

参与人数 1三维币 +2 收起 理由
9619 + 2 鼓励有意义的求助或讨论的主题。

查看全部评分

 楼主| 发表于 2018-7-1 07:30:09 | 显示全部楼层 来自: 中国内蒙古呼和浩特
高手们发言帮忙啊
. h9 X# U' h: O1 x. o5 t6 T9 g" w
发表于 2018-7-7 17:07:38 | 显示全部楼层 来自: 中国河南安阳
6号件最好在3号与4号之间,不然液压锁有可能不起作用了。
( s& i! E+ y% I' `4 {
4 P, Y5 `" g8 l4 i- L& v球阀的泄漏量远小于液压锁,设置球阀比较可靠。
 楼主| 发表于 2018-7-17 17:41:35 | 显示全部楼层 来自: 中国内蒙古呼和浩特
9619 发表于 2018-7-7 17:07
( \; `5 ~5 ?' n- `/ p8 c$ T6号件最好在3号与4号之间,不然液压锁有可能不起作用了。
4 t4 P. W- {9 m  [2 _9 f3 a
. D+ t7 f1 ?) v/ U; J' U5 E7 l球阀的泄漏量远小于液压锁,设置球阀比较可靠 ...

& l4 l7 u: V" Q1 p4 C$ e手动泵内部有吸油和出油单向阀,液压锁应该能打开吧?
发表于 2018-7-18 09:46:20 | 显示全部楼层 来自: 中国浙江宁波
这么小的压力,保压时间又这么长,建议你用手动螺纹压紧吧
+ k" K5 ~% H, o9 g
发表于 2018-7-18 09:47:39 | 显示全部楼层 来自: 中国浙江宁波
你这个液压系统手动的,蓄能器的油都要你打老半天,哪有效率
发表于 2018-8-8 10:10:43 | 显示全部楼层 来自: 中国山东青岛
你为什么不用气缸?200的气缸7MPA就能到2t,你放个减压阀就能减出来500kg,那个的压力脉动肯定破坏不了工件,一直打着压保压就行了。
发表于 2019-1-9 20:08:57 | 显示全部楼层 来自: 中国浙江宁波
弄个电动执行器加装load cell带显示的是不是就可以了?
 楼主| 发表于 2021-10-16 20:48:42 | 显示全部楼层 来自: 中国内蒙古呼和浩特
zhenzz 发表于 2019-1-9 20:087 p7 B9 Y4 M- q  G3 H; \+ }: ?8 v
弄个电动执行器加装load cell带显示的是不是就可以了?
0 o- a3 j6 l% Z- z0 r( ~/ H/ n: t2 z
您说的电动执行器,由什么动力驱动,伺服电机还是?
发表于 2021-11-7 20:01:39 | 显示全部楼层 来自: 中国浙江杭州
lszdyx 发表于 2021-10-16 20:48. Q- E% H, J% n2 f5 r( @
您说的电动执行器,由什么动力驱动,伺服电机还是?
4 z# J9 k, ]+ r2 x, ~
伺服电机带滚珠丝杠
发表回复
您需要登录后才可以回帖 登录 | 注册

本版积分规则


Licensed Copyright © 2016-2020 http://www.3dportal.cn/ All Rights Reserved 京 ICP备13008828号

小黑屋|手机版|Archiver|三维网 ( 京ICP备2023026364号-1 )

快速回复 返回顶部 返回列表