QQ登录

只需一步,快速开始

登录 | 注册 | 找回密码

三维网

 找回密码
 注册

QQ登录

只需一步,快速开始

展开

通知     

查看: 2983|回复: 5
收起左侧

[已答复] 焊接件怎么画,怎么才能出来材料表

[复制链接]
发表于 2019-9-2 23:18:09 | 显示全部楼层 |阅读模式 来自: 中国河北邯郸
安装
主题分类用于问题归类:

马上注册,结识高手,享用更多资源,轻松玩转三维网社区。

您需要 登录 才可以下载或查看,没有帐号?注册

x
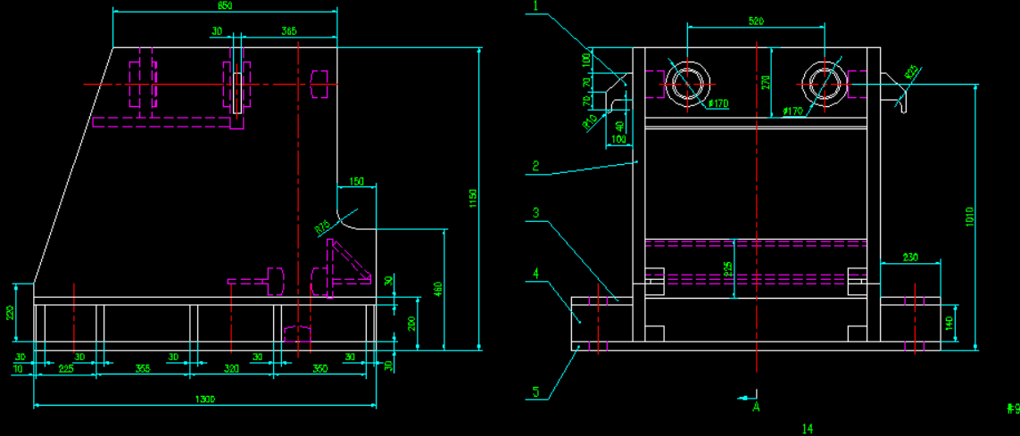
焊接件怎么画,怎么才能出来材料表
9 ^2 I/ n, k# K5 w 捕获.PNG
1 s' M/ E- J1 z# b* Z+ B5 A8 o
( H% t% p! [8 W5 |5 \草图拉伸出不了明细表吧。
 楼主| 发表于 2019-9-3 22:42:32 | 显示全部楼层 来自: 中国河北邯郸
还望高手指点一二啊。
发表于 2019-9-4 08:04:39 | 显示全部楼层 来自: 中国山东潍坊
本帖最后由 o1ojacko1o 于 2019-9-4 13:48 编辑
/ M0 l, Y( f) v% [8 F- w& `. O7 {4 a- o+ w* i/ K8 f
1.做零件的时候要点开 焊件* e3 ^7 H9 K; j1 j( Y. ~- B
2.做特征时候不是同一个焊接项目 要避免合并实体0 D! p) e' Q3 K' r7 y1 O2 |
3.零件做完后在 featuremanager 切割清单处 右键更新 建立切割清单项目
) W* T% r) [8 g* D1 b/ H/ @" d4.给每一个 切割清单项目填写属性: W7 R1 L- l2 e: A" |9 ?1 E. v. n
   (你需要在切割清单里体现什么属性就填什么,其中 material 自动链接零件材料属性  QUANTITY 数量自动填写)" b- W) @; v( s9 W* P$ L8 V* T
5.工程图中 自动零件序号  然后拉出焊件切割清单  这里你需要做一个 适合你用的模板
- B: w' a, V6 `2 S+ O9 v2 }( o/ b" \( t) u
这里有个建议:5 C) y" y& |3 [- m& d- e
焊接件一般是 下料 焊接 加工  + ~* _- z. f$ ~* I7 F
建议你把焊接单独做一个配置 加工做一个配置 这样有两个好处
8 [. c0 T8 t3 _1 a; l2 V' @0 s 第一是方便出下料图 ( d0 B- o# O, _8 _. U5 I7 P
第二个是方便下料通用 比如通用的一个板 加工时候 一个要打孔另外一个不用 如果不做焊接这个配置的话 会出两个切割清单项目
 楼主| 发表于 2019-9-6 09:20:59 | 显示全部楼层 来自: 中国河北邯郸
o1ojacko1o 发表于 2019-9-4 08:04
3 [" Q0 _% O2 ^* H1.做零件的时候要点开 焊件9 T3 O  ^! E( J' M& g8 S3 [
2.做特征时候不是同一个焊接项目 要避免合并实体
% f* i' i8 u/ {3.零件做完后在 featuremana ...
( D1 y# M$ F6 ^8 K4 s( w% k& B
谢谢,按照你的步骤操作了
6 h" E3 [0 F+ |7 a- F8 l发现不能镜像和阵列是怎么回事?
 楼主| 发表于 2019-9-6 09:22:36 | 显示全部楼层 来自: 中国河北邯郸
o1ojacko1o 发表于 2019-9-4 08:04
( q2 g) Z2 O) L1.做零件的时候要点开 焊件
9 e) `3 a8 K" f: H; n# Q2 w2.做特征时候不是同一个焊接项目 要避免合并实体  E% U; {3 b- Q, s& y
3.零件做完后在 featuremana ...

6 x) i$ q5 j" F谢谢,按照你的步骤操作了
) l9 }" g+ \( e9 T3 C发现不能镜像和阵列是怎么回事?
发表于 2019-9-6 10:41:39 | 显示全部楼层 来自: 中国山东潍坊
LCW1977LL 发表于 2019-9-6 09:205 N/ F& L' W/ J/ s
谢谢,按照你的步骤操作了
7 e9 h' A, w2 k. s+ x- d发现不能镜像和阵列是怎么回事?
2.做特征时候不是同一个焊接项目 要避免合并实体
3 I" h, ?- Z3 E% t9 [' J
; e- y) x2 N( j" ^5 U; W; b) j
因为你之前的镜像和 阵列 源都是特征3 b2 H9 r+ o7 P
你需要的 镜像和阵列实体

评分

参与人数 1三维币 +6 收起 理由
阿帕奇 + 6

查看全部评分

发表回复
您需要登录后才可以回帖 登录 | 注册

本版积分规则


Licensed Copyright © 2016-2020 http://www.3dportal.cn/ All Rights Reserved 京 ICP备13008828号

小黑屋|手机版|Archiver|三维网 ( 京ICP备2023026364号-1 )

快速回复 返回顶部 返回列表