QQ登录

只需一步,快速开始

登录 | 注册 | 找回密码

三维网

 找回密码
 注册

QQ登录

只需一步,快速开始

展开

通知     

查看: 5618|回复: 8
收起左侧

[已解决] 这个钣金件solidworks怎么画?

[复制链接]
发表于 2006-12-6 15:37:33 | 显示全部楼层 |阅读模式 来自: 中国浙江绍兴

马上注册,结识高手,享用更多资源,轻松玩转三维网社区。

您需要 登录 才可以下载或查看,没有帐号?注册

x
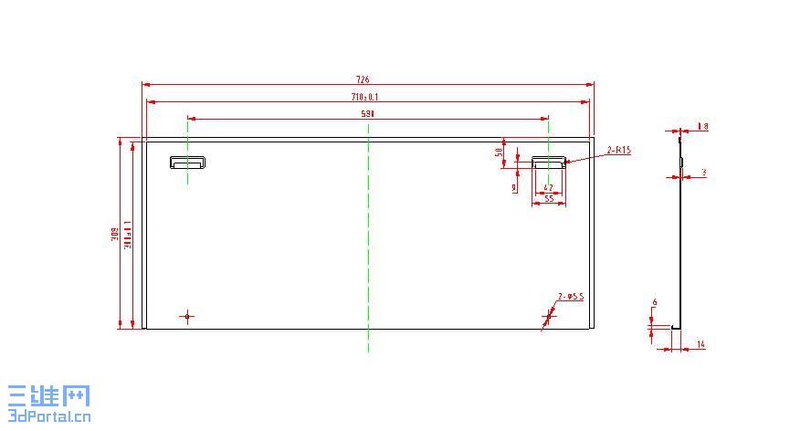
请大家帮帮忙,这个就是四周压下一个毫米,再折弯,solidworks好象画不起来

平面图

平面图
发表于 2006-12-6 22:22:54 | 显示全部楼层 来自: 中国北京
可以画出来的!!!!!!!!使用成型工具进行绘制!!!!!!!!!!!!!
 楼主| 发表于 2006-12-7 08:16:48 | 显示全部楼层 来自: 中国浙江绍兴
不行的,它还有折弯,要考虑展开
发表于 2006-12-7 12:55:02 | 显示全部楼层 来自: 中国江苏苏州
lz能不能把全部的图纸发上来
发表于 2006-12-7 13:13:15 | 显示全部楼层 来自: 中国广东深圳
可以画的
8 f  [/ w( V2 I+ x0 r& p不过有些地方看的不是很清楚
 楼主| 发表于 2006-12-7 16:01:23 | 显示全部楼层 来自: 中国浙江绍兴

原件

还有一个图我也不会画,请大家帮忙解决.在这里先谢谢了.总感觉solidworks画钣金不大顺手

底板.rar

16.71 KB, 下载次数: 42

autocad文档

 楼主| 发表于 2006-12-7 16:03:01 | 显示全部楼层 来自: 中国浙江绍兴
这是另外一个,大家也帮忙看看

左右侧板.rar

19.32 KB, 下载次数: 30

发表于 2007-3-1 20:17:56 | 显示全部楼层 来自: 中国上海
lz对这样钣金件 你最好用CAD画。反正扣系数一样的。
发表于 2007-3-1 21:17:56 | 显示全部楼层 来自: 中国上海
你这工件是用段差模做的吧??图能画的~!!!你可以吧内R改成0.01(忽略不计,内R只关系到拼角衔接问题,和展开无关系所以改到最小,展开后照样会扣系数),其他几条边同样道理做衔接法兰~~
发表回复
您需要登录后才可以回帖 登录 | 注册

本版积分规则


Licensed Copyright © 2016-2020 http://www.3dportal.cn/ All Rights Reserved 京 ICP备13008828号

小黑屋|手机版|Archiver|三维网 ( 京ICP备2023026364号-1 )

快速回复 返回顶部 返回列表