QQ登录

只需一步,快速开始

登录 | 注册 | 找回密码

三维网

 找回密码
 注册

QQ登录

只需一步,快速开始

展开

通知     

查看: 8262|回复: 29
收起左侧

[已解决] 这个铜套为什么总卡死

[复制链接]
发表于 2006-12-15 16:31:42 | 显示全部楼层 |阅读模式 来自: 中国河北秦皇岛

马上注册,结识高手,享用更多资源,轻松玩转三维网社区。

您需要 登录 才可以下载或查看,没有帐号?注册

x
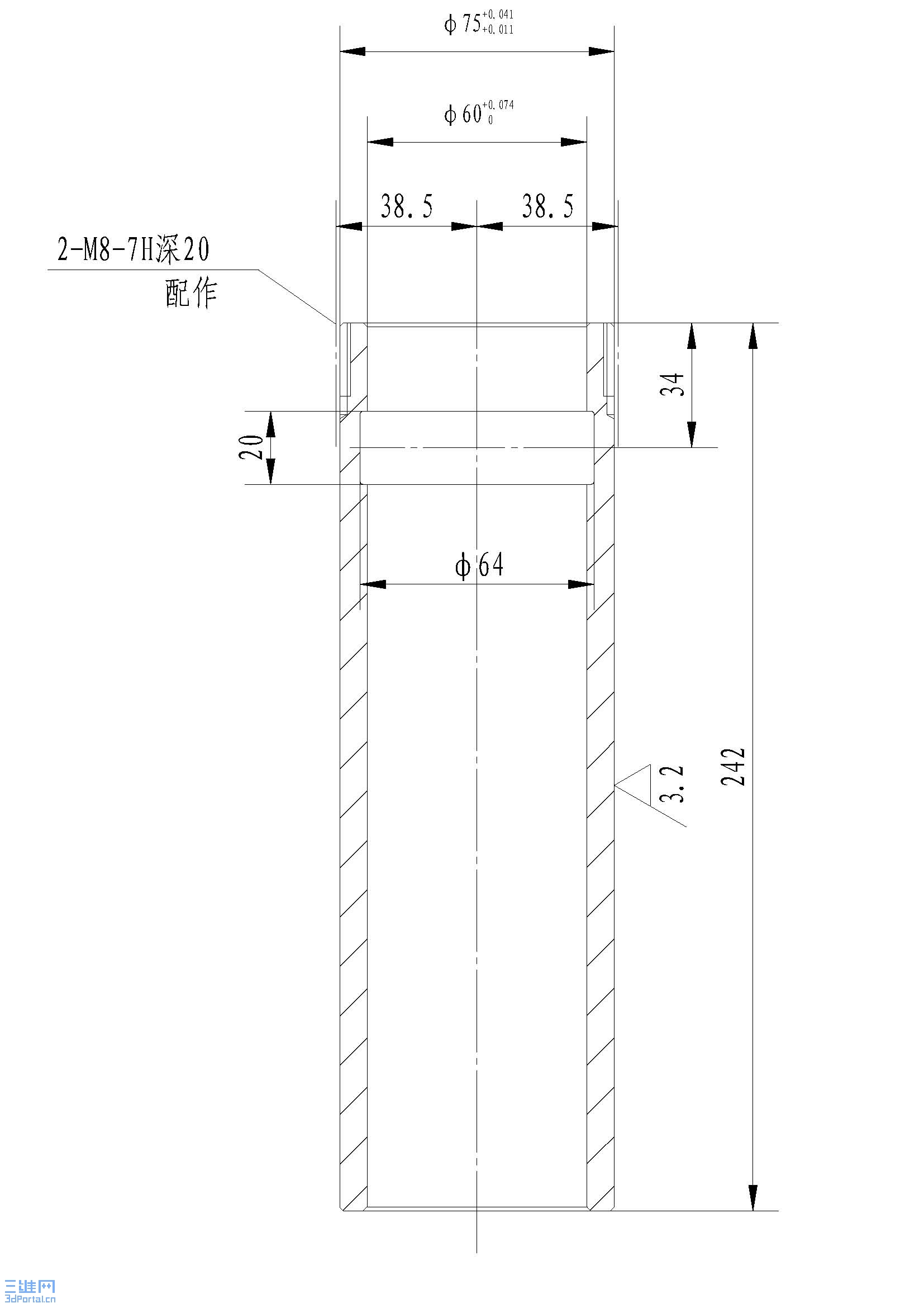
我单位设备上有这样一个铜套(见图),低速重载使用。经常出现轴和套卡死。谁能告诉我是什么原因?
. D( L, v5 _8 U, u5 i7 i& t0 P( v
8 k# V$ V, q) a+ V% r! }7 Y1 m6 p[ 本帖最后由 2374 于 2006-12-24 16:38 编辑 ]
1.jpg
2.jpg
发表于 2006-12-15 16:55:47 | 显示全部楼层 来自: 中国上海
润滑不良,根据压强的大小选择适合针入度的润滑油,铜套內壁开油槽,采用循环供油系统。

评分

参与人数 1三维币 +5 收起 理由
Ryo.Zhang + 5 应助

查看全部评分

发表于 2006-12-15 20:19:13 | 显示全部楼层 来自: 中国河北沧州
1检查一下套的加工艺,精车---淬火-----铲油槽--磨削;
( Y6 N. D5 r6 W! N: r8 K5 R2检查一下轴与轴套的材质,轴尽量选择中碳钢以上的材质,否则承压能力较小;) f; t6 ]1 {7 I5 a# S
3检查一下轴是否有变形或加工精度不够;
: Z/ |. i, r+ Q# ]3 M5 p- n4建议楼主在套上加工轴向油槽.

评分

参与人数 1三维币 +6 收起 理由
Ryo.Zhang + 6 应助

查看全部评分

发表于 2006-12-16 06:11:01 | 显示全部楼层 来自: 中国山东青岛
配作的配合?应该考虑同轴度问题
发表于 2006-12-16 09:08:05 | 显示全部楼层 来自: 中国河南新乡
1.根据结构建议采用自润滑轴承,因为低速重载,只要按载荷情况选取就行。6 N: a6 E9 J6 s- V
2.采用骑缝螺钉时应注意防止铜套变形(我就犯过这种错)。
$ n- X4 w+ @$ L  u/ T% J4 p3 B0 \3.选合适的配合公差,若精度不高时可放大配合间隙。

评分

参与人数 1三维币 +6 收起 理由
2374 + 6 应助

查看全部评分

发表于 2006-12-16 09:11:26 | 显示全部楼层 来自: 中国江苏扬州
铜套与轴的配合面过长...........
# J" U6 Y: w( O0 c4 E1 r' E( h5 b$ L" f$ H
φ60的轴两端有30~40配合面就可以了..............
+ q" |: {- R7 F: Y1 m
1 x# M. T1 O3 [+ G% U+ z+ x[ 本帖最后由 山联2 于 2006-12-16 09:14 编辑 ]
 楼主| 发表于 2006-12-16 09:35:27 | 显示全部楼层 来自: 中国河北秦皇岛
我个人比较同意6楼的看法,配合面过长。但有些同事强调安装轴的两端孔同轴度不够。很惭愧,我们的工艺条件不够,固定轴的上下两个孔是加工两个套焊上去的。/ d1 G& B4 Q: E# Z1 I; t4 W8 t8 i, D& j* n
关于配合,现在选用的是H14/f14。应该说间隙已经够大,是不是有些过大了。还请各位继续帮忙# T" ^7 a: }6 c+ B% Y# y
4 \5 ~" A. h7 F, A8 [  n0 Y
[ 本帖最后由 ca6 于 2006-12-16 09:45 编辑 ]
发表于 2006-12-16 10:53:18 | 显示全部楼层 来自: 中国河北沧州
听了楼主的介绍,我认为问题就是润滑不良,两个耳孔应该焊接后镗孔,我认为润滑不良和两个耳孔的同轴度较差是主要原因.
发表于 2006-12-17 08:04:30 | 显示全部楼层 来自: 中国山东烟台
造成卡死的原因有两个:1 ,套太长.2,没有油槽
发表于 2006-12-17 12:39:57 | 显示全部楼层 来自: 中国河北沧州
我认为铜套并不是太长,因为它的长短是根据设计载荷确定的,我单位现在用的铜套比这个还要长,但是没有出现问题,请楼主说明是否该载荷只有一个铜套连接?
发表于 2006-12-17 22:22:13 | 显示全部楼层 来自: 中国江苏
可以用SF-1轴承,若条件表恶劣也可用JBD固体镶嵌轴承
发表于 2006-12-17 23:28:23 | 显示全部楼层 来自: 中国广西桂林
原帖由 songwei 于 2006-12-15 20:19 发表$ A2 w/ N+ u+ t4 [
1检查一下套的加工艺,精车---淬火-----铲油槽--磨削;
/ A- I/ J5 g! d5 c! s' l2检查一下轴与轴套的材质,轴尽量选择中碳钢以上的材质,否则承压能力较小;1 t0 g4 v8 h. i' A" X4 ~2 n9 e
3检查一下轴是否有变形或加工精度不够;
1 d+ X$ J3 g) e, w/ p* \4建议楼主在套上加工轴向油槽.
0 A% Y3 E# C9 Z$ I

9 g! y! ^/ O1 @0 m+ Z& h铜套也要淬火吗?
  F% i9 h9 c% I作为轴与轴套的配合,既然能作为轴的钢材,而且是重载的,材料设计是应该是没有问题的.我认为
* Z6 ]% k& r3 u8 g% Y5 W5 b1.是轴与轴套的长径比设计不合理.接触面过大.如果考虑定向的话,应该改为两个支撑.
. W7 l4 m  u/ |4 }& J2.润滑不良.那么长的配合面,仅仅在上断设一润滑槽,不够.应增加一到两道环槽,而且加纵两道纵向润滑糟.

评分

参与人数 1三维币 +5 收起 理由
2374 + 5 应助

查看全部评分

发表于 2006-12-18 03:59:05 | 显示全部楼层 来自: 中国山东青岛
仔细看看轴与套之间有无铜销出现,有的话是同轴度问题,如果没有应考虑滑动轴承设计及润滑方式
发表于 2006-12-18 16:53:43 | 显示全部楼层 来自: 中国江苏南京
润滑不好,其次结构也不太合理。可在两端装铜套,中间落空,铜套厚度可适当增加,同时加油槽。这样就不会卡死了。
 楼主| 发表于 2006-12-18 17:26:38 | 显示全部楼层 来自: 中国河北秦皇岛
原帖由 songwei 于 2006-12-17 12:39 发表
3 q/ d3 E$ }3 ^! }' }" ^我认为铜套并不是太长,因为它的长短是根据设计载荷确定的,我单位现在用的铜套比这个还要长,但是没有出现问题,请楼主说明是否该载荷只有一个铜套连接?

  t1 p% o) O7 z) S没错,只有一个铜套连接。
发表于 2006-12-19 08:14:01 | 显示全部楼层 来自: 中国河北沧州
如果一个铜套对支座加工的精度要求较高,在满足承载要求的条件下,把铜套断开较好。
发表于 2006-12-19 09:42:21 | 显示全部楼层 来自: 日本
这种零件首先要确认工作环境如何,温度高,要考虑铜套膨胀变形,粉尘多则要增加密封防护。
4 P. f1 b2 r' V3 Z8 j! }; r& l我看了图纸分析可能有以下原因:) h2 u! B' s8 }- ]- D
1.铜套材质不适合,不耐磨且易变形,应考虑使用合金铜,如锡铜,磷铜,铝铜7 N* o0 W, M! j& @  m9 [8 D" a. e) J
2.润滑不足,铜套内必须开油槽或用刮削刮出储油坑,使用好的润滑脂,如bostik 系列,可防止咬死状况的发生' C6 }8 g# E- V) ~  i
3.铜套内孔加工精度不够,导致接触不均匀,通常这样的铜套安装前要进行精研和刮削,这样才能保证负载均匀且耐磨
( F! N( K# L3 _% j0 @, S7 h+ j4.结构不合理,不知为何,图中的骑缝螺钉只有上面一边有,这样在受到负载后可能造成变形而卡死轴
2 l; T! m- ^5 F0 b! s6 A" @5.看图纸加工公差很大,这样会造成有的地方间隙很大,润滑脂流失,有的地方很紧,无润滑,铜套较长也是增加摩擦力的一个原因,分成2个铜套则不便于安装,不如把中间一段内径镗大1mm,类似于20长的那段,2端各留80长,这样不仅加工更容易,也给孔内增加了润滑脂容留空间,摩擦力也更小
0 Q, l8 p9 J6 I2 Z; p# m: a6.检查轴的状态,如圆度如何,锥度有多少,表面粗糙度不宜太大,会造成铜套磨损,也不能过小,过小的粗糙度无法形成足够有效的表面油膜,一般0.6-0.8即可

评分

参与人数 1三维币 +10 收起 理由
2374 + 10 应助

查看全部评分

发表于 2006-12-19 11:00:01 | 显示全部楼层 来自: 中国北京
楼上的说的很全面了,很有经验的
发表于 2006-12-19 16:47:39 | 显示全部楼层 来自: 中国浙江杭州
1 计算滑动轴承的比压即PV值对比所用材料的[PV]7 q9 y8 b, D& u7 U* x
2 润滑系数K确定:K=(pv^3)^1/2
) B  h, Z# u" s根据润滑系数确定润滑方式
2 q  I* p( l. f6 @" {! m9 j改进的方式就是变动公式里面的初始数据。- Q) i5 h; G$ ^/ Y, `( s
不要怪我不告诉你具体公式,因为要自己劳动才有所得,机械设计手册上都有的,滑动轴承部分
发表于 2006-12-20 10:07:52 | 显示全部楼层 来自: 日本
EN,精确的计算也是需要的,根据负载和材质等参数来确定如何改进铜套结构吧,比如中间镗空的话 2端到底留多少长度才合理
发表于 2006-12-20 13:31:41 | 显示全部楼层 来自: 中国湖北武汉

回复 #1 ca6 的帖子

建议:1 y/ h+ `' A9 D2 w
1)改图,铜瓦内孔和轴表面都要规定粗糙度要求,1.6即可(原来没有要求);
. I, X4 {* `0 j' Y$ @- C- {2)改图,在铜瓦内孔面上开润滑油槽(轴向和两端的圆周上);
6 @& H! E1 C9 h/ x3)改图,在该轴的径向处,打一注黄油孔,该孔从体外向铜瓦打穿,并在体外加装一黄油注油杯(以便定时注黄油)
" t/ `& F! N) I. c5 \4)在轴的两端外面,有相对运动摩擦地方也应该定期涂油。
发表于 2006-12-20 16:24:47 | 显示全部楼层 来自: 中国河南郑州
铜套太长了,润滑不好,很容易卡的
7 J  e! S& K% x: }: O& u# t同轴度不好,也会卡的2 v% ~, F8 i) o% c9 @4 U; s
如果要求不高,可以适当地放大配合间隙
发表于 2006-12-21 11:00:07 | 显示全部楼层 来自: 中国广东汕头
一般铜套固定不要采用骑缝钉,骑缝钉对铜套的强度有削弱的作用
3 T8 `  x5 b8 L. m0 S3 }可以用弹性垫圈代替或其它台阶,端盖等固定6 _6 K! f% E. Y+ E
铜套和轴之间的接触面不要太大,过大过长可以把它分成两断,
. e+ J3 ~2 h+ r( X3 L+ _( \- v在还没打进外孔时的配合是H8/p7,内径和轴的配合是G7/h7,; J) K6 m! [" C& _  L
铜套打进去后内孔收缩# S' i8 c) D: Z0 B: ~
铜套应该有进油孔,轴向油槽和径向油槽,使油均匀润滑到
9 K$ a  f+ t/ y整个铜套
, W8 B' {% M% c8 L) v. U' w9 s5 j2 q/ u7 ?- g. c$ r4 N& [5 J6 ^4 Z" x
[ 本帖最后由 zcp68941125 于 2006-12-21 11:04 编辑 ]
 楼主| 发表于 2006-12-26 09:03:57 | 显示全部楼层 来自: 中国河北秦皇岛

感谢

谢谢大家的发言。三维是好地方。大家的帮助让我受益匪浅。
发表于 2006-12-26 12:51:18 | 显示全部楼层 来自: 中国天津
谢谢楼主,谢谢17楼,谢谢大家让我这局外人也学到了很多知识。
发表回复
您需要登录后才可以回帖 登录 | 注册

本版积分规则


Licensed Copyright © 2016-2020 http://www.3dportal.cn/ All Rights Reserved 京 ICP备13008828号

小黑屋|手机版|Archiver|三维网 ( 京ICP备2023026364号-1 )

快速回复 返回顶部 返回列表