QQ登录

只需一步,快速开始

登录 | 注册 | 找回密码

三维网

 找回密码
 注册

QQ登录

只需一步,快速开始

展开

通知     

全站
6天前
查看: 2127|回复: 6
收起左侧

[已解决] 求德国哈威的一种双泵供油单作用缸系统的型号

[复制链接]
发表于 2006-12-19 17:20:36 | 显示全部楼层 |阅读模式 来自: 中国河北邢台

马上注册,结识高手,享用更多资源,轻松玩转三维网社区。

您需要 登录 才可以下载或查看,没有帐号?注册

x
我公司在现需要一种液压系统,该系统适用高低压双泵供油、执行机构为单作用油缸,具备高压溢流、低压卸荷、保压、电磁卸压放油(油缸自重回程),高压压力:16--25MPA      流量:2--8L/min   低压压力:1--4MPa    流量:63--90L/min    电磁铁控制电压:24V或220V。  我们的销售人员曾经见到过此类产品是德国哈威的产品,但没有记下型号。请问有知道这种产品型号吗?9 x- ]: ]$ A3 v2 r1 q" h
: |) U2 g& R1 o) Y2 R1 b+ Y
[ 本帖最后由 江边 于 2006-12-26 11:05 编辑 ]
 楼主| 发表于 2006-12-20 11:02:06 | 显示全部楼层 来自: 中国河北邢台
没有人知道吗?有类似的阀组可以给我推荐一下,要进口的。
发表于 2006-12-20 12:17:19 | 显示全部楼层 来自: 中国湖南长沙
一定要哈威原装的吗?自己设计原理,用进口阀件既可以了
发表于 2006-12-20 23:44:43 | 显示全部楼层 来自: 中国北京
你是找泵还是?0 S; Q* f! q4 ^6 o* R  m1 ?
HAWE有一泵多出口的泵。
0 b  G# I3 D+ M, o# Q+ Q( [9 o我这有HAWE的全套样本,但就是没看出你需要什么?
 楼主| 发表于 2006-12-21 08:41:24 | 显示全部楼层 来自: 中国河北邢台
我找的是一种阀组,适用于高低压组合泵,有如下功能:高压溢流、低压卸荷、保压、电磁卸压回程(油缸为单作用缸,靠活塞与活动横梁自重回程),该阀组结构紧凑,体积特别小。
: u- v. O( Z) J% X- n  多谢三楼四楼的朋友,请朋友们帮忙再给查一下。
 楼主| 发表于 2006-12-23 16:57:02 | 显示全部楼层 来自: 中国河北邢台
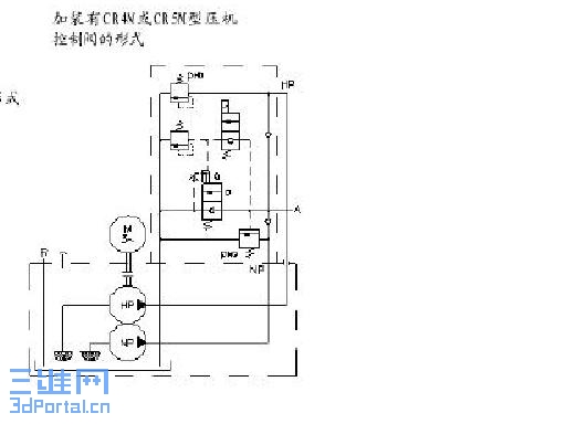
我找到了有关于该产品的部分资料液压原理图,由于对哈威产品不太了解,无法正确选取型号,请了解哈威产品的朋友帮助选取型号,请分别告知该套泵站型号与阀组型号6 S8 j" B, M; y% v) i
附液压原理图:
( c: m) l* `2 \& e" A 4 R% ^' D  s  W0 ^& b8 |& U. Z' L
% R" a5 S# G& i$ Z2 q  b
感谢楼主告诉我们问题解决方法!--by 江边
3 @3 Z+ j! a1 \- r: e& k
[ 本帖最后由 江边 于 2006-12-24 17:33 编辑 ]
未命名.JPG
 楼主| 发表于 2007-1-1 09:48:41 | 显示全部楼层 来自: 中国河北邢台
现在我找到产品的详细型号了,是哈威的CR型控制阀
. ?# J5 f: d$ W6 s& L0 t: s具体型号:CR型控制阀,规格4,电磁操作,电磁铁电压24V DC
& w: F" H2 `7 c% D  H& n# _谢谢各位朋友给予我的帮助,也谢谢三维给我们提供的这个交流平台。
发表回复
您需要登录后才可以回帖 登录 | 注册

本版积分规则


Licensed Copyright © 2016-2020 http://www.3dportal.cn/ All Rights Reserved 京 ICP备13008828号

小黑屋|手机版|Archiver|三维网 ( 京ICP备2023026364号-1 )

快速回复 返回顶部 返回列表