QQ登录

只需一步,快速开始

登录 | 注册 | 找回密码

三维网

 找回密码
 注册

QQ登录

只需一步,快速开始

展开

通知     

全站
8小时前
查看: 5902|回复: 37
收起左侧

[分享] 与大家分享一个好的CAD工具

[复制链接]
发表于 2006-12-30 16:11:34 | 显示全部楼层 |阅读模式 来自: 中国北京

马上注册,结识高手,享用更多资源,轻松玩转三维网社区。

您需要 登录 才可以下载或查看,没有帐号?注册

x
该工具有灵活编辑图框、标题栏、明细栏、粗糙度等功能
) S' Q0 a8 Z, t; F- L# y# w" s特别对绘制总明细表有用,只要把所有图的目录输入,自动生成总明细表。+ ?2 ~! x5 U. [# U  k8 y
安装方法如下:CAD2000以上版本
: \/ s, }6 b" G2 f7 W工具-选项-文件-支持文件搜索路径-添加-浏览到工具所在的目录0 N. s& [4 `6 \2 Y6 ?
确定即可,重启CAD后将会发现工具栏上增加一个“专用工具”的项目
+ y' G* |& L# d1 v. `点击下拉菜单就明白了,好工具尽在里面。
* C  z  g4 K" V5 A. Y/ J 3 h. B+ [5 x5 w/ Y/ T
注意:最好在2000-2004版本使用,更高版本常会出错。
) M% b; R9 L$ _6 H7 R# i8 Z- l6 z/ g) J" s6 r; f; f' k/ h
[ 本帖最后由 blackbird 于 2007-1-16 08:54 编辑 ]

cadtool2000.rar

166.51 KB, 下载次数: 279

评分

参与人数 1三维币 +3 收起 理由
blackbird + 3 奖!

查看全部评分

发表于 2006-12-31 19:33:30 | 显示全部楼层 来自: 中国安徽滁州

2006年最后的礼物

在2006年最后的一天,能找到这么好的东西,很高兴啊!谢谢了
发表于 2007-1-1 00:00:40 | 显示全部楼层 来自: 中国广东广州

06

谢谢分享!试一下再说好与不好
发表于 2007-1-2 19:03:47 | 显示全部楼层 来自: 中国上海
用一下看看,谢谢楼主
发表于 2007-1-2 20:40:34 | 显示全部楼层 来自: 中国江苏苏州
真的很好得一个工具,得下。  ]/ M/ C3 A/ U6 s4 L1 Z6 L
有了这个,效率相信提高很多。
发表于 2007-1-2 20:44:55 | 显示全部楼层 来自: 中国河北廊坊
这个工具可以帮助画标题栏和标注粗糙度,真的不错
发表于 2007-1-4 00:55:58 | 显示全部楼层 来自: 中国上海
做一个高效率工作者,而不是做一个努力工作者。# ?8 J; d6 @0 h: q' w
谢谢楼主的资料,特别是粗糙度,非常好
发表于 2007-1-4 12:01:17 | 显示全部楼层 来自: 中国河北邢台
真是很好得一个工具,有了这个我绘图的效率相信提高很多。支持!
发表于 2007-1-4 12:27:44 | 显示全部楼层 来自: 中国江苏扬州
真的吗?那就用用了,谢谢你啊
; A5 _( J: \3 w; ]不好用啊,我一装上去就说"内存不足,出现致命错误",你这东西是骗人的吧.看上去是用lisp语言写的啊,但是怎么搞的啊!
( S' D4 O0 S7 i
& I# }% l; |" t, r0 r& p[ 本帖最后由 dali 于 2007-1-4 12:46 编辑 ]
发表于 2007-1-4 12:43:06 | 显示全部楼层 来自: 中国重庆
下来看看啰,AUTOCAD比起其它二维软件效率相对较低
发表于 2007-1-4 14:25:43 | 显示全部楼层 来自: 中国湖南长沙
为什么我用却出现
8 m) {' E; Y1 [8 m2 d1 F
6 k4 |. B8 p* k) R8 P/ y"致命错误,内存不足"
0 c4 l8 b% n: ]6 R2 s6 }& q9 y3 \3 i! F6 B+ i" V8 a
我用的是CAD2006加机械工程师2006,为什么???难道是RPWT?
发表于 2007-1-4 15:25:25 | 显示全部楼层 来自: 中国福建南平
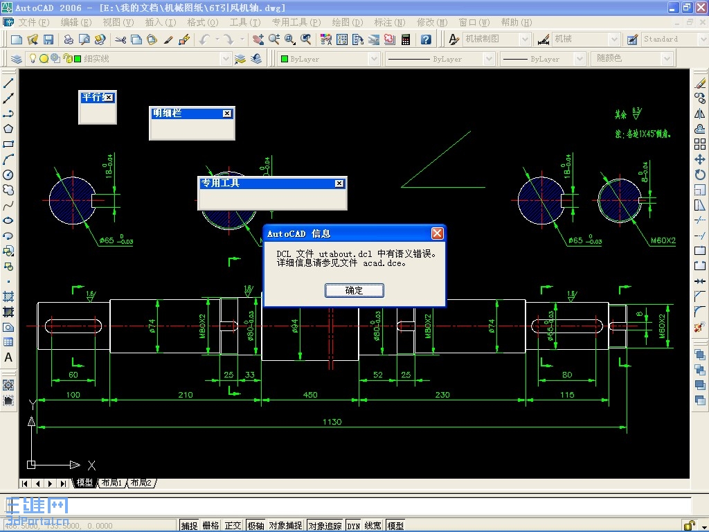
我用的是2006怎么出现以下错误?
Capture-1.jpg
发表于 2007-1-4 15:39:37 | 显示全部楼层 来自: 中国黑龙江齐齐哈尔
呵呵,刚刚看到.先看看好不好用.不过还是要先说一声谢谢
 楼主| 发表于 2007-1-9 21:45:07 | 显示全部楼层 来自: 中国北京

回复 #11 kkkliu82 的帖子

不好意思; z+ F- |9 k# }2 N& u  M; C8 t, R
本软件是针对cad2000编的
' {3 o7 ^+ H/ g) J6 M在2000~2004上试过多没有问题
- ]2 e  u% n3 C( F. wcad2006以上版本本人没有试过0 C5 h; d) [" E9 ^' |; w
1 z" l7 \/ J( K8 u9 c
在cad14上使用时出现过楼主说的现象; O2 l/ `6 H- O
但有些盗版的cad14上效果很好5 ]$ w4 {: \9 W
- E* g0 R$ k& t* G4 r! r8 A. F8 a
建议楼主在cad2000~2004上使用: k1 T4 m4 e7 h8 L
如果有问题再联系undefined
发表于 2007-1-9 21:57:14 | 显示全部楼层 来自: 中国广东河源
我再04里的也出现了问题来的.& s+ l1 \9 v1 L9 i
加载了之后呢?出现了如图看到的图片.
Snap1.jpg
 楼主| 发表于 2007-1-9 22:42:25 | 显示全部楼层 来自: 中国北京

回复 #15 aqb3322 的帖子

用小手拖动一下屏幕小白点就没有了4 Q  a4 Y, x, [. \+ G$ I
不影响画图。
, E3 _7 s4 I: d8 P0 j, l2 F+ R$ Y
0 n- _" J  u/ i5 \& c* W目前正在想办法解决7 z  e5 R# `  w, `0 y* F; s) F$ x
解决好了再与大家分享。) O9 g# B# ^' ^7 J5 ?( o" c
也希望有高手来一起解决这个问题。
发表于 2007-1-11 21:00:07 | 显示全部楼层 来自: 中国北京
cad2007能用不嘛
发表于 2007-1-11 21:09:04 | 显示全部楼层 来自: 中国广西百色
不会吧 现在都CAD2007了
发表于 2007-1-11 21:21:21 | 显示全部楼层 来自: 中国河北廊坊
我用的是CAD2006,还没有使用过2007
发表于 2007-1-12 01:17:38 | 显示全部楼层 来自: 中国四川自贡
我用2006的,会出现"内存不足"的提示,一点击确定,就关闭了程序,希望楼主尽力解决
发表于 2007-1-12 09:28:32 | 显示全部楼层 来自: 中国辽宁丹东
谢谢楼主,我回头会马上试试
发表于 2007-1-12 09:36:20 | 显示全部楼层 来自: 中国河北石家庄
有人说好。有人说不好。先下了再说,毕竟楼主辛苦的提供了个资料,试用一下。谢谢共享。
发表于 2007-1-13 21:33:17 | 显示全部楼层 来自: 中国江苏苏州
我装了之后,又删了,使用起来太差,不能修改,也不能删除。
发表于 2007-1-14 14:53:19 | 显示全部楼层 来自: 中国广东东莞
不好用版本太旧了
发表于 2007-1-15 22:23:09 | 显示全部楼层 来自: 中国陕西西安
先试用一下,不过还是要谢谢分享
发表回复
您需要登录后才可以回帖 登录 | 注册

本版积分规则

Licensed Copyright © 2016-2020 http://www.3dportal.cn/ All Rights Reserved 京 ICP备13008828号

小黑屋|手机版|Archiver|三维网 ( 京ICP备2023026364号-1 )

快速回复 返回顶部 返回列表