QQ登录

只需一步,快速开始

登录 | 注册 | 找回密码

三维网

 找回密码
 注册

QQ登录

只需一步,快速开始

展开

通知     

全站
6天前
查看: 3051|回复: 6
收起左侧

[讨论] 作立体图,补画左视图!

[复制链接]
发表于 2007-1-1 00:00:18 | 显示全部楼层 |阅读模式 来自: 中国江苏镇江

马上注册,结识高手,享用更多资源,轻松玩转三维网社区。

您需要 登录 才可以下载或查看,没有帐号?注册

x
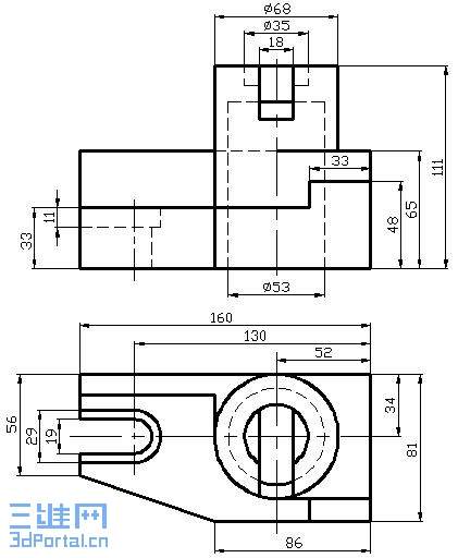
如图:作立体图并补画左视图!! z; E+ O. V7 `. C+ W2 H1 ?
; O* |2 A6 x# E$ i; F6 N) L3 y
尺寸有差的:33长度对应的宽为13
4 }% Z/ b7 Y8 }9 e2 Q: a
未命名.JPG
发表于 2007-1-1 07:30:54 | 显示全部楼层 来自: 中国辽宁抚顺
楼主这个贴子好,适合不同水平的朋友练手。
1.gif
发表于 2007-1-1 08:39:43 | 显示全部楼层 来自: 中国上海
的确还不错,不知道是我理解的问题还是怎么了,我总感觉这个图少了几个尺寸,正视图中的两个内孔的高度和槽的高度都没有呀。
 楼主| 发表于 2007-1-1 13:41:28 | 显示全部楼层 来自: 中国江苏镇江
不好意思了!确实尺寸差了!9 U7 i# h6 b5 B2 ?9 C

9 l: d" I' U1 g. W4 Q, K再补上!  c: E2 c5 A2 O! y% ?3 a
& w$ G& f4 W$ y. q( l7 e
Φ35内孔高度10;Φ53内孔高度91;槽高30;# l/ V1 r7 r' H# B! K9 x( Y

/ U! [  q' Q- L2 Z/ o难度不是太高,主要是练习!
发表于 2007-1-2 11:17:28 | 显示全部楼层 来自: 中国辽宁抚顺

我画的答案大家看下

我画的答案搂住看下对不对
答案.jpg
发表于 2007-4-12 09:41:21 | 显示全部楼层 来自: 中国陕西西安
学习,非常好.支持一下
发表于 2007-4-14 16:33:15 | 显示全部楼层 来自: 中国四川成都

回复 #5 zxf0354 的帖子

同志,18宽是个整齐的矩槽下来,并没有什么倒角,那段显出来的弧仅是把35孔打穿了而已。
发表回复
您需要登录后才可以回帖 登录 | 注册

本版积分规则


Licensed Copyright © 2016-2020 http://www.3dportal.cn/ All Rights Reserved 京 ICP备13008828号

小黑屋|手机版|Archiver|三维网 ( 京ICP备2023026364号-1 )

快速回复 返回顶部 返回列表