|
|

楼主 |
发表于 2007-1-3 20:49:41
|
显示全部楼层
来自: 中国吉林吉林市
个人觉得,CAD版本越高,转换效果越好,以下是个人认为转换到word中比较好的两种办法。 K. M+ M5 A0 X- H0 r9 d v
# m7 _& ?2 c1 I4 K
一、最佳屏幕浏览及打印效果: ( {' h, y% S/ c2 X7 A/ t
PSout命令,输出eps格式图片。
0 {, C" \6 r, _) T, M* b5 C文字和线条的屏幕浏览效果和打印效果最佳,遗憾的是本人用的各CAD版本此命令均有限制,就是在输出的图片上会出现几条双点划线,追求效果的时候,还是采用这种方法,对双点划线二次处理。: Q8 B3 W5 C/ B5 E7 Q- n- Y. i
注意事项,使用此命令时,必须把系统变量filedia设置为0,取消对话框,在命令行按提示操作。用完后别忘了再把filedia设置为1,不然别的命令的对话框也关了。* S' L8 }2 R9 p6 }0 {( O
导入word后的二次处理方法:7 X( m; M, @3 l6 Q4 \
1.在WORD中,点插入→图片→来自文件,选择先前输出的eps图片→插入
5 c) ~, ?! B n. x/ l* w0 a4 j2.在图片上点右键→设置图片格式→版式→浮于文字上方→确定
( _& t0 P7 D) i3.再在图片上点右键→组合→取消组合,选择多余的双点划线,删除。
. F9 N1 v3 U2 m; d& a- Y5 d4,用绘图工具栏上的选择工具框选图形,右键菜单,组合。) b" e9 p' L& C8 c; g) }9 n
' J) O' p+ D9 w' R. m二、最高效编辑修改:
; X$ D) b. ^3 |! k5 M在word里插入CAD对象,相当于高版本CAD的复制、粘贴操作(高版本CAD进行此操作时,背景不用设置成白色)为得到较好的文字打印效果,不要用单线类的字体,线条打印效果一般,如果想比较准确地控制线宽,需要把图形中的线条转成多义线来设置,操作麻烦。另外屏幕浏览效果不好。5 r( a& F- Y' a. v
这种方法插入的图片可以很方便地调入CAD环境进行反复的修改,加上其文字打印效果好,故还可采用。(和CAD版本有关,低版本好象支持的不好)" F& q* a6 a3 n; l
" U \: g6 \" i2 S; o: a
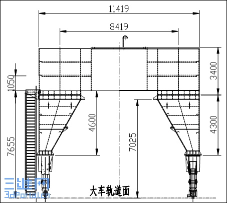
以下为Eps输入到word中的位图效果,实际使用时为矢量效果,不论屏幕浏览还是打印,效果要远远好于下图。 |
-
评分
-
查看全部评分
|