QQ登录

只需一步,快速开始

登录 | 注册 | 找回密码

三维网

 找回密码
 注册

QQ登录

只需一步,快速开始

展开

通知     

全站
9天前
查看: 2821|回复: 20
收起左侧

[已解决] 急,知道的说说!

 关闭 [复制链接]
发表于 2007-1-16 20:01:39 | 显示全部楼层 |阅读模式 来自: 中国浙江温州

马上注册,结识高手,享用更多资源,轻松玩转三维网社区。

您需要 登录 才可以下载或查看,没有帐号?注册

x
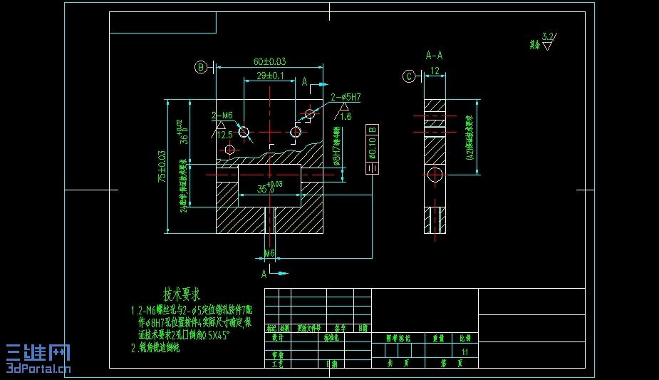
关于这个零件,请发表一下它的加工工艺!谢谢
1.JPG
发表于 2007-1-16 20:37:26 | 显示全部楼层 来自: 中国浙江宁波
材料呢:; b) A$ g% [# D5 s: \

, V: M8 |  ?8 P0 [2 l2 N: [假设45 #  退火* ~+ q2 _- E3 S; r* l
- a. g/ f! W3 g- P3 |
1、备料:去量去黑皮,六面见光,各留2MM 量 匀 4 J. i+ o0 {0 I& {3 O- x; T, A- D1 A$ v
2、12厚粗精 铣到尺寸,上以及左精铣作基准。(立铣)7 T, f* G2 @- ?' A3 n, j+ ^
3、划线出中心方孔,打五处孔底孔。出M6螺纹, 铰孔 H7 ,中心方孔排料。(钳)
$ W# m7 v8 A% ]9 @2 ^' n& g3 V+ ?4、配做划线 按基准打侧面直径8 的孔。(钳)! \- L& T' W: b
5、线切按照基准找正对丝 。照现场修正,方孔以及其他尺寸成 (电加工)+ }4 o/ Q7 C) h" F' I- X

; x+ x' P0 \4 _* e, y[ 本帖最后由 YINDONG411 于 2007-1-16 20:41 编辑 ]

评分

参与人数 1三维币 +5 收起 理由
sxw68 + 5 积极应助

查看全部评分

发表于 2007-1-16 23:21:40 | 显示全部楼层 来自: 中国湖北
楼主:
  k0 s9 {8 i+ f. P/ k      1.图中的技术要求不清楚,最好把技术要求打出来,以便研究。: n" [6 `: ^. W% b  R2 b
      2.既然有配做件,也应该把配做件的图形贴出来,这样,才能做出完善的工艺。- M) b" W6 u( `7 h
     先给一个粗略的工艺做参考:
' k: D' z. S% V' Z/ C      1.立铣:六面。基准面留磨量。
! B  m+ s$ Z/ F8 H8 P) T4 O4 f" `      2.平磨:磨基准面。- _7 m1 v7 @3 ~& f
      3.钻:打方孔预孔。
0 R: }, }  Y: C3 V$ o      4.线切割:割方孔
' _, o/ f3 m8 R: [# R( x% `      5.卧镗或坐标钻:做有对称度要求的螺纹底孔,并攻导向扣。按件4要求做Φ8H7孔。8 f, O7 k- z; z) I, [4 c- _/ M
      6.钻:与件7配做其他孔。

评分

参与人数 1三维币 +5 收起 理由
渔樵 + 5 赞同!

查看全部评分

发表于 2007-1-17 03:25:19 | 显示全部楼层 来自: 中国新疆乌鲁木齐
如单一件,可铣削加工坯料后按钳工制作件手工制作.
' R% I9 x/ a, p0 g. _* Z, H( {1.铣削坯料12×60.5×75.5.$ K- R% y/ j, t, u3 B5 p9 j3 N
2.手工加工60±0.03×75±0.03., c$ |% J4 [7 Z" @
3.24*35孔按图划线配作加工' W5 k. [, Y1 h9 {1 K6 n
4.2-M6,2-¢5H7,¢8H7按配作件钻,绞,攻.8 o. N& y9 [4 D8 \, C/ ?# r$ ?0 a
5.M6 划线钻,攻.
9 b* J' s& @- C$ V! B  O; W6.去毛刺.& ~0 c, k0 j0 K) X; O

' V; o' r* o% L# S) a4 h  Q如成批件
% M4 [+ m+ B6 M: P0 d* b3 C3 |( v- c1.60±0.03和
75±0.03×12需精铣加工.
& W" R* D! _  h2.24*35孔按图划线配作加工.: d, ?  X1 }$ }! V/ l
3.2-M6,2-
¢5H7,¢8H7,M6等孔可制作夹具.按配件钻,绞,攻
% Y/ j' l, o8 F/ g$ A4 l
  x$ O( r0 v; v" Y8 b3 a

7 Z* ~, r' Q6 K; s7 I% h3 ^1 [; M) H" T4 U
[ 本帖最后由 渔樵 于 2007-1-17 10:33 编辑 ]

评分

参与人数 1三维币 +3 收起 理由
渔樵 + 3 技术讨论

查看全部评分

 楼主| 发表于 2007-1-17 15:16:16 | 显示全部楼层 来自: 中国浙江温州

谢谢各位同仁

放大点(清楚点)!
1.JPG
发表于 2007-1-17 22:07:16 | 显示全部楼层 来自: 中国江苏淮安
个人认为:
1 z5 w5 _9 c* |" V" f  你首先要得说明几点.1.是批量还是单件?; W2 P& C5 a. {4 q) }/ `
            2.加工条件
1 M% c4 _) s' A4 g8 i8 O# X) t            3.材料是什么,未注公差按什么标准.(因为我们就吃个没做未注公差标准的亏)
4 R3 q# F/ i# X  其次你发上来的两张图要求并不完全一样,所以个人认为你先把你的要求全部搞清楚了再发上来,要不出多少方案都是没有针对性的.

评分

参与人数 1三维币 +3 收起 理由
sxw68 + 3 积极应助

查看全部评分

发表于 2007-1-22 12:01:29 | 显示全部楼层 来自: 中国江苏无锡
加工成型我觉得问题不大,方法很多!关键可能会有很多毛刺必须要手工来去了!

评分

参与人数 1三维币 +3 收起 理由
sxw68 + 3 有道理

查看全部评分

发表于 2007-1-22 15:26:57 | 显示全部楼层 来自: 中国江苏常州
方孔定位尺寸36+0.02如何保证上面各位未说清楚,我感觉此尺寸靠线切割割方孔时来保证不是太可靠,我提供一案:其它工序都差不多,只是总长75一边留磨量,待方孔加工好以方孔一边为基准用夹具在平面磨上磨,以保证36+0.02尺寸。

评分

参与人数 1三维币 +3 收起 理由
sxw68 + 3 应助

查看全部评分

发表于 2007-1-23 12:03:22 | 显示全部楼层 来自: 美国

我的意见

两张图要求并不完全一样,我针对第二副图提出我的加工工艺:
8 g( g5 f# y' g+ i! X+ [1、四面见光,3.2光洁度
0 R2 B  \0 C8 P1 l9 N2、以B面为基础,加工M6
: u9 {/ {" U* T4 N! S5 u3、配做2-M6和 销孔, p5 I1 r2 i5 j1 }0 T) X0 J; p1 [
4、配做方孔,B面为基准! r- ?2 a8 ?0 q7 S
5、配做8毫米通孔。

评分

参与人数 1三维币 +5 收起 理由
sxw68 + 5 积极应助

查看全部评分

头像被屏蔽
发表于 2007-1-23 16:24:17 | 显示全部楼层 来自: 中国上海
提示: 作者被禁止或删除 内容自动屏蔽
发表于 2007-1-23 17:02:12 | 显示全部楼层 来自: 中国江苏常州
原帖由 solomonfl001 于 2007-1-23 16:24 发表
* F& }5 O) Z( ]) \7 O) _A基准呢? 4 f8 D- V% b4 h) U) T
我有个问题,线割能在3.2 内吗? 没有怎么磨?
8 ]) q4 |- u1 H% G0 ~
用慢走丝没问题。
发表于 2007-1-23 21:01:57 | 显示全部楼层 来自: 中国江苏无锡
楼主没说明是那个方面的零件,是磨具零件吗,批量的方案还要考虑成本吧,慢走丝价太高了吧,在没有线切割机的那个时刻,该任何做啊?
发表于 2007-1-23 21:20:40 | 显示全部楼层 来自: 中国贵州贵阳
加工方案必须与你单位的加工设备联系起来,否则的话,加工方案就太多了。建议你把你公司的加工手段提供一下,并提供批量大小。
发表于 2007-1-23 22:02:41 | 显示全部楼层 来自: 中国山东烟台
C基准面是否加工,两张图不一样啊。
% J3 R+ D/ r6 B+ s! s# V6 [如果加工就好办点
$ n% C2 b* T& Y1、粗铣:夹尺寸12(以下均用尺寸代替),以任意相对两面定位,铣四面,再夹四面中任何两面,以一面定位,铣12。
4 m- E, c: l1 O0 V2、磨:夹75,以一面定位,磨60;夹60,以一面定位,磨75。
* ]1 F5 F" T! \, T1 o7 c8 O6 {3、钻:B基准已经有了,钻M6底空,一般4.8--5.0吧,以B面及12的一面定位,且夹紧60! d) ^( I1 Z" U$ O
          同样钻8孔及其他孔) y4 l6 x4 \  X  v# o
4、拉:剩下方空最后加工,如果批量大可以采用定做拉刀来加工,做好拉刀套,定位夹紧后加工,可以几个件一起加工9 J7 I' @8 X8 j
小批量可采用线切割+ _2 w3 H: i! Q" `5 v
不知道对楼主是否有帮助
发表于 2007-1-23 22:49:38 | 显示全部楼层 来自: 中国北京
用慢走丝小批量可采用线切割
发表于 2007-3-3 21:57:02 | 显示全部楼层 来自: 中国安徽马鞍山
图纸标注不全,C基准有何用处?B基准两侧表面粗糙度未标注
发表于 2007-3-3 22:37:21 | 显示全部楼层 来自: 中国江西九江
1.立铣:粗加工六面。
$ a1 S$ V1 J8 K5 \3 U9 T, j! U      2.立铣:精加工六面体。
9 s: l3 l# S. q0 P      3.钳:划2-M6、M6及方孔预孔线,并钻预孔。1 x% b2 M% y1 x4 |# ]
      4.线切割:割方孔, s+ n1 m# _% r' R3 B# [% F  \% H6 t; y
      5.工具铣、卧镗或坐标钻:钻2-M6螺纹底孔,钻/攻M6螺纹孔。按件4要求做Φ8H7孔。0 O1 X' X# S  K# g
      6.钳:攻2-M6螺纹孔与件7配做其他孔。
发表于 2007-3-4 07:30:34 | 显示全部楼层 来自: 中国吉林吉林市
加工应没问题,但要保证M6相对尺寸,最好与相配合件一同加工M6孔且再攻丝
发表于 2007-3-4 12:01:44 | 显示全部楼层 来自: 中国陕西西安
这样的案件很少用到、: P' \/ F/ F- x) ~
0 ~( |. A+ Y, P5 C" }. q$ N
我就觉得就是:
& H1 T+ M5 l+ h, c4 k% I' o1 |# ?2 Q) o1 a- K
在允许的情况下把零件分开加工
3 }3 ^. X- Y6 I% Z4 L把他加工成一队配合来满足要求  P1 B5 g" v7 f* G- F( C3 u
还是可以的
发表于 2007-4-11 21:31:07 | 显示全部楼层 来自: 中国湖北武汉
一个小小的零件有这么多加工方案,看来反工艺搞好的确不简单
发表于 2007-4-13 14:21:23 | 显示全部楼层 来自: 中国江苏连云港
用快丝把方孔和外形一次全部割出,尺寸和位置就都可以保证了.然后其它的孔用万能摇臂铣床加工就可以了(铣床最好装有光栅尺,那样不用划线,尺寸加工精度又好)
发表回复
您需要登录后才可以回帖 登录 | 注册

本版积分规则


Licensed Copyright © 2016-2020 http://www.3dportal.cn/ All Rights Reserved 京 ICP备13008828号

小黑屋|手机版|Archiver|三维网 ( 京ICP备2023026364号-1 )

快速回复 返回顶部 返回列表