QQ登录

只需一步,快速开始

登录 | 注册 | 找回密码

三维网

 找回密码
 注册

QQ登录

只需一步,快速开始

展开

通知     

查看: 2081|回复: 5
收起左侧

[已解决] 如何增加轴与包体之间的连接强度?

[复制链接]
发表于 2007-1-20 09:12:57 | 显示全部楼层 |阅读模式 来自: 中国江苏无锡

马上注册,结识高手,享用更多资源,轻松玩转三维网社区。

您需要 登录 才可以下载或查看,没有帐号?注册

x
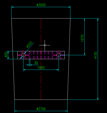
这是一个100吨的铁水包,由于现场条件的限制,两个支撑轴之间的距离定为1800,距包口1870。轴为直径200的45#圆钢,包体为22厚的Q345板,请问各位采用图上的结构能保证足够的强度吗?    是否有更好的结构方案?     还有就是45#钢与Q345的焊接性能如何,选用什么样的焊材较好?* U9 N, q# e; @. W

* X# @1 ~+ v1 G: [2 Q* b! |) Z- l8 B8 j[ 本帖最后由 hanhaikuanglan 于 2007-1-20 09:28 编辑 ]
333.gif

底部仰视

底部仰视
发表于 2007-1-20 15:05:55 | 显示全部楼层 来自: 中国甘肃兰州
抬包工作情况介绍不细。
! T* ?; a' K0 t* W装铁水后不知怎样将铁水倒出来。
发表于 2007-1-20 17:30:42 | 显示全部楼层 来自: 中国河北保定
焊缝.我认为可以保证强度重点在结构上  给楼主个焊接工艺  考虑具体情况  最好预热
0 x4 O; U/ m4 C) ~9 B  I
& z) I+ `6 M& |9 k+ Q1 q. R6 f一、母材牌号:  轴 45#        
- S  w; s. U) @0 G6 M# Q( d* L吊耳Q345B    板材     热轧状态8 v" G' s  D8 a0 f& l3 ~" q
二、焊接材料:焊丝采用CO2药芯焊丝,型号AT------YJ602Q,焊丝直径φ1.2mm、CO2气体纯度99.8%以上,露点低于-40℃,压力小于0.2MPa不得使用。
$ b% |) B& d; g2 O' q5 a/ S) @% }三、焊接设备:唐山松下KRⅡ500或牡丹江OTCXC500,电源为直流平特性。四、坡口设计及加工要求:6 \$ n) |( A9 R* U9 s' w
火焰切割坡口,没有油污等污渍,坡口形式为角接触焊缝K型(坡口角度为45°),组对间隙为1mm以内,由角向磨光机打磨坡口以及两侧20mm内,坡口中不准有凸凹不平和割口缺陷,两侧不准有油锈、氧化皮等赃物。7 f0 a* j# ~6 C5 ~* {5 l1 V
五、焊接顺序$ O9 V. z& i& X3 }) H: r
1.  将件1按图示与吊耳点焊。左右对称1 ?) ~) s9 `; S8 n
六、焊接工艺参数
, P7 c9 E# x. ~+ }2 `, d打底焊电流230-250A,电压25V,焊速30cm/min,流量25L/min,采用直线右焊法。
$ X8 m9 [& x% W( ]3 H( o& |% i) w填充焊电流200-230A,电压24V,焊速30cm/min,流量25L/min,采用月牙形或锯齿形运条方法。; y, z' x: @, W1 n2 K
立焊电流90-120,电压20V,焊速15cm/min,流量22L/min,采用月牙形运条法。- n& Z% @% s# m; V( C& O! X' \5 ~8 |: y# ]
七、焊后进行保温缓冷。
" u1 D+ ~+ A$ v1 K八、焊接与气割要求重型机械通用技术条件JB/T5000.3-1998及JB/T5000.2-1998标准执行。/ Q0 u( C' \; B  p, q; e) D
九、焊缝质量符合JB/T5000.3-1998中之规定。并出具合格报告。
 楼主| 发表于 2007-1-20 19:29:20 | 显示全部楼层 来自: 中国江苏无锡
谢谢楼上的帮忙,请问用手工电弧焊选用什么样的焊材较好?焊接时的电流与电压应控制在多少?
发表于 2007-1-20 20:31:27 | 显示全部楼层 来自: 中国河北保定
E5015足够 焊条要去氢处理  直流焊机反接 注意结合情况预热 和焊后缓冷  很重要的
 楼主| 发表于 2007-1-21 08:01:12 | 显示全部楼层 来自: 中国江苏无锡
谢谢歌声与微笑大虾的帮忙。
发表回复
您需要登录后才可以回帖 登录 | 注册

本版积分规则


Licensed Copyright © 2016-2020 http://www.3dportal.cn/ All Rights Reserved 京 ICP备13008828号

小黑屋|手机版|Archiver|三维网 ( 京ICP备2023026364号-1 )

快速回复 返回顶部 返回列表