QQ登录

只需一步,快速开始

登录 | 注册 | 找回密码

三维网

 找回密码
 注册

QQ登录

只需一步,快速开始

展开

通知     

查看: 1767|回复: 8
收起左侧

[已解决] 60度,R2圆角孔加工

 关闭 [复制链接]
发表于 2007-5-17 19:24:27 | 显示全部楼层 |阅读模式 来自: 中国安徽滁州

马上注册,结识高手,享用更多资源,轻松玩转三维网社区。

您需要 登录 才可以下载或查看,没有帐号?注册

x
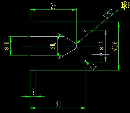
如图,现用钻头修磨后加工。粗糙度不好。谁用过别的刀具做过。
未命名.JPG
发表于 2007-5-17 20:41:13 | 显示全部楼层 来自: 中国江西九江
先用9.5钻头加工到24~24.5,在自己用高速钢做一个成型铣刀,钻铣工件至25。

评分

参与人数 1三维币 +3 收起 理由
渔樵 + 3 应助

查看全部评分

发表于 2007-5-17 22:21:47 | 显示全部楼层 来自: 中国湖北宜昌
选一支直径9.9mm较短的钻头上工具磨磨成成型刀具用于光刀,孔深度留余量用此钻头低转速加冷却润滑液光刀,粗糙度可达3.2。

评分

参与人数 1三维币 +3 收起 理由
渔樵 + 3 应助

查看全部评分

 楼主| 发表于 2007-5-20 11:57:41 | 显示全部楼层 来自: 中国安徽滁州
找到一个好方法,用4的中心钻钻尖磨成R2状,刚好满足60度。还没成批试。

评分

参与人数 1三维币 +3 收起 理由
渔樵 + 3 技术讨论

查看全部评分

发表于 2007-5-20 12:53:50 | 显示全部楼层 来自: 中国香港
圆10深25用刀具加工有点深
. k7 t; q# a1 f, ^  X& S$ p- l$ P楼主考虑吓用火花机加工
 楼主| 发表于 2007-5-20 21:02:34 | 显示全部楼层 来自: 中国安徽滁州
电火花加工费用都少钱一小时?
头像被屏蔽
发表于 2007-5-21 17:10:19 | 显示全部楼层 来自: 中国江苏扬州
提示: 作者被禁止或删除 内容自动屏蔽
发表于 2007-5-22 09:41:01 | 显示全部楼层 来自: 中国浙江杭州
用Cr12材料自己做成形刀,车 铣 淬火 手工磨
发表于 2007-5-22 10:21:35 | 显示全部楼层 来自: 中国辽宁丹东
什么材料?如果批量大,材料合适,用冷挤压加工比较好,一次成型,效率高。
发表回复
您需要登录后才可以回帖 登录 | 注册

本版积分规则


Licensed Copyright © 2016-2020 http://www.3dportal.cn/ All Rights Reserved 京 ICP备13008828号

小黑屋|手机版|Archiver|三维网 ( 京ICP备2023026364号-1 )

快速回复 返回顶部 返回列表