QQ登录

只需一步,快速开始

登录 | 注册 | 找回密码

三维网

 找回密码
 注册

QQ登录

只需一步,快速开始

展开

通知     

全站
11天前
查看: 2364|回复: 14
收起左侧

[已解决] 回路的分析

[复制链接]
发表于 2007-5-28 03:15:38 | 显示全部楼层 |阅读模式 来自: 中国湖南长沙

马上注册,结识高手,享用更多资源,轻松玩转三维网社区。

您需要 登录 才可以下载或查看,没有帐号?注册

x
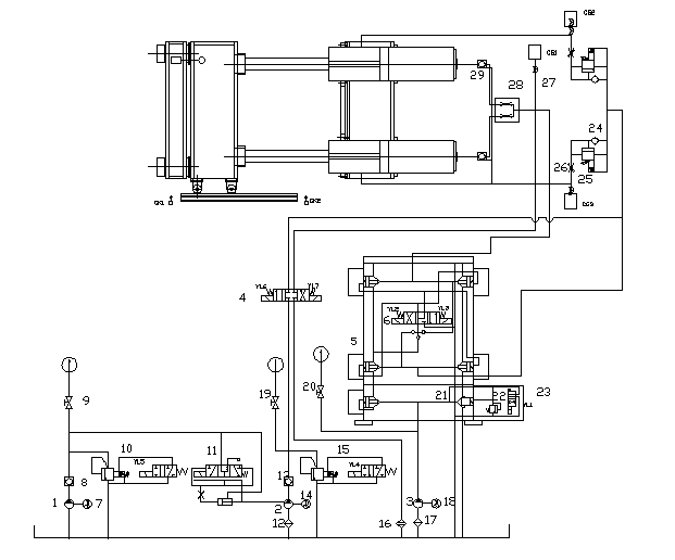
在这个液压回路中左边的那些有插装阀组成的阀组有什么作用呢,一直以来看不懂,找了许多书也不怎么懂,请教大家
+ c0 F2 }) m$ U, j" h
! i' U  v& P7 u, b$ k[ 本帖最后由 beenet 于 2007-5-30 17:10 编辑 ]
{46C232F4-5E85-4B88-BBDC-63941AC4F04D}.BMP

111111.rar

67.75 KB, 下载次数: 12

 楼主| 发表于 2007-5-28 03:40:33 | 显示全部楼层 来自: 中国湖南长沙
上面的左边的插装阀组打错字了,应该是右边的插装阀组.
$ K  R1 \" N2 K补充一下,右边的回路是提供拉伸机拉伸的时候用的,大概是25MPA,流量是12.2L/MIN.左边的回路是在快速返回的时候用的,大概是5MPA,流量是130L/MIN., }! w% M% i& o  K1 U
同时在右上方的单向阀和溢流阀组成又是作什么用的呢?
发表于 2007-5-28 10:31:24 | 显示全部楼层 来自: 中国安徽马鞍山
楼主还是把图纸以附件形式上传,这样的图纸,看不清楚,到底什么液压线还是实物线还有交接点很不清楚。或者单独将插装阀块的图局部放大上传。
发表于 2007-5-28 13:47:23 | 显示全部楼层 来自: 中国浙江宁波
功能应该是溢流阀+换向阀
发表于 2007-5-30 10:38:37 | 显示全部楼层 来自: 中国河北沧州
楼主把附件传上来吧,有些线看不清.
发表于 2007-5-30 12:41:48 | 显示全部楼层 来自: 中国四川自贡
请再上传成JPG的图片吧..大家想看也看不成...
发表于 2007-5-30 13:11:36 | 显示全部楼层 来自: 中国浙江台州
一般不外乎溢流阀和换向阀吧。
发表于 2007-5-30 13:51:42 | 显示全部楼层 来自: 中国四川成都
对于上面的图中插装阀5和21是,它们无非是起方向和溢流阀的作用!在图中5下面的为单向阀!5中为换向阀,5上为也为换向阀;21下为受换向阀控制的溢流阀,其余为换向阀;& b. q0 f: H( a% Q
同时对于换向阀也受逻辑梭控制其互锁!
发表于 2007-5-30 14:15:14 | 显示全部楼层 来自: 中国辽宁大连
这是一个典型的桥式回路,主要用在柔性制动上,主要功能是补油。目前很多厂家都已经用一个一体阀来集成的。
 楼主| 发表于 2007-5-30 17:11:28 | 显示全部楼层 来自: 中国湖南长沙
谢谢大家的帮忙,终于把毕业设计搞好了,在这里谢谢广大的三维大大门给我的帮助.同时过几天就要答辩,还是要搞清楚点,免的一问就露马脚: Z$ O% T' m; J' B0 L' e: k

# t" S0 K- R5 H7 d) Z6 e[ 本帖最后由 beenet 于 2007-5-30 17:14 编辑 ]
发表于 2007-6-4 20:38:40 | 显示全部楼层 来自: 中国江苏无锡
看不清楚应该是个液压半桥回路属于A型的(输入和输出均为可变液阻),作用是受同一输入控制信号的差动联控  a  F; a" B# \- S/ M0 S# m' Z

$ c. ~6 [0 L4 ]6 e' n- G6 f, N& u* q7 I[ 本帖最后由 wuwanfu 于 2007-6-4 20:42 编辑 ]
发表于 2007-6-4 22:19:48 | 显示全部楼层 来自: 中国北京
原帖由 guofang 于 2007-5-30 14:15 发表 http://www.3dportal.cn/discuz/images/common/back.gif9 @7 h% B; j* F6 A( Q0 M
这是一个典型的桥式回路,主要用在柔性制动上,主要功能是补油。目前很多厂家都已经用一个一体阀来集成的。

+ F% n# U/ ], ~, H. h同意这个观点,就像电路中的桥一样,因为在快速返回的时候,压力是5MPA,流量是130L/MIN,而在伸机拉伸的时候压力是25MPA,流量是12.2L/MIN,为保证快速平稳返回需补油!
9 G1 ~) x! G1 X. d$ D* j) r在右上方的单向阀和溢流阀组成的是平衡阀!' z# m  {, u; J" T- x6 H
其作用正向打开并有过载保护,反向右能通过控制油使油缸能平稳下降!
发表于 2007-6-4 22:50:29 | 显示全部楼层 来自: 中国江苏苏州
回路有点模糊,我认为右边的溢流阀+单向阀,是起到一个顺序动作的作用,,不知道其他同行人的意见怎么样呢,,,具体的图纸看的不是很清楚,,特别是下面的逻辑阀组,
发表于 2007-6-5 04:46:45 | 显示全部楼层 来自: 中国河北唐山
楼主提供的回路为典型的桥式回路,用于补油和液阻可调。
 楼主| 发表于 2007-6-7 13:36:28 | 显示全部楼层 来自: 中国湖南长沙
看了大家的讨论,有大概的了解,谢谢各位大大的帮助,我会写到论文上去感谢大家的. :)
发表回复
您需要登录后才可以回帖 登录 | 注册

本版积分规则


Licensed Copyright © 2016-2020 http://www.3dportal.cn/ All Rights Reserved 京 ICP备13008828号

小黑屋|手机版|Archiver|三维网 ( 京ICP备2023026364号-1 )

快速回复 返回顶部 返回列表