QQ登录

只需一步,快速开始

登录 | 注册 | 找回密码

三维网

 找回密码
 注册

QQ登录

只需一步,快速开始

展开

通知     

查看: 2324|回复: 6
收起左侧

[已解决] 求助各位高手:球墨铸铁零件的铸造工艺!!!

[复制链接]
发表于 2007-6-4 14:59:36 | 显示全部楼层 |阅读模式 来自: 中国河北石家庄

马上注册,结识高手,享用更多资源,轻松玩转三维网社区。

您需要 登录 才可以下载或查看,没有帐号?注册

x
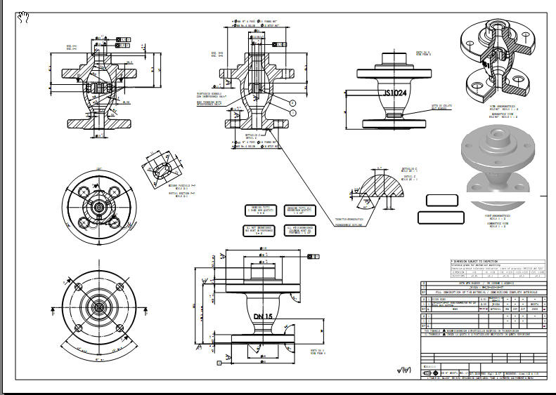
我们有个零件,是球墨铸铁材质的,接到图纸后,开始做模具试样品,但是发现由于零件内腔很小,所以采用目前的砂铸工艺,废品率是相当高,不适合大批量生产.我厂的师傅们都在绞尽脑汁想办法,但是都一筹莫展.这确实对我们是个难题.在此请教各位高手,师傅们,采用什么样的铸造工艺,比较经济划算,请您多多指点!  非常感谢!!!( y% K0 A2 u" B5 a% i
6 ]8 b. y" `8 n* b+ ^7 R7 s
[ 本帖最后由 jianghuamh 于 2007-6-5 11:13 编辑 ]

球铁铸件图纸.pdf

927.92 KB, 下载次数: 10

发表于 2007-6-4 17:44:45 | 显示全部楼层 来自: 中国湖南衡阳
看了一下你的图纸,下载还花了俺1M的流量。建议你采取横浇。泥芯较小,应该使用树脂砂。对称分型,从分型面两凸出位置进水。凸出最高位置放冒口。潮模砂做泥芯绝对不行。个人感觉应该是不难的。另外建议你下次不要用附件发图,直接贴图。要不没有几个人会下载你的文件看图的。
Snap1.jpg

评分

参与人数 1三维币 +3 收起 理由
jianghuamh + 3 应助

查看全部评分

发表于 2007-6-4 18:41:26 | 显示全部楼层 来自: 中国湖南株洲
哈哈,类似的我们也做过,不过是用铝合金的..! 当然是形状上象,具体尺寸嘛?没下载你的图纸看!不过工艺跟楼上的差不多!横向分型,从最大的轮边进水,放两冒口再最高处!不知球铁工艺是否可参考?

评分

参与人数 1三维币 +1 收起 理由
jianghuamh + 1

查看全部评分

 楼主| 发表于 2007-6-5 10:02:54 | 显示全部楼层 来自: 中国河北石家庄
谢谢楼上两位大师的指点.
发表于 2007-7-5 16:03:05 | 显示全部楼层 来自: 中国黑龙江齐齐哈尔
纵向分型;砂芯采用射芯对接;浇口一端引入;砂型强度要高或采用呋喃树脂砂
发表于 2007-7-6 09:38:59 | 显示全部楼层 来自: 中国河北邢台
对于求助最好是先搜索完,没有的再求助。不然有浪费资源之嫌。
发表于 2007-7-12 20:18:25 | 显示全部楼层 来自: 中国陕西咸阳
同意一楼和二楼的说法,对称分型,中心的芯子可以采用陶瓷得,冒口颈可以用扁平的,增强补所
发表回复
您需要登录后才可以回帖 登录 | 注册

本版积分规则


Licensed Copyright © 2016-2020 http://www.3dportal.cn/ All Rights Reserved 京 ICP备13008828号

小黑屋|手机版|Archiver|三维网 ( 京ICP备2023026364号-1 )

快速回复 返回顶部 返回列表