QQ登录

只需一步,快速开始

登录 | 注册 | 找回密码

三维网

 找回密码
 注册

QQ登录

只需一步,快速开始

展开

通知     

查看: 2394|回复: 10
收起左侧

[已解决] 有类似这种液压泵站的CAD图吗?

[复制链接]
发表于 2007-6-6 20:07:46 | 显示全部楼层 |阅读模式 来自: 中国广东江门

马上注册,结识高手,享用更多资源,轻松玩转三维网社区。

您需要 登录 才可以下载或查看,没有帐号?注册

x
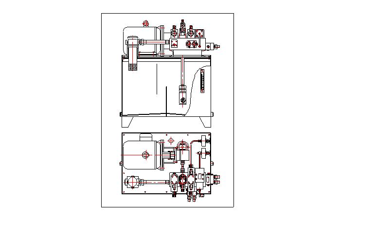
请问有这种液压泵站的CAD图吗,有的话发上来啦,好吗,谢谢!
yzb1.gif
zb.jpg
 楼主| 发表于 2007-6-6 20:10:39 | 显示全部楼层 来自: 中国广东江门

有类似这种液压泵站的CAD图吗?

请问有这种液压泵站的CAD图吗,差不多的就行了,有的话发上来啦,好吗,谢谢!
yzb1.gif
zb.jpg
发表于 2007-6-6 20:47:38 | 显示全部楼层 来自: 中国安徽马鞍山
确实有,不过在单位,基本差不多。明天传来。! Y* Z( j2 k. F5 T" F
. r0 c- q% {8 C) k# \5 U
[ 本帖最后由 江边 于 2007-6-8 08:21 编辑 ]

21354.rar

204.73 KB, 下载次数: 36

发表于 2007-6-6 22:03:39 | 显示全部楼层 来自: 中国河南安阳
楼主的系统为超高压系统。给你一个链接,上面有原理图。
9 `$ J6 j7 g  P8 e, l& j, hhttp://www.dzjuli.com/ddbyl.htm% {, r+ A8 U  ?
: G7 e% k; b( E7 g% L
再给一个:9 D; ~& Y; e! O+ G# F
http://www.yxyeya.com/2_9.htm
8 n2 d/ U5 v( A, c: I/ }( |* b6 T/ [8 A8 q6 ]2 U. {, b$ k
[ 本帖最后由 9619 于 2007-6-6 22:04 编辑 ]
 楼主| 发表于 2007-6-7 09:58:56 | 显示全部楼层 来自: 中国广东江门
谢谢2楼江边,和3楼9619.
% k/ I. n) r% t) \4 w+ l6 |; F6 l! r4 _8 I- P, u
其实原理图我有,我想要的是像第一个图那样的CAD图
发表于 2007-6-7 17:10:57 | 显示全部楼层 来自: 中国河南安阳
你要的液压原理图还是泵站的外观图纸?
 楼主| 发表于 2007-6-7 21:34:19 | 显示全部楼层 来自: 中国广东江门
江边同志,我在等你啊.........
发表于 2007-6-7 21:44:09 | 显示全部楼层 来自: 中国北京
发一个仅能作为参考:
3.JPG

3.rar

246.92 KB, 下载次数: 20

 楼主| 发表于 2007-6-8 08:32:36 | 显示全部楼层 来自: 中国广东江门
谢谢楼上几位的帮助啦
. Q4 a- b  \% M4 M* {$ B虽然不太相同,但有一定作用的,谢谢!
 楼主| 发表于 2007-6-8 08:33:43 | 显示全部楼层 来自: 中国广东江门
内部的CAD结构图有吗?
发表于 2007-6-8 08:52:59 | 显示全部楼层 来自: 中国安徽马鞍山

回复 #7 gtfans 的帖子

难道我上传的和你要的不一样么??7 {: j& ^$ |& J4 p8 K
发表回复
您需要登录后才可以回帖 登录 | 注册

本版积分规则


Licensed Copyright © 2016-2020 http://www.3dportal.cn/ All Rights Reserved 京 ICP备13008828号

小黑屋|手机版|Archiver|三维网 ( 京ICP备2023026364号-1 )

快速回复 返回顶部 返回列表