QQ登录

只需一步,快速开始

登录 | 注册 | 找回密码

三维网

 找回密码
 注册

QQ登录

只需一步,快速开始

展开

通知     

全站
8天前
查看: 1532|回复: 3
收起左侧

求助

 关闭 [复制链接]
发表于 2007-6-27 13:16:21 | 显示全部楼层 |阅读模式 来自: LAN

马上注册,结识高手,享用更多资源,轻松玩转三维网社区。

您需要 登录 才可以下载或查看,没有帐号?注册

x
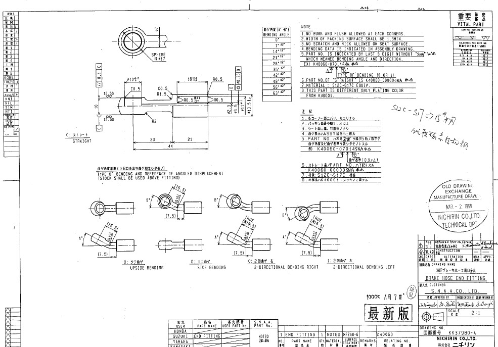
谁能画出图示产品的3维图,用SOLIDWORKS ,A和B都是35°6 F3 i8 [8 K) k8 @( J
! R) Q( G  `; A& F* a% E. d5 q/ n  \
[ 本帖最后由 jihua8028 于 2007-6-27 13:18 编辑 ]
捕捉.jpg
捕捉11.jpg
 楼主| 发表于 2007-6-27 13:18:55 | 显示全部楼层 来自: LAN
在线等,谢谢啦。               
发表于 2007-6-27 14:36:14 | 显示全部楼层 来自: 中国广东江门
尺寸看不清楚哦
 楼主| 发表于 2007-6-28 15:27:33 | 显示全部楼层 来自: LAN
经过我努力终于画出来了
35035.jpg
42000.jpg
gmf(20°).jpg
发表回复
您需要登录后才可以回帖 登录 | 注册

本版积分规则


Licensed Copyright © 2016-2020 http://www.3dportal.cn/ All Rights Reserved 京 ICP备13008828号

小黑屋|手机版|Archiver|三维网 ( 京ICP备2023026364号-1 )

快速回复 返回顶部 返回列表