QQ登录

只需一步,快速开始

登录 | 注册 | 找回密码

三维网

 找回密码
 注册

QQ登录

只需一步,快速开始

展开

通知     

查看: 3278|回复: 4
收起左侧

[讨论] 落料冲孔模的凹凸模线切割加工

[复制链接]
发表于 2007-7-8 08:21:49 | 显示全部楼层 |阅读模式 来自: 中国上海

马上注册,结识高手,享用更多资源,轻松玩转三维网社区。

您需要 登录 才可以下载或查看,没有帐号?注册

x
落料冲孔模的凹凸模线切割加工0 r6 k$ N8 g2 Z  j) B4 f& o
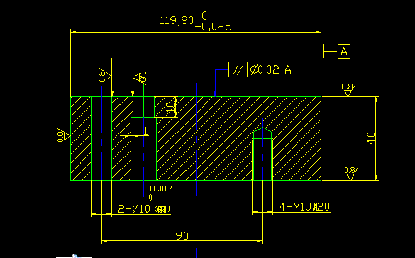
如下图所示为落料冲孔凹凸模零件图.其材料为Cr12,热处理54~58HRC.有两个直径10mm销定孔我以用红笔标出,有两个直径10mm和两个10.2mm*10.2mm刃口要线切割加工.大家来讨论讨论,说说大家的加工方法,有奖励.
& R6 P2 o# c: @
8 u! ^9 E4 D7 B[ 本帖最后由 siemens70 于 2007-7-8 08:25 编辑 ]
GDGHGDG.gif
SDFADG.gif
发表于 2007-7-8 13:25:54 | 显示全部楼层 来自: 中国湖北十堰
我的方法有点复杂,首先用桥式安装把一个外圆119.8内孔为60的工件{另车的,一定要保证同心度和垂直度,光洁度也要稍好一点}固定好,在工件的X,Y方向用靠铁贴平固定,将钼丝穿入找正工件内孔,抽丝,卸工件,再把要干的这个零件贴平两个靠铁固定,在这些过程中钼丝不能移动,最后将钼丝移动到合适位置加工零件
9 j8 h% t1 b( y" [3 t9 v0 S5 }) w, V. F3 s
[ 本帖最后由 千年一妖 于 2007-7-8 13:33 编辑 ]

评分

参与人数 1三维币 +6 收起 理由
siemens70 + 6 参与讨论,积级发表观点

查看全部评分

发表于 2007-8-5 15:06:18 | 显示全部楼层 来自: 中国江苏常州
中间增加一个16mm工艺孔(对于模具无影响),热处理后,磨外园时一同把工艺孔磨出,线切割可以找中。

评分

参与人数 1三维币 +6 收起 理由
siemens70 + 6 参与讨论,积级发表观点

查看全部评分

发表于 2009-7-14 15:42:28 | 显示全部楼层 来自: 中国江苏无锡
直接放上去 然后用表打下俩销钉孔的最高点  直接坐标旋转或在CAD上旋转好就行了
发表于 2009-7-16 18:36:23 | 显示全部楼层 来自: 中国广东深圳
像这种要加硬的工件就是要保证螺丝孔与线割孔同一坐标系了。加硬回来磨床精加工.上机线割机床外形分中了。至于校表就用几个螺丝扭进攻好的牙孔校直。
发表回复
您需要登录后才可以回帖 登录 | 注册

本版积分规则


Licensed Copyright © 2016-2020 http://www.3dportal.cn/ All Rights Reserved 京 ICP备13008828号

小黑屋|手机版|Archiver|三维网 ( 京ICP备2023026364号-1 )

快速回复 返回顶部 返回列表