QQ登录

只需一步,快速开始

登录 | 注册 | 找回密码

三维网

 找回密码
 注册

QQ登录

只需一步,快速开始

展开

通知     

查看: 2790|回复: 7
收起左侧

[讨论结束] 一个关于公差标注和加工工艺的问题

[复制链接]
发表于 2007-7-11 15:46:15 | 显示全部楼层 |阅读模式 来自: 中国上海

马上注册,结识高手,享用更多资源,轻松玩转三维网社区。

您需要 登录 才可以下载或查看,没有帐号?注册

x
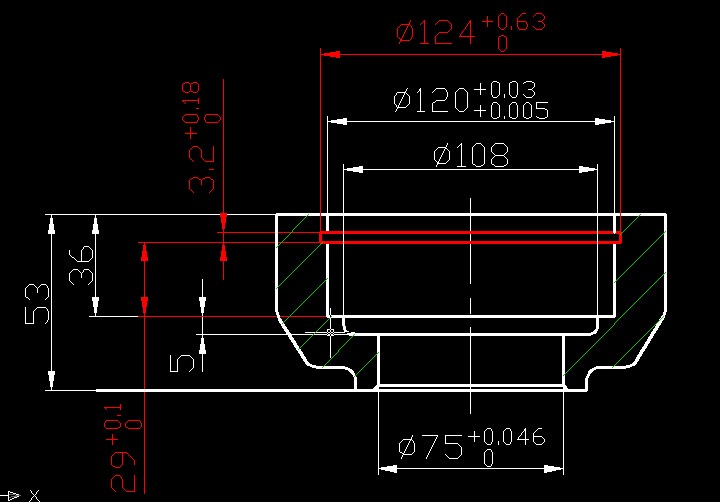
http://C:\\Documents and Settings\\Administrator\\桌面\\通用工具\\轴承座.jpg上图是一个轴承左剖面图,3.2+0.18/0、D124+0.63/0处为装卡簧.29+0.1/0为定位尺寸,问:我在加工中心加工时得如何确定这卡簧槽的位置尺寸,加工深度有得多少?谢谢
轴承座.jpg
发表于 2007-7-11 16:16:06 | 显示全部楼层 来自: 中国辽宁沈阳
有点没太懂楼主的意思,如果是沟槽尺寸的话,手册上相应的卡簧都有对应的沟槽尺寸的.
发表于 2007-7-11 17:08:52 | 显示全部楼层 来自: 中国湖北十堰
加工中心编程时会确定坐标原点位置的。你可确定上或下作为Z轴的原点,确定刀补后直接走程序。  F9 r5 J0 A9 P
不过在加工中心上加工有点不解,上数控车不是更好加工吗?
 楼主| 发表于 2007-7-11 19:49:21 | 显示全部楼层 来自: 中国上海
好象没人能听懂我的意思,。我主要目的是问。假如我以上平面为零点。要割卡簧槽时得下多少。
% |5 F, `& c7 a0 g' q是深下去6.9或7.0,还是还得考虑到3.2上的公差
头像被屏蔽
发表于 2007-7-11 21:23:13 | 显示全部楼层 来自: 中国浙江宁波
提示: 作者被禁止或删除 内容自动屏蔽
发表于 2007-7-11 22:34:17 | 显示全部楼层 来自: 中国江苏无锡
这里你应该进行公差尺寸的换算  尺寸3.2是由刀具来保证的 所以你要找的就是进到的位置 也就是36-2.9 +0.1的地方 这里你需要确定你的零件的自由公差尺寸36是按哪一个公差等级来加工的 按该等级找到你的36所可以采用的实际公差数值 然后按尺寸链的换算来确定36-2.9 +0.1这个尺寸所允许的工艺尺寸 从而间接保证29+0.1
" W& R' d8 T9 @3 ^$ u# @7 D$ T我的行业里规定的长度自由公差在30-50段取±0.31 这时就会发现按此公差无法来保证 2.9 +0.1(除非对刀按实际尺寸从36的底部往外来对 如此操作不方便 而且要每个对)因此必须要收缩36的公差带  29 +0.1=29.05±0.05 因此我要编工艺时就会要求对刀位置取36±0.025与6.95±0.025
发表于 2007-7-12 10:09:52 | 显示全部楼层 来自: 中国山东德州
楼上的把计算过程说一下,谢谢!!!!!看不太明白
发表于 2007-7-12 11:14:39 | 显示全部楼层 来自: 中国山东烟台
深度尺寸36也是在加工中心上干出来的么,那应该都以上平面为对刀点,加工槽可以将刀直接落6.9,而可以不去计算尺寸链
发表回复
您需要登录后才可以回帖 登录 | 注册

本版积分规则


Licensed Copyright © 2016-2020 http://www.3dportal.cn/ All Rights Reserved 京 ICP备13008828号

小黑屋|手机版|Archiver|三维网 ( 京ICP备2023026364号-1 )

快速回复 返回顶部 返回列表