QQ登录

只需一步,快速开始

登录 | 注册 | 找回密码

三维网

 找回密码
 注册

QQ登录

只需一步,快速开始

展开

通知     

全站
2天前
查看: 1975|回复: 6
收起左侧

[已解决] 设备标高的单位

[复制链接]
发表于 2007-7-28 15:08:25 | 显示全部楼层 |阅读模式 来自: 中国河北邯郸

马上注册,结识高手,享用更多资源,轻松玩转三维网社区。

您需要 登录 才可以下载或查看,没有帐号?注册

x
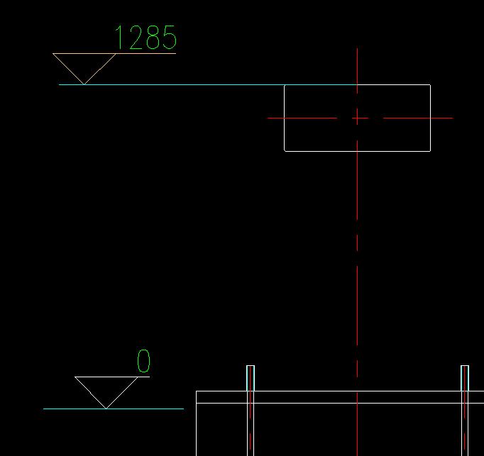
设备标高的单位,应该是米还是毫米?在装配图中。
问题4.jpg
发表于 2007-7-28 15:13:37 | 显示全部楼层 来自: 中国浙江宁波
仍然是mm为单位的,因为机械图毕竟很少出现其它单位,1285就是1285mm
发表于 2007-7-28 15:17:12 | 显示全部楼层 来自: 中国江苏扬州
没用定论的,
% s5 U, S% ?: ]; n  c+ L- L% c) f/ j不过
+ Z4 m( u- W, c5 a9 O0 V) ]# K通常是米
, \# ]4 A. O3 g. L; f4 t$ q: R: L但要加上单位如1.28米

评分

参与人数 1三维币 +3 收起 理由
★新手★ + 3 应助

查看全部评分

发表于 2007-7-28 15:30:50 | 显示全部楼层 来自: 中国福建泉州
用cad绘画的图都是用mm做单位啊!
发表于 2007-7-28 15:44:40 | 显示全部楼层 来自: 中国广西南宁
设备标高的单位一般采用m,在图纸上要加上说明:除设备标高以m为单位外,其余以mm为单位。

评分

参与人数 1三维币 +3 收起 理由
★新手★ + 3 应助

查看全部评分

发表于 2007-7-28 16:19:45 | 显示全部楼层 来自: 中国浙江杭州
机械方面的几乎不成文的都用毫米的。如果使用其他单位那就要特别说明一下的。. v) a" ^% T1 Q0 ^4 C8 {8 |

3 {1 |# B6 F0 v1 K. O" j[ 本帖最后由 xibeilong 于 2007-7-28 16:21 编辑 ]
发表于 2007-7-28 17:50:15 | 显示全部楼层 来自: 中国江苏南京
这是土建的表示方法,设备一般不这样表示,只是在安装图上才这样表示,但单位应该是米,如12.500,则表示为距基准面12.5米。

评分

参与人数 1三维币 +3 收起 理由
★新手★ + 3 应助

查看全部评分

发表回复
您需要登录后才可以回帖 登录 | 注册

本版积分规则

Licensed Copyright © 2016-2020 http://www.3dportal.cn/ All Rights Reserved 京 ICP备13008828号

小黑屋|手机版|Archiver|三维网 ( 京ICP备2023026364号-1 )

快速回复 返回顶部 返回列表