QQ登录

只需一步,快速开始

登录 | 注册 | 找回密码

三维网

 找回密码
 注册

QQ登录

只需一步,快速开始

展开

通知     

查看: 4007|回复: 22
收起左侧

[已解决] 盲孔内的键槽加工

[复制链接]
发表于 2007-7-29 16:11:51 | 显示全部楼层 |阅读模式 来自: 中国江苏常州

马上注册,结识高手,享用更多资源,轻松玩转三维网社区。

您需要 登录 才可以下载或查看,没有帐号?注册

x
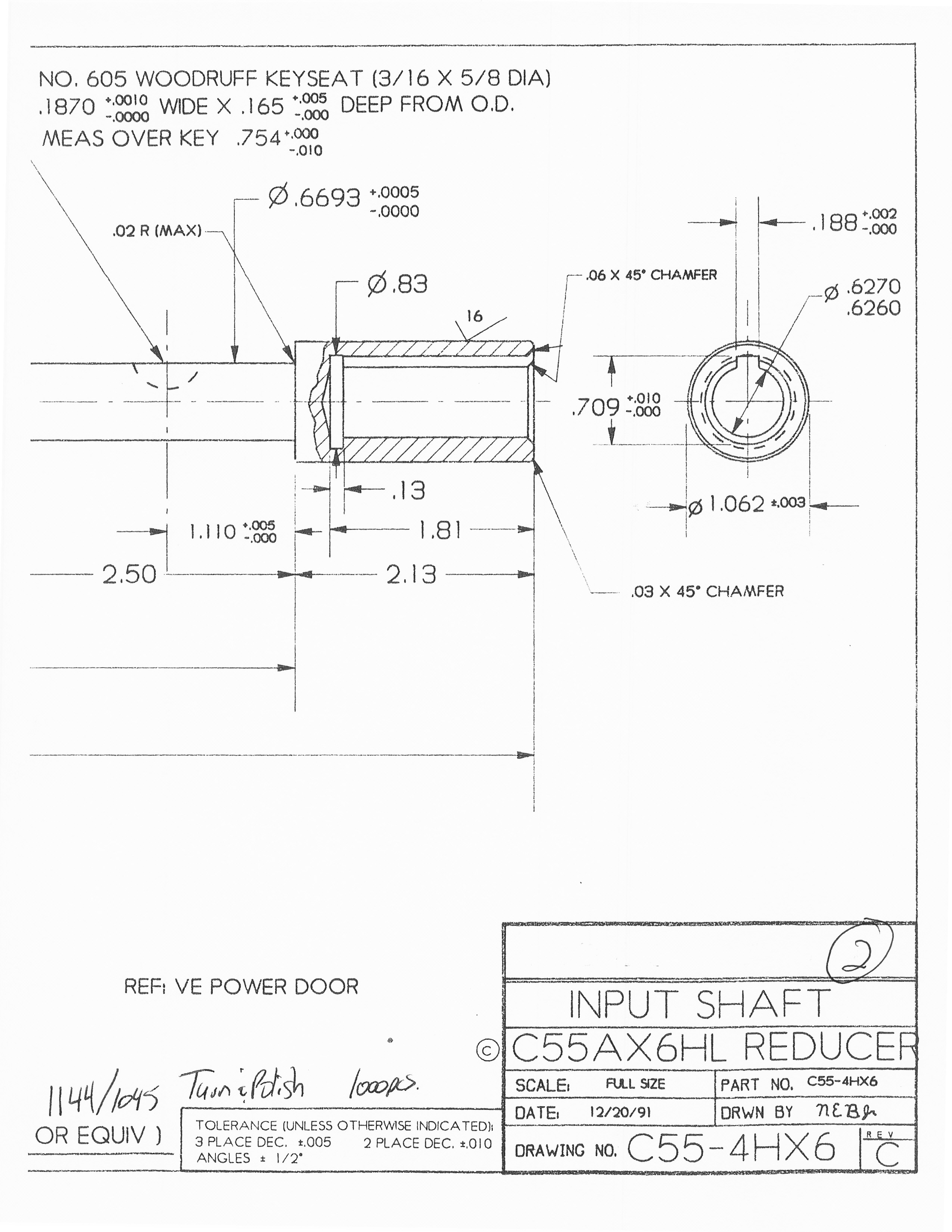
如图的键槽定量12000件,如果靠一台插床加工效率太低,还有其他好办法吗?
1.jpg
发表于 2007-7-29 17:18:45 | 显示全部楼层 来自: 中国湖北十堰
相比其它加工手段,感觉插床的效率还算高的。: b0 `- i8 i7 S! c
给你顶一下,看有没有其它高效的手段。
发表于 2007-7-29 17:26:11 | 显示全部楼层 来自: 中国江苏常州
可能的办法是减少机械加工的余量
" ]$ J5 |1 u' ~" k1 \先锻后加工.
发表于 2007-7-30 01:55:30 | 显示全部楼层 来自: 中国四川攀枝花
最好
( n9 x* |: n, z' P的加工办法也只有插床,但可以考虑做专用工装加工,自动找正后一次加工成型
发表于 2007-7-30 08:13:41 | 显示全部楼层 来自: 中国浙江宁波
12000件, 开一副精密的模具冷挤压成型吧然后再精插键槽效率高的多。
发表于 2007-7-30 09:19:16 | 显示全部楼层 来自: 中国河北廊坊
我感觉这个数量不大,相对加工的数量和价格比而言,选择插床还是比较经济的!!
头像被屏蔽
发表于 2007-7-30 12:50:46 | 显示全部楼层 来自: 中国辽宁大连
提示: 作者被禁止或删除 内容自动屏蔽
 楼主| 发表于 2007-7-31 15:00:47 | 显示全部楼层 来自: 中国江苏常州
实在不行不话只能用插床插了。
发表于 2007-7-31 19:46:18 | 显示全部楼层 来自: 中国湖北武汉
通用的办法只有用插床了.
发表于 2007-7-31 20:17:30 | 显示全部楼层 来自: 中国浙江台州
没有办法,相对来说插床是最适合不过的了。
发表于 2007-8-3 20:49:19 | 显示全部楼层 来自: 中国黑龙江佳木斯
留给高手来解决吧,如果精锻能一次成型就好了.
发表于 2007-8-3 22:13:16 | 显示全部楼层 来自: 中国江西景德镇
个人认为插床是更经济。
发表于 2007-8-4 08:28:50 | 显示全部楼层 来自: 中国四川眉山
你的数量也不是很多,就用插床插吧,精度也不算高,插床应该能满足精度要求。
发表于 2007-8-4 09:28:57 | 显示全部楼层 来自: 中国浙江宁波
楼上的说的冷剂压,比机械加工好,但模具又是增加周期了
0 Y& ?0 j, Y4 u; o7 y2 Q可否用激光加工.
发表于 2007-8-4 10:54:58 | 显示全部楼层 来自: 中国福建泉州
楼主可以考虑分开加工后,再焊接吗?
发表于 2007-8-4 12:32:36 | 显示全部楼层 来自: 中国香港
只能使用插床加工,要想提高效率的话不妨考虑制作一个可以多装夹的夹具,这样可以减少装夹时间,提高效率.
发表于 2007-8-4 20:38:23 | 显示全部楼层 来自: 中国山东威海
刨床也可以嘛。可以先调整好位置,
发表于 2007-8-5 10:50:57 | 显示全部楼层 来自: 中国江苏南京
多使用插床,效率反正不会提高了,只有这样慢慢耗了) u  O+ K# x0 D# V0 @- Y1 @
由于是整体零件,工艺上不允许拆开,否则会破坏零件整体的
2 R: A) h" E: E7 E我的意思是可以拆的话把键槽那块拿出来,加工的快,然后再利用焊接或者螺栓连接弄回去
发表于 2007-8-5 13:56:25 | 显示全部楼层 来自: 中国广东深圳
你们都说错了 我告诉你,先用铣刀铣一刀.再冲床冲,又快又好.
发表于 2007-8-5 19:03:53 | 显示全部楼层 来自: 中国浙江台州
楼上的加工方法有点搞不懂。
发表于 2007-8-6 16:11:18 | 显示全部楼层 来自: 中国辽宁朝阳
车窗车后,主轴抱紧不动,打自动进给
3 J1 b* s7 \+ |# P2 {3 Q/ B$ E用车床拉齿
发表于 2007-8-9 13:10:42 | 显示全部楼层 来自: 中国四川成都

回复 #21 CHENHAILAN 的帖子

这方法可能能解决楼主问题
发表于 2007-8-9 14:26:47 | 显示全部楼层 来自: 中国湖南株洲
键槽可以考虑用铲床铲槽,这样可能比用插床来得快
发表回复
您需要登录后才可以回帖 登录 | 注册

本版积分规则


Licensed Copyright © 2016-2020 http://www.3dportal.cn/ All Rights Reserved 京 ICP备13008828号

小黑屋|手机版|Archiver|三维网 ( 京ICP备2023026364号-1 )

快速回复 返回顶部 返回列表