QQ登录

只需一步,快速开始

登录 | 注册 | 找回密码

三维网

 找回密码
 注册

QQ登录

只需一步,快速开始

展开

通知     

全站
9天前
查看: 2033|回复: 4
收起左侧

[讨论结束] 产品压铸

[复制链接]
发表于 2007-8-3 20:27:01 | 显示全部楼层 |阅读模式 来自: 中国浙江宁波

马上注册,结识高手,享用更多资源,轻松玩转三维网社区。

您需要 登录 才可以下载或查看,没有帐号?注册

x
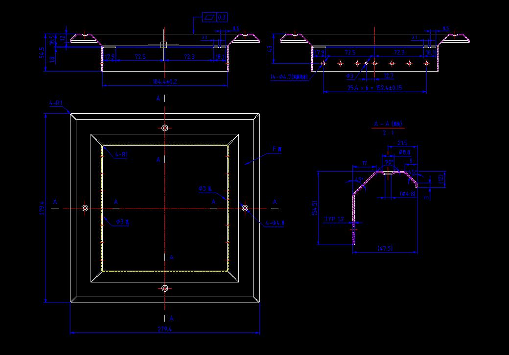
图示一产品,准备采用压铸,材料YL104,料厚1.2mm.
. P) N2 [2 M$ F5 \; Z8 F
( H7 M0 a7 U( P& ?请问,采用什么样的压铸方式,机台选用,模具大概价格(宁波地区)。
( K8 [- b+ m/ M/ d- L! ]( l  c' q/ H1 i4 X1 x9 i8 H5 J7 M% x
前期评估用,先谢了 yazhu.jpg
发表于 2007-8-3 20:34:12 | 显示全部楼层 来自: 中国辽宁沈阳
这东西不太好干,用铝板焊算了
 楼主| 发表于 2007-8-4 08:04:38 | 显示全部楼层 来自: 中国浙江宁波
没有人支招吗 ?? ;)
发表于 2007-8-5 17:18:47 | 显示全部楼层 来自: 中国黑龙江哈尔滨
这么薄,不好干
 楼主| 发表于 2007-8-5 22:15:46 | 显示全部楼层 来自: 中国浙江宁波
里头的压铸高手来支两招啊 ,
' x# q* T0 Q) h# ]/ d5 s" k / S$ _  s8 H( I5 s
等了N长时间,没有结果出来,太伤心了
发表回复
您需要登录后才可以回帖 登录 | 注册

本版积分规则


Licensed Copyright © 2016-2020 http://www.3dportal.cn/ All Rights Reserved 京 ICP备13008828号

小黑屋|手机版|Archiver|三维网 ( 京ICP备2023026364号-1 )

快速回复 返回顶部 返回列表