QQ登录

只需一步,快速开始

登录 | 注册 | 找回密码

三维网

 找回密码
 注册

QQ登录

只需一步,快速开始

展开

通知     

全站
6天前
查看: 2372|回复: 6
收起左侧

[已解决] 测绘的法兰的标准是什么?

[复制链接]
发表于 2007-8-13 19:54:18 | 显示全部楼层 |阅读模式 来自: 中国陕西榆林

马上注册,结识高手,享用更多资源,轻松玩转三维网社区。

您需要 登录 才可以下载或查看,没有帐号?注册

x
请问:
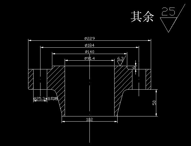
. p1 w/ I/ h  d7 S# S) d       今天仪表流量计的需要加工一个法兰,据说不符合欧洲标准和美洲标准,图中是我测绘的尺寸,大家帮我看下,这个法兰符合什么样的标准,他们说是非标准法兰,但是总得有个标准他们才做的吧!尺寸可能有些出入,毕竟是手测量的嘛。他们说压力等级600磅!这个法兰的绘制有问题吗?请指正!
0 q& E% K+ }: t0 c. K      您说,加工这个法兰需要什么技术要求吗? 它的工作温度200度,介质为灰水 ,材质20# ?; R) k7 r# i+ \' u. A
123.JPG / D( O$ |3 |( `5 v' W0 N9 A# E
$ |4 {! `* Q& v' D7 z
[ 本帖最后由 liuhob 于 2007-8-14 07:30 编辑 ]
发表于 2007-8-13 20:31:24 | 显示全部楼层 来自: 中国江苏常州
好象论坛上有法兰的标准,,你看有没你要的?. `4 F+ `. n: ?' V# w# h2 O4 G
http://www.3dportal.cn/discuz/se ... mp;searchsubmit=yes
 楼主| 发表于 2007-8-13 20:32:27 | 显示全部楼层 来自: 中国陕西榆林
我大体上查过,没有查到相关尺寸的标准啊!!
发表于 2007-8-13 20:44:59 | 显示全部楼层 来自: 中国浙江杭州
如果真是CL600,那应该是美标法兰,欧标是没有磅级这说法的,管件是用PN表示的,
( O2 M2 r5 m2 n( G6 e% K% B查了尺寸,应该是asme b16.5 的法兰
% S5 \) W% n; P( d
7 `& G7 n% z, v# d5 k) }3 q3 ^* k' ?" w! G' x8 Q
法兰标准如下
) y/ q$ W; x5 z8 J/ k( a! I2 o) I
& M4 G$ F9 [* F7 _% E6 C
' r$ B' M3 R5 B4 }http://www.3dportal.cn/discuz/viewthread.php?tid=257736&highlight=asme%2Bb16.59 w3 ~6 i# u3 S- z: w) d: b# f
9 c& ^$ A0 |  k& `* m7 Z
[ 本帖最后由 azraelzlp 于 2007-8-13 20:46 编辑 ]

评分

参与人数 1三维币 +5 收起 理由
liuhob + 5 非常感谢您!

查看全部评分

 楼主| 发表于 2007-8-13 21:30:27 | 显示全部楼层 来自: 中国陕西榆林
螺栓中心距没有规定吗??
. V( I# s) [8 Z2 S/ M2 X1 R 123.JPG , x+ R  h( W4 `1 }7 @; U, A( A& q
4 L3 [4 {2 M5 S  v, ]
[ 本帖最后由 liuhob 于 2007-8-13 21:32 编辑 ]
发表于 2007-8-14 20:10:01 | 显示全部楼层 来自: 中国浙江杭州
中心距在上一页,有开孔直径和中心距
 楼主| 发表于 2007-8-14 20:17:34 | 显示全部楼层 来自: 中国陕西榆林
谢谢您!我已经解决了!
发表回复
您需要登录后才可以回帖 登录 | 注册

本版积分规则


Licensed Copyright © 2016-2020 http://www.3dportal.cn/ All Rights Reserved 京 ICP备13008828号

小黑屋|手机版|Archiver|三维网 ( 京ICP备2023026364号-1 )

快速回复 返回顶部 返回列表