QQ登录

只需一步,快速开始

登录 | 注册 | 找回密码

三维网

 找回密码
 注册

QQ登录

只需一步,快速开始

展开

通知     

查看: 2742|回复: 14
收起左侧

[讨论] 配合尺寸的检测问题

[复制链接]
发表于 2007-8-15 14:39:42 | 显示全部楼层 |阅读模式 来自: 中国上海

马上注册,结识高手,享用更多资源,轻松玩转三维网社区。

您需要 登录 才可以下载或查看,没有帐号?注册

x
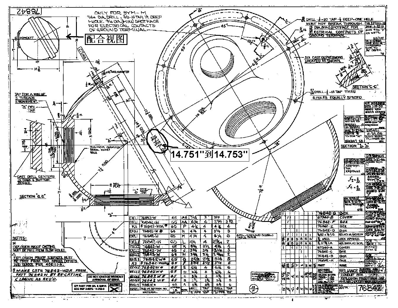
1.插图是我们生产的防爆接线盒的半个壳体,是铸铁件。
( c' g0 l: H4 Y, S; w. j1 w2.图片上的孔口配合处的内径是14.751~14.753"(英寸),图纸没有圆度要求。
( K( f2 A# P3 d$ F5 A1 I& ~0 K3.左上角显示了与另外个壳体配合的图片,另外个配合壳体的配合止口的外径是14.749~14.751"(英寸)。
3 V0 T! P% k1 x5 A/ {# u$ W4.请教大家这个配合孔口的内径如果局部位置的内径超下差了是否可以接受,内径是否可以取平均值来判断合格?7 Q* F& V% m3 T. Q: H9 s; |
(我认为是孔口直径在任何方向上的测量值都要在公差范围内,才算合格)5 K" S. o2 Q; s% ]
* w& }1 ?+ s3 Y+ O
[ 本帖最后由 daviddzj 于 2007-8-18 18:43 编辑 ]
76842sh001[1].JPG
发表于 2007-8-15 16:01:55 | 显示全部楼层 来自: 中国湖北荆州
应该可以接受,这个属于比较紧密的配合,关于圆度误差可参考相关控制原则

评分

参与人数 1三维币 +3 收起 理由
zyxwq + 3 积极参与

查看全部评分

 楼主| 发表于 2007-8-15 16:10:19 | 显示全部楼层 来自: 中国上海

回复 #2 fwg4002 的帖子

这个控制原则还真是未接触过,还望版主能指点下。
发表于 2007-8-15 16:23:50 | 显示全部楼层 来自: 中国四川内江
首先这是个防爆接线盒的半个壳体,防爆接线盒的作用是防止电缆与电器接线柱头产生火花设置的,防爆接线盒结合面的表面粗糙度.尺寸公差都是要求狠严的。所以任何方向尺寸超差都应判为不合格。

评分

参与人数 1三维币 +3 收起 理由
zyxwq + 3 积极参与

查看全部评分

发表于 2007-8-15 16:28:33 | 显示全部楼层 来自: 中国山东青岛
不能接受.
) _. |% Y( _; ^3 M/ D超了图纸范围,又是配合尺寸.万一那边的止口偏上限就装配不上了.% n; S4 l. k9 R' L5 ]9 P
: U/ o% J. ]! l& c% z$ d5 {6 f
是拿千分尺测的吗?建议在终检用通止规全检比较好.

评分

参与人数 1三维币 +3 收起 理由
zyxwq + 3 积极参与

查看全部评分

 楼主| 发表于 2007-8-16 19:21:22 | 显示全部楼层 来自: 中国浙江杭州

回复 #5 mdsli 的帖子

是用外径千分尺测量的,图纸的尺寸是英制尺寸,通止规不会那么大吧。
发表于 2007-8-16 19:40:53 | 显示全部楼层 来自: 中国江苏常州
应该是可以接受的,别紧张,因为有止口,所以火花不太可能跳出来,另外,这个的密封的要点是法兰面的平面度,螺栓压紧了就没有事了.

评分

参与人数 1三维币 +3 收起 理由
zyxwq + 3 积极参与

查看全部评分

发表于 2007-8-16 22:01:28 | 显示全部楼层 来自: 中国江苏常州
本人认为,单单对于图纸来说,任何检验出来的超差肯定是不合格的!
头像被屏蔽
发表于 2007-8-17 06:49:44 | 显示全部楼层 来自: 中国上海
提示: 作者被禁止或删除 内容自动屏蔽
发表于 2007-8-17 08:18:28 | 显示全部楼层 来自: 中国天津
个人认为:形状公差合格吗?综合形状、位置、尺寸公差合格那就合格9 N) E9 m; x! c9 v- J& u( d

0 m& Q3 |+ n2 ]. O& I# \局部位置的内径超下差了(不大)是可以接受,内径可以取相对平均值来判断合格,不能用绝对平均值;不知是什么材料,毕竟材料会有一定的弹性变形
5 S- D# D* [' k% K3 A1 f- W1 Q+ d$ _0 ?* W

2 B  B# ^0 Q  j) ~$ _实际中,偏差的不大应该不影响使用

评分

参与人数 1三维币 +3 收起 理由
zyxwq + 3 积极参与

查看全部评分

发表于 2007-8-17 08:41:33 | 显示全部楼层 来自: 中国山东青岛

回复 #6 daviddzj 的帖子

如果要求严格就要专门做个通止轨.
( `( C+ X0 f, G$ `$ G5 P另外,这个产品是注塑出来的吧?如果这样,超差很可能是批量的,需要修正模具或调整工艺.5 B  q2 M. M' N5 ~: }# A
公差很严,修正模具难度太大,就要找设计人员,还有配合件生产者,看看可否调整公差带.
# t7 k8 H+ Z0 g* _9 u. k" R$ n/ g4 z# x- h1 x. Q* X
1 p& {1 q' f% V4 n
其实这个问题理论上说是不可接受的.莫非是生产部施加压力了?

评分

参与人数 1三维币 +3 收起 理由
zyxwq + 3 积极参与

查看全部评分

发表于 2007-8-17 11:57:12 | 显示全部楼层 来自: 中国江苏镇江
建议在检验时用通止规全检比较好.

评分

参与人数 1三维币 +3 收起 理由
userkypdy + 3 积极参与

查看全部评分

 楼主| 发表于 2007-8-18 18:39:37 | 显示全部楼层 来自: 中国上海

回复 #8 chenfu1 的帖子

依据图纸,止口孔径和配合面都是防爆面,所以要求的防爆路径是两个面。(带有三角的标记)

评分

参与人数 1三维币 +3 收起 理由
userkypdy + 3 积极参与

查看全部评分

发表于 2007-8-19 11:21:33 | 显示全部楼层 来自: 中国江苏南京
不能超出图纸范围,圆度即使有误差,也应在此范围内。
发表于 2007-8-31 11:38:41 | 显示全部楼层 来自: 中国上海
结合实际的组装、使用的情况,站在 客户的角度上看可否接受,是否存在工艺镀金行为。如果存在,那更改图纸、工艺和质检标准。

评分

参与人数 1三维币 +2 收起 理由
zyxwq + 2 积极讨论

查看全部评分

发表回复
您需要登录后才可以回帖 登录 | 注册

本版积分规则


Licensed Copyright © 2016-2020 http://www.3dportal.cn/ All Rights Reserved 京 ICP备13008828号

小黑屋|手机版|Archiver|三维网 ( 京ICP备2023026364号-1 )

快速回复 返回顶部 返回列表