QQ登录

只需一步,快速开始

登录 | 注册 | 找回密码

三维网

 找回密码
 注册

QQ登录

只需一步,快速开始

展开

通知     

查看: 1977|回复: 7
收起左侧

[已解决] 请问在SW里有没有这种标注样式

[复制链接]
发表于 2007-8-24 18:06:50 | 显示全部楼层 |阅读模式 来自: 中国江苏无锡

马上注册,结识高手,享用更多资源,轻松玩转三维网社区。

您需要 登录 才可以下载或查看,没有帐号?注册

x
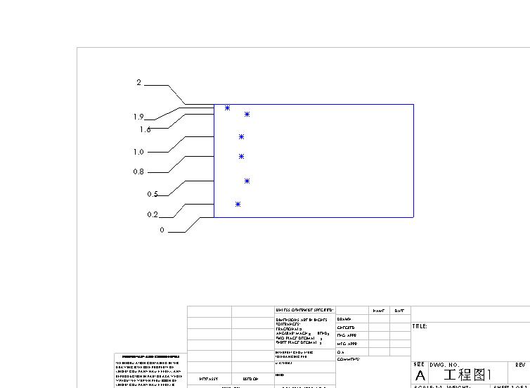
偶要标一个图,不过里面有好多地方要标尺寸 ,用常用的标注样式会把整张图弄的都是尺寸 ,要是有这种标注样式的话让人看起来就比较清楚了 。
工程图1.jpg
发表于 2007-8-24 18:16:49 | 显示全部楼层 来自: 中国四川成都
当然有了,用添加注释的功能就可以实现
发表于 2007-8-24 18:58:34 | 显示全部楼层 来自: 中国广东广州
坐标标注,很常用的,你还可以用孔表来标注

评分

参与人数 1三维币 +2 收起 理由
艾飞 + 2 应助

查看全部评分

发表于 2007-8-24 21:22:53 | 显示全部楼层 来自: 中国上海
当然可以。工具——标注尺寸——尺寸链,就可标注了。如果不要尺寸尖头,右键点击尺寸,打开属性,去掉“显示为尺寸链”前面的钩即可。
未命名7.JPG

评分

参与人数 1三维币 +3 收起 理由
艾飞 + 3 应助

查看全部评分

发表于 2007-8-24 23:16:39 | 显示全部楼层 来自: 中国江苏苏州
对啊,用尺寸链标注,水平的垂直的都有
 楼主| 发表于 2007-8-25 09:21:46 | 显示全部楼层 来自: 中国江苏无锡
OK,谢谢大家
 楼主| 发表于 2007-8-25 09:35:57 | 显示全部楼层 来自: 中国江苏无锡
谢谢大家     很多细节的东西没人告诉偶的话,怎么找都找不到
发表于 2009-12-30 11:26:19 | 显示全部楼层 来自: 中国江苏南京
我也刚刚摸索出来
发表回复
您需要登录后才可以回帖 登录 | 注册

本版积分规则


Licensed Copyright © 2016-2020 http://www.3dportal.cn/ All Rights Reserved 京 ICP备13008828号

小黑屋|手机版|Archiver|三维网 ( 京ICP备2023026364号-1 )

快速回复 返回顶部 返回列表