QQ登录

只需一步,快速开始

登录 | 注册 | 找回密码

三维网

 找回密码
 注册

QQ登录

只需一步,快速开始

展开

通知     

全站
10天前
查看: 1736|回复: 8
收起左侧

[已解决] 设计工装

[复制链接]
发表于 2007-8-28 08:24:11 | 显示全部楼层 |阅读模式 来自: 中国浙江杭州

马上注册,结识高手,享用更多资源,轻松玩转三维网社区。

您需要 登录 才可以下载或查看,没有帐号?注册

x
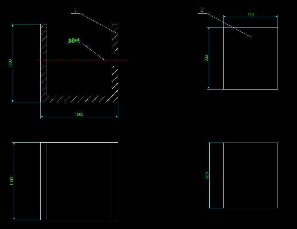
现要设计一工装,电机减速后带动件2绕轴线每分钟转动5-10转。减速机构要怎么样设计?件1和件2怎么样连接? 6.jpg
头像被屏蔽
发表于 2007-8-28 08:36:53 | 显示全部楼层 来自: 中国浙江宁波
提示: 作者被禁止或删除 内容自动屏蔽
发表于 2007-8-28 08:47:18 | 显示全部楼层 来自: 中国山西太原
件2中心需开孔插键槽,再加工一个传动轴。先将件2放进件1中的空档部位,穿入、装配轴,轴用联轴器与减速装置连接。
% B' Y' |7 T, l* c, H: p4 g减速装置用带电机的二级针轮摆线减速器和一个无级调速器组成,减速器用来减速,调速器用来将转速调至5--10转/分。& D$ w; p: d2 q  F' e
( b, ~. w$ k) r- p
[ 本帖最后由 gaoyns 于 2007-8-28 08:48 编辑 ]
 楼主| 发表于 2007-8-28 09:08:33 | 显示全部楼层 来自: 中国浙江杭州
电机放外面就可以了,转速要求不高,只要在5-10的范围内就可以了,件1和2通过轴承连接。
 楼主| 发表于 2007-8-28 10:04:32 | 显示全部楼层 来自: 中国浙江杭州
减速装置0 ~* B0 O- b5 @7 |# W" p
0 w: }' `/ T% ~) @* b9 b

+ e6 V1 H3 \  K5 n; B/ M  P- y$ } 7.jpg
发表于 2007-8-28 12:35:39 | 显示全部楼层 来自: 中国江苏扬州
思路可以用,不知电机几级?单双速?0 H* {  R# R$ V0 X& s2 c
减速比很大 需要的话再加一级减速.,需要加阻尼吗?0 G$ j# K) G; x8 S# j3 m
主要用途是什么?
发表于 2007-8-28 12:50:08 | 显示全部楼层 来自: 中国陕西汉中
我给个建议,1500r/min的电机输出转速在5-10转减速比也要到150,可采用一级1:40的蜗轮副减速加变频电机调速的方式。
 楼主| 发表于 2007-8-28 14:19:05 | 显示全部楼层 来自: 中国浙江杭州
这是一个钻模,批量也不大,都不想用电机了。件1和2要用几个什么类型的轴承连接,轴承内孔80,
发表于 2007-8-28 14:27:59 | 显示全部楼层 来自: 中国山东日照
没有看明白是怎样会事情
发表回复
您需要登录后才可以回帖 登录 | 注册

本版积分规则


Licensed Copyright © 2016-2020 http://www.3dportal.cn/ All Rights Reserved 京 ICP备13008828号

小黑屋|手机版|Archiver|三维网 ( 京ICP备2023026364号-1 )

快速回复 返回顶部 返回列表