QQ登录

只需一步,快速开始

登录 | 注册 | 找回密码

三维网

 找回密码
 注册

QQ登录

只需一步,快速开始

展开

通知     

全站
7天前
查看: 2204|回复: 7
收起左侧

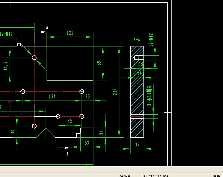
[讨论] 剖视线的长度如何修改?

[复制链接]
发表于 2007-8-28 11:53:17 | 显示全部楼层 |阅读模式 来自: 中国北京

马上注册,结识高手,享用更多资源,轻松玩转三维网社区。

您需要 登录 才可以下载或查看,没有帐号?注册

x
剖视线的长度如何修改?
- h" w$ K4 @3 X0 ?1 u
0 _6 j. b/ x# ?  k! c) {7 ^: s8 Q) y9 O[ 本帖最后由 wlkr 于 2007-8-29 07:42 编辑 ]
111.jpg
 楼主| 发表于 2007-8-28 12:00:17 | 显示全部楼层 来自: 中国北京
第一个图片错了。怎么删除?
发表于 2007-8-29 00:05:31 | 显示全部楼层 来自: 中国广东佛山
原帖由 CG0716 于 2007-8-28 12:00 发表 http://www.3dportal.cn/discuz/images/common/back.gif# t* `. i" G) _8 `
第一个图片错了。怎么删除?
4 W7 e2 s* L8 l9 |1 y

2 K3 |0 n, A0 G3 D6 G; Z2 ]1 X6 C很简单吧,要这样改
& H9 T: g8 [" q7 y; _在你贴子的右下角的“编辑“后,出现编辑页面,$ _, W5 a5 A! Y" y- G# f' q% o$ w
1、要想删除,在1处钩选。
, R) N: [4 d! t2、要想换图片,在2处点“更新”——浏览,
; {2 v0 {- ^( {. e" i( `# t, t+ i
- s$ m( L( q' N* ][ 本帖最后由 小贾师傅CAXA 于 2007-8-29 00:16 编辑 ]
1.JPG

评分

参与人数 1三维币 +5 收起 理由
wlkr + 5 应助

查看全部评分

发表于 2007-8-29 07:42:54 | 显示全部楼层 来自: 中国浙江温州
原帖由 CG0716 于 2007-8-28 12:00 发表 http://www.3dportal.cn/discuz/images/common/back.gif
6 @6 Q2 H. e) c1 d0 t( s& Q- r! \3 d第一个图片错了。怎么删除?

7 q" y" K7 [8 o& p. S我帮你编辑了一下,应该是这样吧。
 楼主| 发表于 2007-8-29 08:26:56 | 显示全部楼层 来自: 中国北京
谢谢了.那剖视线的长度咋修改呢?
发表于 2007-8-29 08:45:02 | 显示全部楼层 来自: 中国河南郑州
它是一个块,大概只能打散改吧
 楼主| 发表于 2007-8-29 09:12:19 | 显示全部楼层 来自: 中国北京
如果不打散,在那里有参数可以修改.我的同事们的有的就比较短
 楼主| 发表于 2007-8-29 10:45:17 | 显示全部楼层 来自: 中国北京
我找到办法了,就是修改标注格式
: Y; w! t. y5 m* I
% |) _; Z' D! H# g) z[ 本帖最后由 CG0716 于 2007-8-29 11:06 编辑 ]
222.jpg
发表回复
您需要登录后才可以回帖 登录 | 注册

本版积分规则


Licensed Copyright © 2016-2020 http://www.3dportal.cn/ All Rights Reserved 京 ICP备13008828号

小黑屋|手机版|Archiver|三维网 ( 京ICP备2023026364号-1 )

快速回复 返回顶部 返回列表