QQ登录

只需一步,快速开始

登录 | 注册 | 找回密码

三维网

 找回密码
 注册

QQ登录

只需一步,快速开始

展开

通知     

全站
9天前
查看: 2031|回复: 12
收起左侧

[已解决] 请问这个符号是啥意思

[复制链接]
发表于 2007-8-28 13:54:45 | 显示全部楼层 |阅读模式 来自: 中国江苏无锡

马上注册,结识高手,享用更多资源,轻松玩转三维网社区。

您需要 登录 才可以下载或查看,没有帐号?注册

x
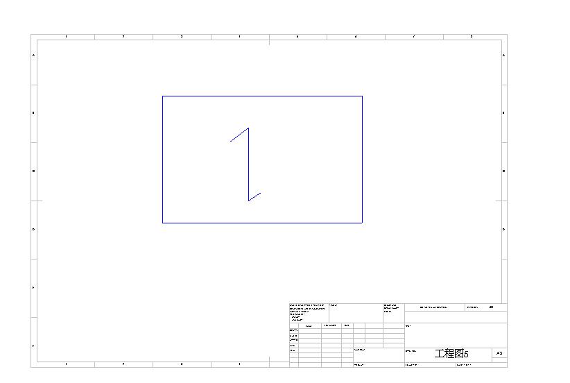
如题 在标注中出现这个符号是表示啥意思
0 \' ?! I1 E: X, O, E8 `# W# Z! ]7 d; z* r: n/ D( V, U% S
[ 本帖最后由 黄梦幻 于 2007-8-30 11:50 编辑 ]
工程图5.jpg
发表于 2007-8-28 15:13:47 | 显示全部楼层 来自: 中国山东聊城
什么情况下出现的这种情况
发表于 2007-8-28 15:30:31 | 显示全部楼层 来自: 中国浙江宁波
注在那里,可以详细点吗?
发表于 2007-8-28 20:57:33 | 显示全部楼层 来自: 中国陕西汉中
用在啥地方的,说明一下
发表于 2007-8-28 21:17:55 | 显示全部楼层 来自: 中国浙江温州
什么情况下出现的?是不是你自己特意弄的?
发表于 2007-8-28 21:22:45 | 显示全部楼层 来自: 中国山东济南
是不是焊接符号?
头像被屏蔽
发表于 2007-8-29 22:42:11 | 显示全部楼层 来自: 中国江苏常州
提示: 作者被禁止或删除 内容自动屏蔽
发表于 2007-8-30 08:50:11 | 显示全部楼层 来自: 中国河北沧州
原帖由 yyi2001 于 2007-8-29 22:42 发表 http://www.3dportal.cn/discuz/images/common/back.gif
2 B- N. S5 `  m2 r: a表示栅格板的布置方向。

3 R4 L7 v' ~0 G" _2 z" F- X6 r栅格板需要这样标注吗??
 楼主| 发表于 2007-8-30 09:01:37 | 显示全部楼层 来自: 中国江苏无锡
原帖由 yyi2001 于 2007-8-29 22:42 发表 http://www.3dportal.cn/discuz/images/common/back.gif
. d1 b7 e, \/ l% ~表示栅格板的布置方向。
: f& W3 ?2 d/ _) N/ R: O
恩  可能是 ,那它表示什么方向呢?
头像被屏蔽
发表于 2007-8-30 10:53:58 | 显示全部楼层 来自: 中国江苏常州
提示: 作者被禁止或删除 内容自动屏蔽
发表于 2007-8-30 11:06:47 | 显示全部楼层 来自: 中国浙江温州

回复 #10 yyi2001 的帖子

嗯,又学了一招,虽然绝大部分情况下用不上
 楼主| 发表于 2007-8-30 11:49:41 | 显示全部楼层 来自: 中国江苏无锡
没错 就是这个意思 ,谢谢 ,偶的零件虽然不是用来走路的栅格板,但是也是用钢条一根一根焊上去的,应该也是用来表示铁条的方向,谢谢前辈指教
发表于 2007-8-30 13:23:34 | 显示全部楼层 来自: 中国浙江温州
哈哈,原来如此.没见过的东东
发表回复
您需要登录后才可以回帖 登录 | 注册

本版积分规则


Licensed Copyright © 2016-2020 http://www.3dportal.cn/ All Rights Reserved 京 ICP备13008828号

小黑屋|手机版|Archiver|三维网 ( 京ICP备2023026364号-1 )

快速回复 返回顶部 返回列表