QQ登录

只需一步,快速开始

登录 | 注册 | 找回密码

三维网

 找回密码
 注册

QQ登录

只需一步,快速开始

展开

通知     

全站
7天前
查看: 3242|回复: 17
收起左侧

[讨论] 三维练习题

[复制链接]
发表于 2007-9-25 10:29:06 | 显示全部楼层 |阅读模式 来自: 中国辽宁营口

马上注册,结识高手,享用更多资源,轻松玩转三维网社区。

您需要 登录 才可以下载或查看,没有帐号?注册

x
根据三视图建立三维模型
' m  y: I% j# W2 s8 ?! v Untitled-1.gif

三维练习.rar

17.64 KB, 下载次数: 29

dwg文件2000格式

发表于 2007-9-25 11:33:55 | 显示全部楼层 来自: 中国江苏苏州
这个简单啊....不知道画对没!
练习.JPG
发表于 2007-9-25 12:34:08 | 显示全部楼层 来自: 中国台湾
三维练习,请大大PP
影像3.png
发表于 2007-9-25 12:57:43 | 显示全部楼层 来自: 中国江苏南京
这个练习题太简单没劲
, Z+ e' q; v6 [# }% @* {0 {, n- @& e! O0 h& b
未命名(dwg).rar (26.53 KB, 下载次数: 3)
发表于 2007-9-25 13:55:24 | 显示全部楼层 来自: 中国江苏扬州
这个可能对于练习学做三维的是个好练习
* q$ O3 U7 _( f" C: N% L" ^我还是喜欢二维的
发表于 2007-9-25 16:58:40 | 显示全部楼层 来自: 中国湖北武汉
有没有教程
发表于 2007-9-26 09:45:13 | 显示全部楼层 来自: 中国广东广州

呵呵

本来就是简单的东西 我看都不看的
发表于 2007-9-26 14:41:40 | 显示全部楼层 来自: 中国四川宜宾
这个还算比较简单的了
发表于 2007-9-26 17:09:51 | 显示全部楼层 来自: 中国重庆
个人认为三维用得比较少!
发表于 2007-9-26 17:46:36 | 显示全部楼层 来自: 中国广西梧州
先收藏了,,等下试试。。。
7 l* W+ x1 i# K2 a5 A% p% Z2 W
  N+ D% G; _& N3 I4 X- H9 L) }. {. c在此想请问一下楼上的各位。在绘图的时候是根据设计师的图纸出工程图,还是根据实物自己测量出的呢?
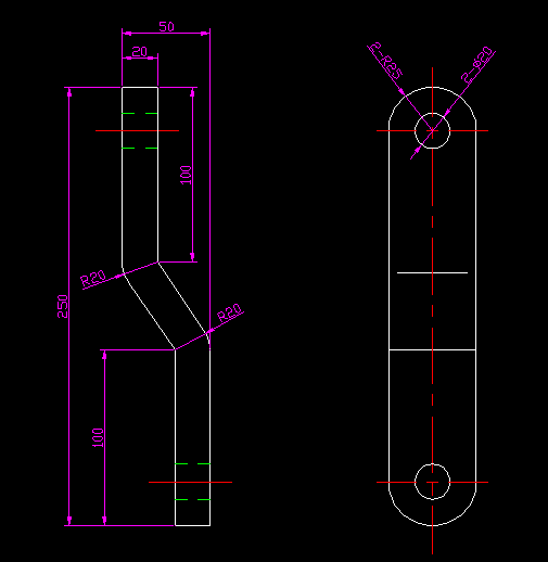
 楼主| 发表于 2007-9-27 10:30:35 | 显示全部楼层 来自: 中国辽宁营口
看看这次还简单吗?最好说下你的画图步骤。
1 |4 ], H. M) H( S2 o/ C& H Untitled-2.gif

三维练习2.rar

26.05 KB, 下载次数: 18

发表于 2007-9-27 11:35:28 | 显示全部楼层 来自: 中国广东中山
1。将两视图拉伸成实体,! a& g9 ^8 K1 I0 q) V8 x* j/ }
2,将其中一幅三维旋转90度
' o: S6 r  e3 S3、移动把两视体合在一起1 N0 ^9 Z' N7 t8 u5 ^+ m8 d' q
4、实体编辑中的并集找出公共部分,得结果。
! J# }# N) [* j呵呵,不知道这样做合不合理,
1.JPG
发表于 2007-9-27 13:18:51 | 显示全部楼层 来自: 中国江苏苏州
楼上正解!!
未命名.JPG
 楼主| 发表于 2007-9-28 05:41:59 | 显示全部楼层 来自: 中国
原帖由 haludyi 于 2007-9-27 11:35 发表 http://www.3dportal.cn/discuz/images/common/back.gif$ Z) K* F  H6 J* O
1。将两视图拉伸成实体,
9 P' m2 T& l6 U6 a5 j6 R2,将其中一幅三维旋转90度, j$ F# A2 n) o7 v  U
3、移动把两视体合在一起
1 e& [1 B, [  W5 U4、实体编辑中的并集找出公共部分,得结果。. y( H9 F$ A+ V* P
呵呵,不知道这样做合不合理,
( h, S$ i- h/ z- ^* _; \* ]
并集??? :o :o
发表于 2007-9-28 08:38:40 | 显示全部楼层 来自: 中国江苏苏州

回复 #14 woaishuijia 的帖子

是交集....汗!!!
发表于 2007-9-28 09:07:06 | 显示全部楼层 来自: 中国广东广州

太简单了

刚学autocad的时候都画过了
发表于 2007-9-28 09:41:17 | 显示全部楼层 来自: 中国北京
是呀!太简单了!不过还可以!
发表于 2008-9-10 11:39:50 | 显示全部楼层 来自: 中国江苏镇江

good

i want it ,thanks a lot
发表回复
您需要登录后才可以回帖 登录 | 注册

本版积分规则


Licensed Copyright © 2016-2020 http://www.3dportal.cn/ All Rights Reserved 京 ICP备13008828号

小黑屋|手机版|Archiver|三维网 ( 京ICP备2023026364号-1 )

快速回复 返回顶部 返回列表