QQ登录

只需一步,快速开始

登录 | 注册 | 找回密码

三维网

 找回密码
 注册

QQ登录

只需一步,快速开始

展开

通知     

查看: 2765|回复: 25
收起左侧

[讨论] 高手帮忙看看图

[复制链接]
发表于 2007-9-26 21:50:14 | 显示全部楼层 |阅读模式 来自: 中国福建三明

马上注册,结识高手,享用更多资源,轻松玩转三维网社区。

您需要 登录 才可以下载或查看,没有帐号?注册

x
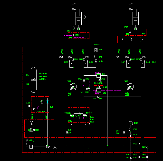
我们厂圆盘剪入口夹送辊液压控制原理图如下:
& R( R- Z/ O! N  }0 t0 ]夹送辊液压缸带MTS位移传感器,配上比例方向阀控制两个夹送辊液压缸动作的同步。可实际使用中,同步性并不是很理想。

圆盘剪夹送辊.rar

248.88 KB, 下载次数: 17

发表于 2007-9-26 22:13:31 | 显示全部楼层 来自: 中国河南驻马店
楼主的图纸打不开,请验证一下。
发表于 2007-9-26 22:49:51 | 显示全部楼层 来自: 中国安徽铜陵

回复 #2 9619 的帖子

是可以打开的,准备想帖张图的,但大了些,看不清楚!请了解的朋友都下了看看
发表于 2007-9-26 23:11:00 | 显示全部楼层 来自: 中国安徽黄山
看不了啊!是不是我还不够格啊
发表于 2007-9-26 23:32:10 | 显示全部楼层 来自: 中国浙江绍兴
是不是文件的版本问题,我的CAD是2004的,打开这个文件时跳出“图形文件无效”,确实是打不开啊!
 楼主| 发表于 2007-9-27 00:03:05 | 显示全部楼层 来自: 中国福建三明
我电脑上的是AUTO CAD2007,我不会图纸弄在帖上,请斑竹帮忙呀
发表于 2007-9-27 00:22:42 | 显示全部楼层 来自: 中国浙江绍兴
另存一下,把版本存低了再发!
发表于 2007-9-27 07:16:26 | 显示全部楼层 来自: 中国河南安阳
我的CAD2006、CAXA2007R2都打不开,请楼主用低版本存了再发,不然很多人打不开你的图纸的。
发表于 2007-9-27 08:29:45 | 显示全部楼层 来自: 中国安徽铜陵
帖张图请大家都看看!
未命名1.JPEG

评分

参与人数 1三维币 +3 收起 理由
9619 + 3 积极应助

查看全部评分

发表于 2007-9-27 08:40:49 | 显示全部楼层 来自: 中国安徽马鞍山

回复 #1 zhengmzh888 的帖子

这个肯定不行,因为两个缸虽然有位移传感器,但是均为同一个比例阀控制,用两个比例阀分别控制肯定好,不过代价大,而且系统修改地方多。或者增加分流节流阀。楼主自己平衡处理。4 Z5 q( `2 b3 t( i2 ~6 z6 ~/ m" k
另外楼主的圆盘剪是哪一家的?

评分

参与人数 1三维币 +3 收起 理由
9619 + 3 积极应助

查看全部评分

发表于 2007-9-27 09:58:03 | 显示全部楼层 来自: 中国江苏无锡
最好贴张图!我的CAD坏了!你说圆盘前的夹送辊,那个不是普通的是带纠偏功能的,和其配用的是应该伺服阀(一般要求高或线速度快伺服阀改用MOOG的可以得到较好的效果)!在圆盘剪和夹送辊之间还应有个磁性检测框用来检测位置的!这是一套全闭环的东西!
" l: B2 ]8 C( s一般用的都是EMG公司的!日本也有一个厂有,我记不清了!全球就这两家做的好点!
6 I" ~( @8 L6 r; @5 e. y
# u) j8 Z. l) r  ~$ b) y[ 本帖最后由 wuwanfu 于 2007-9-27 10:00 编辑 ]

评分

参与人数 1三维币 +3 收起 理由
9619 + 3 积极应助

查看全部评分

发表于 2007-9-27 10:33:36 | 显示全部楼层 来自: 中国江苏无锡
感谢晨砂版主的贴图!+ X( z% ^% v  `' }  D/ Z
我在这张图调节同步的装置就是单项阀桥式整流!这种应该隶属与调速同步回路!(我记得在以前的帖子跟9616版主提过这种调速方式,就是这种调速同步回路)是液压缸实现双向同步,且上下移动的速度相等,这种同步的精度受油温变化较大!这种同步的精度不高!但是有调同步的效果!不知楼主对15.16两个阀楼主有没有动过!要是动了必须要两个都调整好!要是要求不是很高的情况可以使用这种调同步的方式!你要是要求高的话可以把15.16阀换成单项阀桥式整流阀里的单项节流阀换成比例调速阀,那精度就相当高了!但是没有伺服阀精度高!(他这样设计我想应该可以满足你的使用要求,建议楼主慢慢的调,调这个很费时间就像调碟片式抱闸两边同步一样)9 r0 P2 ?4 f9 b5 V3 T
: c3 F% n! v0 a& B8 d! B: n) a: M/ H
说句题外话你们干吗要两个油缸!一根就可以解决的呀!还有最好用伺服阀!
% B4 {& d3 ^3 X8 [0 v
; K" C9 w- d7 l& k2 {/ ?# \" o% W3 _[ 本帖最后由 wuwanfu 于 2007-9-27 10:39 编辑 ]

评分

参与人数 1三维币 +5 收起 理由
9619 + 5 积极应助,很详细。

查看全部评分

 楼主| 发表于 2007-9-27 11:40:23 | 显示全部楼层 来自: 中国福建三明
楼上说的很对,在初期调试时,就是用对讲机慢慢调的,目测接近同步,可过段时间就不灵了,又要再调.
+ ?$ `5 |- m7 x9 V. r: h' R回10楼:我们这是二重的产品.
发表于 2007-9-27 13:05:16 | 显示全部楼层 来自: 中国河南安阳
这样的系统同步效果很差,wuwanfu 已说得很清楚:这种同步的精度受油温变化较大。; g. Z% |2 F- X- @% W2 ^. ?& f4 t
不建议采用这样的回路实现同步。
发表于 2007-9-27 13:11:57 | 显示全部楼层 来自: 中国江苏无锡
老实说设备做的不怎么样!既然版主提到圆盘剪,国内的圆盘剪都不怎样!我在这里不是说国内的东西不好!台湾做的倒是还可以!现在的对中做的都是一个液压缸!两个的没有见过!关键你这套装备也没少话钱!唉!!!!!!!!你们选设备的人没有看好!
, @3 |- n, C1 N版主既然提到圆盘剪我发几张图共享一下,还有楼主的纠偏夹送辊,说明一下:我们这套圆盘剪是双刀头的,一边在生产一边就可以换刀(节省换刀时间),通过液压马达旋转,液压螺母锁紧,(刀片用的是甘油液压螺母锁紧的)传动部分通过离合器式联接器分开合上!当然我说的简单了点!(上面用的东西都是精品哦!!!各各都是响当当的牌子!)7 W8 n: ], W& r* d
照片上的有点脏!是年修的时候拍的!大家见谅了!$ o) G9 h" d; W7 b
; y+ g$ Y1 s& u# i7 Z& z. A# V
[ 本帖最后由 wuwanfu 于 2007-9-27 13:21 编辑 ]
纠偏夹送滚.JPG
控制纠偏的伺服阀和位移传感器.JPG
双刀头圆盘剪.JPG
圆盘剪5.JPG

评分

参与人数 1三维币 +5 收起 理由
柠檬咖啡 + 5 鼓励发实物照片!便于参照

查看全部评分

发表于 2007-9-27 16:45:27 | 显示全部楼层 来自: 中国辽宁大连
下载后没有打开,从上面贴的图看,确实是单向半桥整流调速,需要手动调整,误差较大。如果需要较高的精度,楼主可以考虑采用分流集流阀或同步马达。

评分

参与人数 1三维币 +3 收起 理由
9619 + 3 积极应助

查看全部评分

发表于 2007-9-27 18:24:37 | 显示全部楼层 来自: 中国安徽铜陵
楼主采用的是单向阀组成的流量调整板,这种同步精度一般可达到百分之五到百分之十。精度受油温影响比较大,这点wuwanfu说得很清楚了,另外还有一点:受油液精度影响也很大,这点大家都清楚,只是提醒一下

评分

参与人数 1三维币 +3 收起 理由
9619 + 3 积极应助

查看全部评分

 楼主| 发表于 2007-9-27 18:36:15 | 显示全部楼层 来自: 中国福建三明
我们这台是圆盘式双边剪(这种剪自身设计就过时了)听说是转换国外的图纸和设计,是二重第一次做的,也是中国一冶第一次安装的。机械部分、电机等都是国产货。编码器、液压阀等倒多是进口的。现在一直都在将就的运行着。
发表于 2007-9-27 19:08:48 | 显示全部楼层 来自: 中国天津
向同志们学习,头一次听说圆盘剪这个词,搂主的问题应该讨论明白了,我看了图,有一事不明,大家帮看一下,图中间有一个主油路都是虚线的那个阀,应该是远程调控阀吧,他的进油路左边接个减压阀,同时上边接个背压阀,一个导阀控制两个主阀,这种设计是何意?

评分

参与人数 1三维币 +2 收起 理由
9619 + 2 积极参与

查看全部评分

发表于 2007-9-27 21:48:43 | 显示全部楼层 来自: 中国江苏无锡
两个背压发阀,分别控制两个缸的背压有单项阀隔开的!中间那个红虚线框框是远程调压的!

评分

参与人数 1三维币 +3 收起 理由
9619 + 3 积极应助

查看全部评分

发表于 2007-9-27 21:59:09 | 显示全部楼层 来自: 中国天津

回复 #20 wuwanfu 的帖子

两个背压阀?         上面的是背压阀,你看那两个阀的主油路的绿色箭头和控制虚线的关系。
发表于 2007-9-27 22:51:21 | 显示全部楼层 来自: 中国安徽铜陵

回复 #20 wuwanfu 的帖子

能控制两个缸的背压吗!请看远控阀下面那个单向阀扮演的角色。上面那个也不应该是背压阀,而应是安全阀。红虚线框框是远程调压阀是没错了。

评分

参与人数 1三维币 +3 收起 理由
9619 + 3 积极应助

查看全部评分

发表于 2007-9-28 07:34:20 | 显示全部楼层 来自: 中国天津

回复 #22 晨砂 的帖子

开始没仔细看,以为远控阀下面那个单向阀是向右打开,(估计 wuwanfu和我一样看走眼了),又一看 向右打开从原理上说不通,于是给你发个短信,询问远控阀下面那个单向阀的方向。同意溢流阀起安全阀作用,不过安全阀一般根据系统过载承受能力单独设定的,而现在安全阀与减压阀联动,是不是可以把遥控阀与减压阀、溢流阀控制腔相连理解为 三通减压阀,我是看图说话,此案还需要有实际经验的wuwanfu来破。

评分

参与人数 1三维币 +3 收起 理由
9619 + 3 积极应助

查看全部评分

发表于 2007-9-28 10:00:17 | 显示全部楼层 来自: 中国江苏无锡
我的CAD坏了!图看不清楚!可能是我看错了!不过要是这样的设计不合理!做的很不好!我劝楼主你们的圆盘剪迟早要换的!我参观过的兩个有圆盘剪的国产生产线,都是换了台湾生产的!其实在里面液压系统还是次要的关键是你的重叠量和刀片间隙量要调的准!要在刀片快速旋转工作的的时候锁住不能有一丝的移动!剪出来的产品才是好的!发两张图片给你看看!(我们的产品在华东地区是排的上名的) :lol: :lol:
$ y* ]- I# u& d1 v& A2 t$ l; {
6 }7 ~% j" S. @+ q/ h[ 本帖最后由 wuwanfu 于 2007-9-28 10:02 编辑 ]
STA40615.JPG
STA40686.JPG
发表于 2007-9-28 10:25:41 | 显示全部楼层 来自: 中国江苏无锡
我把机组照片拿出来和大家分享一下!
( j/ A4 l" r  ~采用的是奥地利的Andritz的推拉式酸洗线,所用的酸洗用酸为盐酸,选定的推式酸洗机组,其主要目的就是作为冷轧的前工序,清除热轧带钢表面的氧化铁皮;其次将热轧卷进行酸洗,除去氧化铁皮,涂上防锈油(或轧制油),作为商品卷出售。公司生产所用的原料是采购过来的热轧商品卷,通过一套开卷装置打开钢卷,使带钢经工艺段酸洗、漂洗、烘干,涂油(根据需要)处理后卷取。年产55万吨,机组最高线速度200米/分,正常工作180.
, [( e4 y( s/ [随便说一下这条线是冶金薄板中最简单的一条机组!!!!!不过但设备就花了1.4人民币!!0 n$ i  ~( J1 f! y$ S$ `+ _
1 \( O# Y- e6 y5 p8 n
[ 本帖最后由 wuwanfu 于 2007-9-28 10:28 编辑 ]
机组头部.JPG
机组工艺段.JPG
机组尾部.JPG
发表回复
您需要登录后才可以回帖 登录 | 注册

本版积分规则


Licensed Copyright © 2016-2020 http://www.3dportal.cn/ All Rights Reserved 京 ICP备13008828号

小黑屋|手机版|Archiver|三维网 ( 京ICP备2023026364号-1 )

快速回复 返回顶部 返回列表