QQ登录

只需一步,快速开始

登录 | 注册 | 找回密码

三维网

 找回密码
 注册

QQ登录

只需一步,快速开始

展开

通知     

全站
6天前
查看: 2491|回复: 15
收起左侧

[已解决] 管板为什么要开槽?

[复制链接]
发表于 2007-10-5 09:43:28 | 显示全部楼层 |阅读模式 来自: 中国湖北荆州

马上注册,结识高手,享用更多资源,轻松玩转三维网社区。

您需要 登录 才可以下载或查看,没有帐号?注册

x
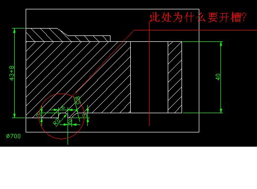
如图 开槽有什么用?
未命名.JPG

评分

参与人数 1三维币 +2 收起 理由
liuhob + 2 鼓励发起讨论!

查看全部评分

发表于 2007-10-5 10:11:52 | 显示全部楼层 来自: 中国湖北宜昌
说实话  没认清楚图里是个什么零件
发表于 2007-10-5 10:17:47 | 显示全部楼层 来自: 中国北京
设计为对接接头形式,便于焊接,保证焊接质量。
发表于 2007-10-5 10:22:54 | 显示全部楼层 来自: 中国江苏
槽里面是用来插入筒节、方便焊接的吧,可是你的槽又没开坡口。有点看不明白。
 楼主| 发表于 2007-10-5 10:37:50 | 显示全部楼层 来自: 中国湖北荆州
不是我的槽 是设计院开的槽 很多GB上也有此图不知道为什么要开槽 据说是为了好焊 ......
发表于 2007-10-5 10:58:48 | 显示全部楼层 来自: 中国山西太原
这是热交换器和蒸发器的常用结构,焊接前将筒体插入管板的圆环槽内,一是为了准确定位,二是为了增加焊接的牢固性。这里是角焊缝,不用打坡口。为减小应力集中,尖角处都作成圆弧过渡。

评分

参与人数 1三维币 +8 收起 理由
折桂使者 + 8 应助

查看全部评分

发表于 2007-10-5 11:38:49 | 显示全部楼层 来自: 中国浙江绍兴
这是应力释放(缓解)槽嘛。注意楼主发的图片并不是筒体插入圆环槽内,而是与外侧的小凸肩形成一个对接的角焊缝,筒体仍需要打坡口,具体可以看GB151附录G图G1b。

评分

参与人数 1三维币 +8 收起 理由
折桂使者 + 8 应助

查看全部评分

发表于 2007-10-5 11:54:47 | 显示全部楼层 来自: 中国四川宜宾
管板与筒体对接接头开槽,是标准上的一个典型结构!
发表于 2007-10-5 13:17:04 | 显示全部楼层 来自: 中国黑龙江哈尔滨
减应力槽,焊接结构上较常见
 楼主| 发表于 2007-10-5 14:19:44 | 显示全部楼层 来自: 中国湖北荆州
7楼正解  牛人也!!!!
发表于 2007-10-5 17:25:38 | 显示全部楼层 来自: 中国江苏无锡
这是一个对头接头,主要还是为了减小应力集中。
头像被屏蔽
发表于 2007-10-6 14:07:41 | 显示全部楼层 来自: 中国江苏南京
提示: 作者被禁止或删除 内容自动屏蔽
发表于 2007-10-12 16:19:00 | 显示全部楼层 来自: 中国四川自贡
12楼的解释有道理,很全面.
发表于 2007-10-15 11:28:12 | 显示全部楼层 来自: 中国上海
受教了,7楼强人也。
发表于 2007-10-15 13:33:45 | 显示全部楼层 来自: 中国上海
我是新人,学习一下,受教了
发表于 2007-10-16 14:18:23 | 显示全部楼层 来自: 中国江苏泰州

这是应力释放(缓解)槽

这是应力释放(缓解)槽,这样的结构也有利于NDT
发表回复
您需要登录后才可以回帖 登录 | 注册

本版积分规则


Licensed Copyright © 2016-2020 http://www.3dportal.cn/ All Rights Reserved 京 ICP备13008828号

小黑屋|手机版|Archiver|三维网 ( 京ICP备2023026364号-1 )

快速回复 返回顶部 返回列表