QQ登录

只需一步,快速开始

登录 | 注册 | 找回密码

三维网

 找回密码
 注册

QQ登录

只需一步,快速开始

展开

通知     

全站
11天前
查看: 2064|回复: 13
收起左侧

[已解决] 有谁知道这个工件的2个M6用什么夹具

[复制链接]
发表于 2007-11-10 17:52:55 | 显示全部楼层 |阅读模式 来自: 中国广东广州

马上注册,结识高手,享用更多资源,轻松玩转三维网社区。

您需要 登录 才可以下载或查看,没有帐号?注册

x
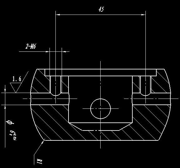
有谁知道这个工件的2个M6用什么夹具
工件.jpg
发表于 2007-11-10 18:21:03 | 显示全部楼层 来自: 中国四川成都
楼主是说加工M6及什么夹具吗?4 w; ], v: A1 w" {" q
夹紧很简单,定位则要讲究些.8 Z2 M/ |8 f% F$ O8 Y
如果是说通过M6夹紧用什么,我就有些晕了,螺钉嘛!4 V5 K8 n. u$ C6 G% W
这里对加工精度不明白,所以定位的事请LZ表达清楚再说,问问题要有好习惯!
 楼主| 发表于 2007-11-10 18:31:09 | 显示全部楼层 来自: 中国广东广州
意思就系,我想系这个工件攻2个M6孔,那么要用到什么夹具
发表于 2007-11-10 18:56:23 | 显示全部楼层 来自: 中国湖北十堰
如果是大批量的话就要用钻模了
 楼主| 发表于 2007-11-10 19:18:57 | 显示全部楼层 来自: 中国广东广州
依家就系大批量的。。。。。。。。。
发表于 2007-11-10 20:00:03 | 显示全部楼层 来自: 中国湖北十堰
很简单,用钻模板钻底孔,后自由攻丝
发表于 2007-11-10 20:50:09 | 显示全部楼层 来自: 中国湖南株洲
楼主:从图上看本零件有多个和多种孔要钻,因此应有一个总体的工艺设计。请发一张2D详图,以便全面考虑。
发表于 2007-11-10 23:35:35 | 显示全部楼层 来自: 中国湖北宜昌
可组组合夹具钻底孔,再坟丝.
发表于 2007-11-11 10:15:44 | 显示全部楼层 来自: 中国山西太原
作一个钻底孔模板,下面车一个定位支口,与中间孔配合,配合公差为H7/h6,钻孔距为45的2-φ5.1钻孔。若批量大,此处要镶孔套,热处理后与模板紧配合。可整批钻完孔后再攻2-M6螺孔。

评分

参与人数 1三维币 +3 收起 理由
渔樵 + 3 应助

查看全部评分

 楼主| 发表于 2007-11-12 00:48:31 | 显示全部楼层 来自: 中国广东广州
我的目标就系攻这2个M6的螺纹孔,其它都不用理,那又用到什么夹具呢
发表于 2007-11-12 08:52:54 | 显示全部楼层 来自: 中国上海
自制一专用夹具,限定螺孔的位置
发表于 2007-11-12 09:04:55 | 显示全部楼层 来自: 中国福建泉州
加工2-M6的螺孔可用中间的大孔来定位,但前提是大孔必须经过精加工,孔径及光泽度都要达到一定的精度。钻夹具应以中间大孔定位,两螺孔径线切割来保证精度,夹具须经热处理。

评分

参与人数 1三维币 +3 收起 理由
渔樵 + 3 应助

查看全部评分

 楼主| 发表于 2007-11-13 01:42:19 | 显示全部楼层 来自: 中国广东广州
攻2-M6的螺纹孔的装配图,大家比D意见
攻2-M6螺纹孔.jpg
 楼主| 发表于 2007-11-13 18:13:03 | 显示全部楼层 来自: 中国广东广州
大家发表下意见。。。。。。。。。。。
发表回复
您需要登录后才可以回帖 登录 | 注册

本版积分规则


Licensed Copyright © 2016-2020 http://www.3dportal.cn/ All Rights Reserved 京 ICP备13008828号

小黑屋|手机版|Archiver|三维网 ( 京ICP备2023026364号-1 )

快速回复 返回顶部 返回列表