QQ登录

只需一步,快速开始

登录 | 注册 | 找回密码

三维网

 找回密码
 注册

QQ登录

只需一步,快速开始

展开

通知     

查看: 7161|回复: 14
收起左侧

[分享] ca6140 机床手柄座 零件图 工艺路线

[复制链接]
发表于 2007-11-28 19:56:51 | 显示全部楼层 |阅读模式 来自: 中国山东青岛

马上注册,结识高手,享用更多资源,轻松玩转三维网社区。

您需要 登录 才可以下载或查看,没有帐号?注册

x
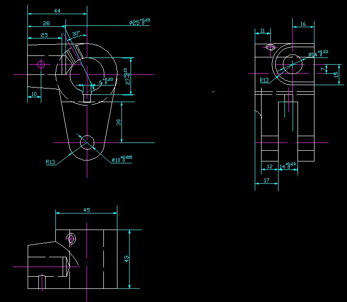
具体的工艺过程如下:- e% x. A1 B; A" A4 [, Y/ M# e
工序一:粗铣上、下表面,精铣下表面,上、下表面互为基准进行加工,选用X63卧式铣床加工;( p8 W8 q  @6 w5 M! e
工序二:粗、精车Φ25 mm,以下表面为基准,用响应的卡具夹紧工件选用C620立式车床;7 o7 N* E! K0 T3 r( c
工序三:插键槽6H9,利用工件上、下表面定位,选用    ;) J$ ?$ b0 m4 O! }9 G. c
工序四:铣槽14*43 mm,利用上、下表面定位,选用X63卧式铣床及专用夹具定位;- P- d& C8 S8 c$ w7 N
工序五:钻、拉孔Φ10H7,利用上下表面、及键槽6H9定位,选用Z525立式钻床;* C5 E9 V2 K7 [& s9 G: A  s
工序六:钻孔Φ5.5 mm,以上、下表面定位及定位,选用Z525立式钻床;
9 U6 S7 q, h! L/ H8 G" C, U工序七:钻、扩Φ14H7,选用Z525立式钻床;
' L9 }3 y* U! |- Q2 @6 e( _8 _. t) g工序八:钻、钳Φ5 mm、M10--7H以上、下表面定位及Φ25 H8定位,选用Z525立式钻床及专用夹具;
2 t& z8 e& Z, h0 ^' ^) b工序九:终检。# B% J" V. p, f) o
CA6140车床手柄座A32.rar (31.34 KB, 下载次数: 458)
7-1.jpg

评分

参与人数 1三维币 +10 收起 理由
2005llnn + 10 好资料,感谢对论坛的支持!

查看全部评分

发表于 2008-6-22 13:54:01 | 显示全部楼层 来自: 中国江苏盐城
好东西啊,顶啊啊
发表于 2008-6-30 00:14:45 | 显示全部楼层 来自: 中国广东湛江
工序二:粗、精车Φ25 mm,以下表面为基准,用响应的卡具夹紧工件选用C620立式车床;; P; S  b7 S8 V' E( ^2 n* F
的夹具应是怎么样呀?
发表于 2008-6-30 19:10:19 | 显示全部楼层 来自: 中国湖北武汉
工序一 粗、精铣φ20孔上端面。
( b4 i" j' H3 W2 D  K" A5 S% p4 C工序二 钻、扩、铰、精铰φ20、φ50孔。
3 _! u. A9 Z) V/ b; e$ m/ l0 z工序三 粗、精铣φ50孔上端面
( h: W+ m4 R; H工序四 粗、精铣φ50、φ20孔下端面。 5 W. F/ U. E, |6 M2 N8 X* F. V: u
工序五 切断。 $ M6 N9 `8 G$ D; y3 h
工序六 钻φ4孔(装配时钻铰锥孔)。
3 c9 s" c/ d5 `工序七 钻一个φ4孔,攻M6螺纹。 & m# _% V7 H5 K6 u" h( H
工序八 铣47°凸台。
$ P1 S# W$ X9 e  g工序九 检查。
发表于 2008-7-7 12:56:32 | 显示全部楼层 来自: 中国广东广州
谢谢啊 不懂做
发表于 2008-7-10 14:09:49 | 显示全部楼层 来自: 中国江苏南通
呵呵,对工艺不熟悉!!
发表于 2008-12-17 21:17:23 | 显示全部楼层 来自: 中国安徽合肥
正需要这个,多谢,参考下
发表于 2008-12-17 22:31:41 | 显示全部楼层 来自: 中国上海
谢谢楼主的分享!
发表于 2008-12-24 14:00:24 | 显示全部楼层 来自: 中国四川攀枝花

有没有钻下面直径10的孔的夹具图啊?

主要钻下面那个直的10的孔的夹具图
$ h3 |/ {  m+ Q谢谢!
- M0 c& L7 k' L7 ^( O哪个朋友有,就发下嘛哈!谢谢了!* Y  j' @- |% Z% `
邮箱:luojun200512@163.com
发表于 2008-12-24 15:08:17 | 显示全部楼层 来自: 中国贵州贵阳
对工艺不熟习,学习学习
发表于 2008-12-24 15:26:20 | 显示全部楼层 来自: 中国上海
专业知识,学习了
发表于 2008-12-25 10:20:45 | 显示全部楼层 来自: 中国上海
学习了,谢谢楼主
发表于 2009-6-3 09:16:14 | 显示全部楼层 来自: 中国江西吉安
谢了.很有用
发表于 2009-6-5 07:34:40 | 显示全部楼层 来自: 中国黑龙江哈尔滨
工序五可用钻扩铰,不用拉削
发表于 2009-12-11 14:38:57 | 显示全部楼层 来自: 中国安徽合肥
有没有朋友能把钻扩铰孔Φ10H7孔的夹具设计发给我呀 4 ^/ z" w0 ]0 F% E  }. ^5 q3 ?
我的邮箱是panyun10086@163.com 谢谢啦!!!
发表回复
您需要登录后才可以回帖 登录 | 注册

本版积分规则

Licensed Copyright © 2016-2020 http://www.3dportal.cn/ All Rights Reserved 京 ICP备13008828号

小黑屋|手机版|Archiver|三维网 ( 京ICP备2023026364号-1 )

快速回复 返回顶部 返回列表