QQ登录

只需一步,快速开始

登录 | 注册 | 找回密码

三维网

 找回密码
 注册

QQ登录

只需一步,快速开始

展开

通知     

全站
2天前
查看: 1621|回复: 6
收起左侧

[已解决] 高手来啊~尺寸标注问题~

 关闭 [复制链接]
发表于 2007-12-5 09:07:02 | 显示全部楼层 |阅读模式 来自: 中国湖南怀化

马上注册,结识高手,享用更多资源,轻松玩转三维网社区。

您需要 登录 才可以下载或查看,没有帐号?注册

x
我标个圆的直径是%%C50,一条直线长是100。8 ~8 ^* E7 ~8 ?8 B7 K/ j# ^! N. _
通过比例放大一倍尺寸,直线的尺寸跟着改成200了,但是圆的直径还是∮50。
6 C$ R" i! g/ T; ?2 L3 ?- ~如果想让他们同时改,直径该怎么标注?
6 F( I; d1 B0 `3 s" i  b6 Z7 Q# E! s! @3 N' K" J" Z5 R
[ 本帖最后由 duduvs 于 2007-12-5 09:43 编辑 ]
头像被屏蔽
发表于 2007-12-5 09:16:54 | 显示全部楼层 来自: 中国浙江宁波
提示: 作者被禁止或删除 内容自动屏蔽
 楼主| 发表于 2007-12-5 09:31:40 | 显示全部楼层 来自: 中国湖南怀化
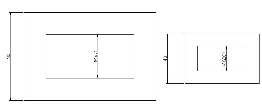
不行啊~我是在非圆视图中标圆的尺寸。。0 R  g% u+ J! P6 V5 Z3 g
《》()[]{}都试了没有用。。。
6 I0 Q6 ?  i; X$ O图如下
. U5 O4 t( ^; w前面那个是比例因子为2情况,那个40变了,20没变,怎么让它也跟着变啊
11.JPG
头像被屏蔽
发表于 2007-12-5 09:36:50 | 显示全部楼层 来自: 中国浙江宁波
提示: 作者被禁止或删除 内容自动屏蔽
 楼主| 发表于 2007-12-5 09:43:41 | 显示全部楼层 来自: 中国湖南怀化

回复 4# 的帖子

谢谢老大~会了。~~~
发表于 2007-12-7 13:51:34 | 显示全部楼层 来自: 中国湖南常德
楼主的直径是不是在文字替代里做了改动
发表于 2007-12-7 17:00:26 | 显示全部楼层 来自: 中国山东淄博
你不要手动输入,就会变了
发表回复
您需要登录后才可以回帖 登录 | 注册

本版积分规则

Licensed Copyright © 2016-2020 http://www.3dportal.cn/ All Rights Reserved 京 ICP备13008828号

小黑屋|手机版|Archiver|三维网 ( 京ICP备2023026364号-1 )

快速回复 返回顶部 返回列表