QQ登录

只需一步,快速开始

登录 | 注册 | 找回密码

三维网

 找回密码
 注册

QQ登录

只需一步,快速开始

展开

通知     

全站
4天前
查看: 2066|回复: 7
收起左侧

[求助] 稀油站

[复制链接]
发表于 2007-12-6 14:38:34 | 显示全部楼层 |阅读模式 来自: 中国江苏无锡

马上注册,结识高手,享用更多资源,轻松玩转三维网社区。

您需要 登录 才可以下载或查看,没有帐号?注册

x
现有2套稀油站,想请厂家帮忙制作5 \2 r2 N7 B/ u
有兴趣的厂家可以于12月10日前将报价资料发邮件至JSB@HONGFENGQIDONG.COM
+ z6 V% I* v6 j9 T, _! h  r7 `1 k% f注:邮件里要留电话联系方式
% f; n- h/ h& W: S, L3 Z
# u, [" ]: T4 `) V/ J  h不知道这违反不违反论坛守则 ,如果违反的话,我马上删了
. c# D; Z5 f" y7 A" `" g5 P' G1 r2 N: Q- l2 e
为预防万一,就请大家谈谈稀油站吧- ]9 i. m0 q8 @' N6 d4 e
: t9 t% H; V$ y) U
[ 本帖最后由 qskgangsi 于 2007-12-6 14:40 编辑 ]

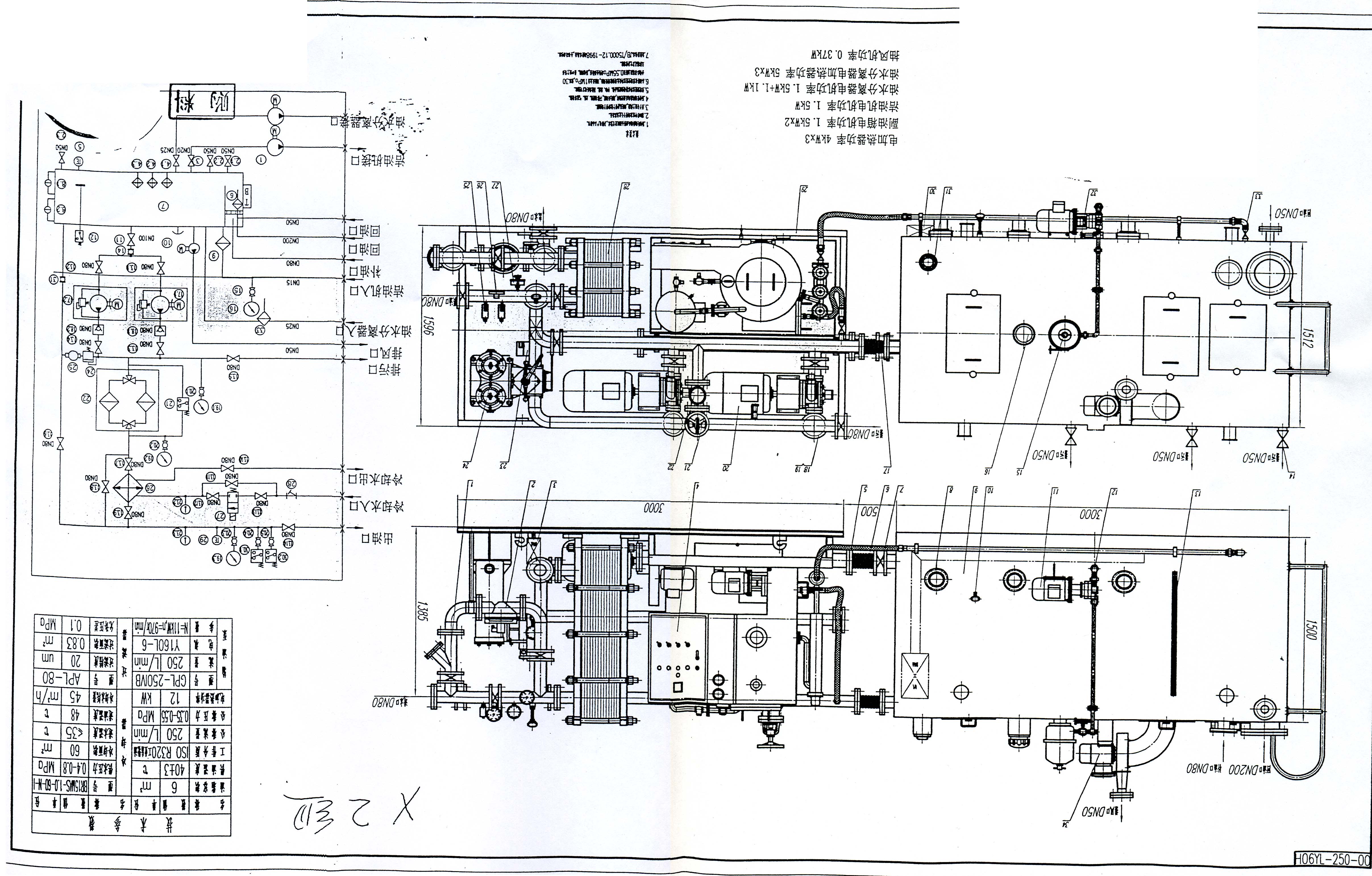
布置图

布置图

布置图

布置图

1-7_4.JPEG

1.74 MB, 下载次数: 30

技术要求

1-7_5.JPEG

1.6 MB, 下载次数: 21

技术要求

发表于 2007-12-6 18:11:09 | 显示全部楼层 来自: 中国广东东莞
稀油站也就是润滑油站了,那得看你要求的流量.压力.油箱容量,使用的场所等情况拉,说具体一点拉
发表于 2009-1-15 10:04:31 | 显示全部楼层 来自: 中国山东青岛

新来的!

这位大哥有更多的嘛!
发表于 2009-1-15 10:05:30 | 显示全部楼层 来自: 中国山东青岛

是我想要的!!

再多点就好了!我要自己做!
发表于 2009-1-17 20:07:18 | 显示全部楼层 来自: 中国江苏常州
我们公司做的!呵呵
发表于 2009-1-18 22:23:52 | 显示全部楼层 来自: 中国河北唐山
做润滑的厂家很多啊,江苏启东遍地都是,启东润滑、启东江海都很不错,可以去网上查一查
发表于 2009-1-19 09:34:03 | 显示全部楼层 来自: 中国上海
南通南方,启东南方,上海其胜威纳,川润股份都做的!!!!!!!!!
发表于 2009-1-20 16:53:13 | 显示全部楼层 来自: 中国上海
稀油站国内的厂家都可以做,系统的元件国产件既可以,要求不用太高。关键是给油部位要有窥油孔
发表回复
您需要登录后才可以回帖 登录 | 注册

本版积分规则

Licensed Copyright © 2016-2020 http://www.3dportal.cn/ All Rights Reserved 京 ICP备13008828号

小黑屋|手机版|Archiver|三维网 ( 京ICP备2023026364号-1 )

快速回复 返回顶部 返回列表