QQ登录

只需一步,快速开始

登录 | 注册 | 找回密码

三维网

 找回密码
 注册

QQ登录

只需一步,快速开始

展开

通知     

查看: 2688|回复: 10
收起左侧

[已解决] 作业

[复制链接]
发表于 2007-12-8 21:49:05 | 显示全部楼层 |阅读模式 来自: 中国浙江宁波

马上注册,结识高手,享用更多资源,轻松玩转三维网社区。

您需要 登录 才可以下载或查看,没有帐号?注册

x
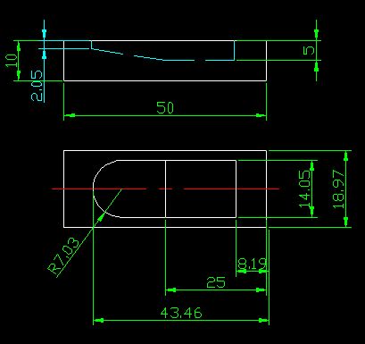
这样一个图形,我用PROE做出来,但用SOLIDWORDS怎么也做不出来,请大家做一下,指点给我,最好能附图。我的邮箱zdj0988@163.com
zuoye.JPG
发表于 2007-12-8 22:43:49 | 显示全部楼层 来自: 中国上海
建立一基准面,拉伸切除时到指定的面
发表于 2007-12-9 08:12:16 | 显示全部楼层 来自: 中国山西太原
算出参考面角度就好了.
8 |# C! w1 U1 e8 n3 @7 ~! c; n没画尺寸参考看看3 L/ a+ v& S, X3 A
& D, I( F, T' N" w# v
[ 本帖最后由 抬头见喜 于 2007-12-9 08:14 编辑 ]
ss.jpg
ss.jpg
发表于 2007-12-9 12:58:46 | 显示全部楼层 来自: 中国浙江杭州
很基础的零件呀,看下:5 e# A( b; j9 X
130.gif , d! i2 K; T" F* X4 e, e! d

* H$ R; W6 [. j! A4 O; r 130.gif
9 g! f9 z; f* V1 P( k. q" _+ v8 u" K" t- Q$ Z/ o
SW2007文件: Part1.rar (39.32 KB, 下载次数: 7)
头像被屏蔽
发表于 2007-12-9 13:04:07 | 显示全部楼层 来自: 中国陕西西安
提示: 作者被禁止或删除 内容自动屏蔽
 楼主| 发表于 2007-12-9 13:15:11 | 显示全部楼层 来自: 中国浙江宁波

另外的方法

先做好框架,然后把中间的部分做成曲面,再转为实体,最后用多实体特征。
零件1.jpg
 楼主| 发表于 2007-12-9 13:20:50 | 显示全部楼层 来自: 中国浙江宁波

一直很努力

你那个图是怎么挂上去的。我也想学一下,还有动画的效果,转成什么文件的?
发表于 2007-12-9 13:35:13 | 显示全部楼层 来自: 中国浙江杭州

回复 7# 的帖子

用GIF小软件录出来的,去这里下载:' Q) W3 i8 t. x! J7 g! r
http://www.3dportal.cn/discuz/vi ... 2&highlight=gif
发表于 2007-12-10 12:39:02 | 显示全部楼层 来自: 中国江苏常州
拉伸切除,圆头倒圆角就可以了——用“完整圆角”。
发表于 2007-12-10 13:10:27 | 显示全部楼层 来自: 中国广东惠州
呵呵,还是hahap 的简单实用。
 楼主| 发表于 2007-12-10 20:44:28 | 显示全部楼层 来自: 中国浙江宁波

俺学会了

:lol: 俺学了一手,谢谢大哥,在下有礼了。
3.gif
发表回复
您需要登录后才可以回帖 登录 | 注册

本版积分规则


Licensed Copyright © 2016-2020 http://www.3dportal.cn/ All Rights Reserved 京 ICP备13008828号

小黑屋|手机版|Archiver|三维网 ( 京ICP备2023026364号-1 )

快速回复 返回顶部 返回列表