QQ登录

只需一步,快速开始

登录 | 注册 | 找回密码

三维网

 找回密码
 注册

QQ登录

只需一步,快速开始

展开

通知     

全站
10天前
查看: 2874|回复: 8
收起左侧

[讨论结束] 求购图中液压油缸密封件

[复制链接]
发表于 2007-12-13 21:53:40 | 显示全部楼层 |阅读模式 来自: 中国湖南邵阳

马上注册,结识高手,享用更多资源,轻松玩转三维网社区。

您需要 登录 才可以下载或查看,没有帐号?注册

x
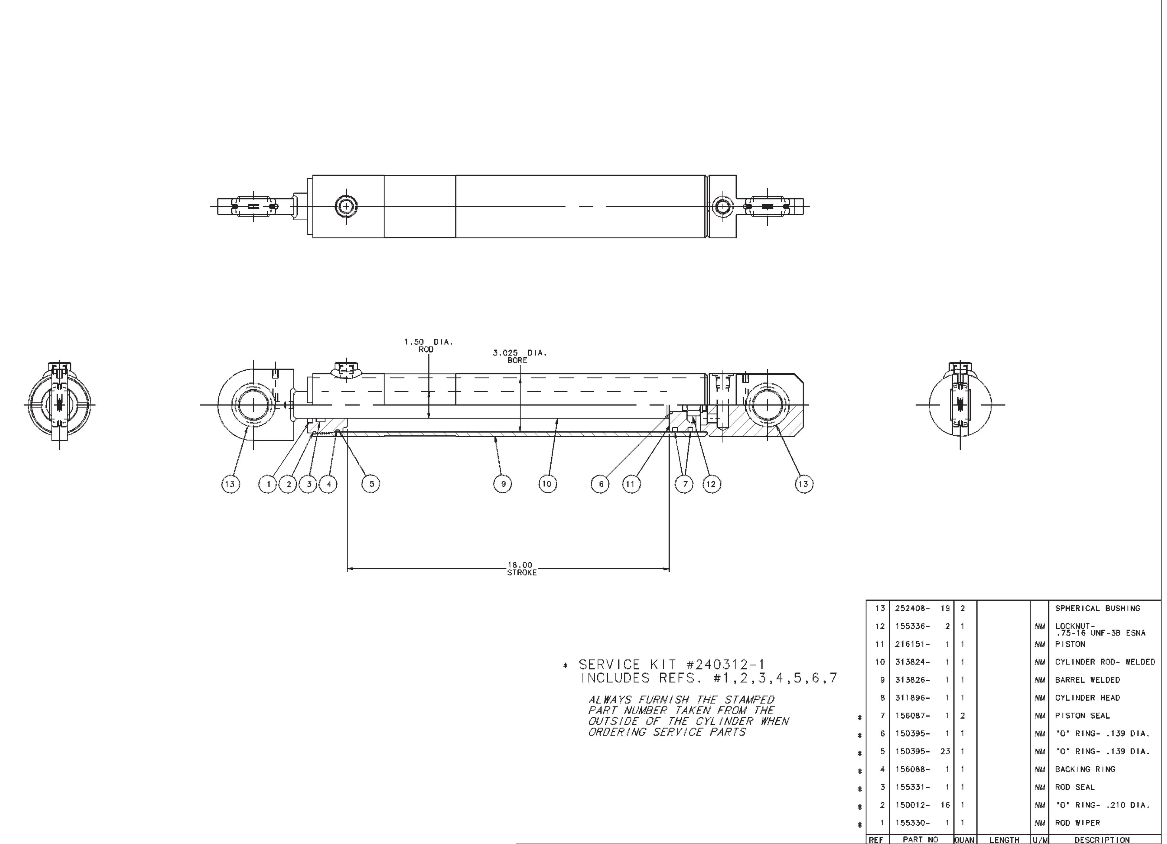
本人现在使用设备中的相当部分油缸,油封已经破损漏油,但本人找了好几个地方都没有找到。希望大虾们应助。谢谢!最好在中南地区。图中1,2,3,4,5,6,7均是本人要选购的。
1 r+ c0 Z3 o' v5 ^. @如有知情者请回帖或与本人联系,本人email:gdliangdemin@163.com,qq66876288
yougang.JPG
发表于 2007-12-25 10:27:05 | 显示全部楼层 来自: 中国河南濮阳
找厂家是最好的,至少可以得到参考的信息。
发表于 2007-12-25 12:37:58 | 显示全部楼层 来自: 中国江苏无锡
楼主可以直接跟厂家订货的呀!那根PART NO就是密封件的订货编号也可以说是服务编号!油缸是老外的当时过来的时候老外肯定有随缸的密封备件!你应该找找!其实在国内应该有好多厂多可以搞定的!大点的厂密封都自己换的!
发表于 2007-12-25 13:25:50 | 显示全部楼层 来自: 中国江苏常州
可以联系SKF代理商
0 e3 V% R5 Y. V! z7 O+ ?. whttp://www.skf.com/portal/skf/ho ... gue=1&newlink=7
 楼主| 发表于 2008-1-5 09:16:39 | 显示全部楼层 来自: 中国湖南长沙

回复 3# 的帖子

我们这些配件编号的确是可以找到厂家买到的,但是中国的代理商把价格抬得让人瞠目结舌,所以,我们只好自己进行维修,因此需要在国内寻找同样的东西自己搞定。
 楼主| 发表于 2008-1-5 09:19:40 | 显示全部楼层 来自: 中国湖南长沙

回复 4# 的帖子

我去了4楼说的网站,好像过于简单了些。没有图示,只有简单的英文说明,用处不大哦。
头像被屏蔽
发表于 2008-1-5 18:43:11 | 显示全部楼层 来自: 中国天津
提示: 作者被禁止或删除 内容自动屏蔽
发表于 2008-1-5 19:02:30 | 显示全部楼层 来自: 中国河南安阳
原帖由 qixiangzhi 于 2008-1-5 18:43 发表 http://www.3dportal.cn/discuz/images/common/back.gif, s( T6 b: f0 A0 T" D8 Y, \
你可以把活塞和杆密封的沟槽尺寸量一下,自己去选一些可替代的密封不就行了吗
7 I4 j# M* H, j! K9 M4 [) Y
, N: _# y  A( t* l  o4 K& A
这是一个很好的办法,根据油封槽的尺寸可以自己重新选择,或让密封件的厂商帮你选择。
 楼主| 发表于 2008-1-11 10:24:46 | 显示全部楼层 来自: 中国湖南长沙
谢谢大家的应助!本人已经找到了一个相似的配件,油封开始用选用一个38X50X9的无法安装,而后来改用40X50X10的可以安装,目前使用了2天,还没有方发现问题。沟槽尺寸在里面不是很好量,杆的直径是英制的1.5英寸的,即38.1mm。
发表回复
您需要登录后才可以回帖 登录 | 注册

本版积分规则


Licensed Copyright © 2016-2020 http://www.3dportal.cn/ All Rights Reserved 京 ICP备13008828号

小黑屋|手机版|Archiver|三维网 ( 京ICP备2023026364号-1 )

快速回复 返回顶部 返回列表