QQ登录

只需一步,快速开始

登录 | 注册 | 找回密码

三维网

 找回密码
 注册

QQ登录

只需一步,快速开始

展开

通知     

查看: 2239|回复: 10
收起左侧

[已解决] 求购图中液压油缸密封件

 关闭 [复制链接]
发表于 2007-12-13 21:54:54 | 显示全部楼层 |阅读模式 来自: 中国湖南邵阳

马上注册,结识高手,享用更多资源,轻松玩转三维网社区。

您需要 登录 才可以下载或查看,没有帐号?注册

x
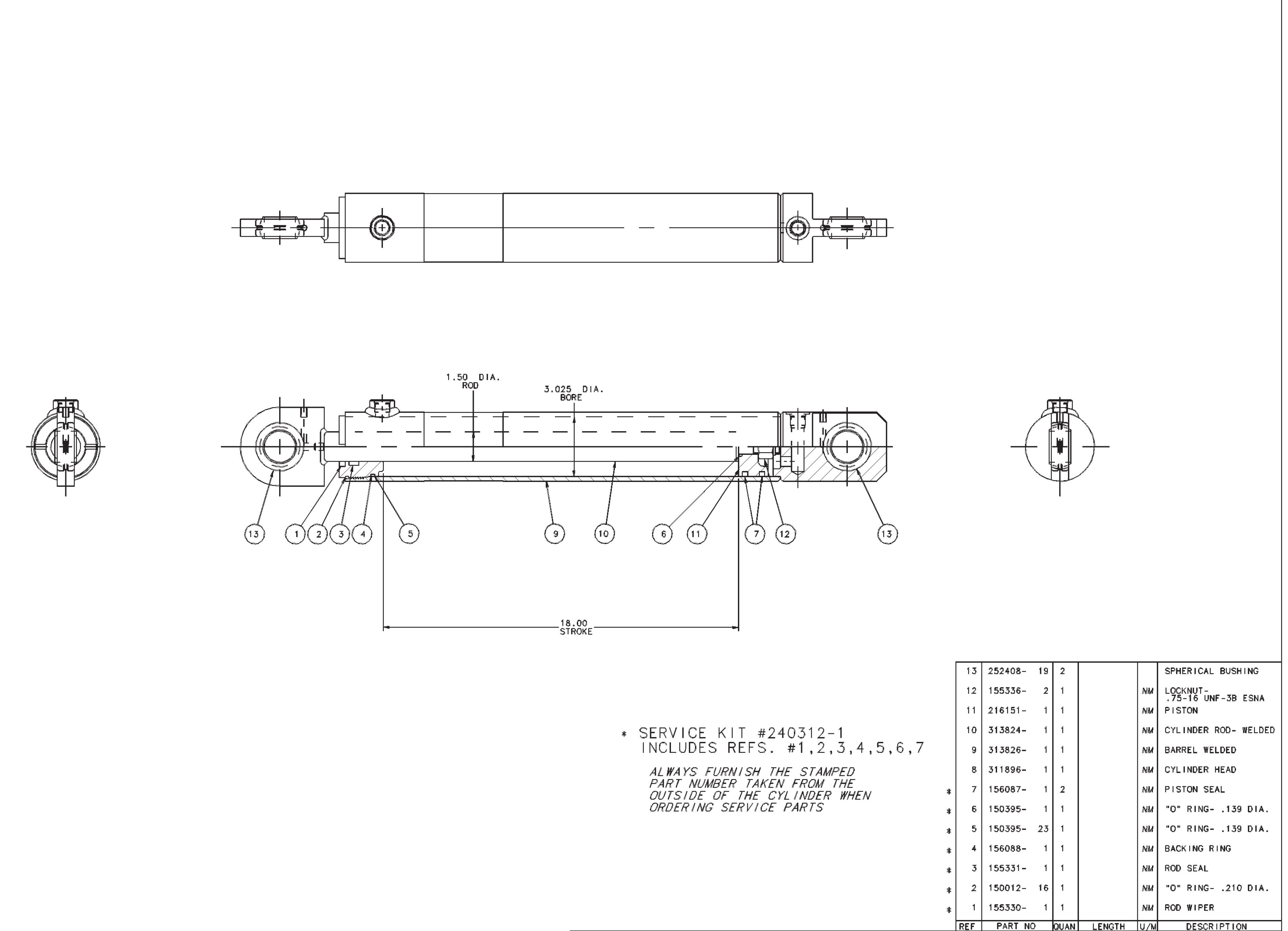
本人现在使用设备中的相当部分油缸,油封已经破损漏油,但本人找了好几个地方都没有找到。希望大虾们应助。谢谢!最好在中南地区。图中1,2,3,4,5,6,7均是本人要选购的。
5 X+ D& ^6 e0 {- B! x4 @如有知情者请回帖或与本人联系,本人email:gdliangdemin@163.com,qq66876288
yougang.JPG
发表于 2007-12-13 22:11:36 | 显示全部楼层 来自: 中国福建三明
你可以拆开油缸测绘尺寸,查对标准和相关样本,找出型号在采购呀
 楼主| 发表于 2007-12-13 23:04:05 | 显示全部楼层 来自: 中国湖南邵阳
原帖由 zhengmzh888 于 2007-12-13 22:11 发表 http://www.3dportal.cn/discuz/images/common/back.gif3 U- B- p& m# Z6 j  x4 F
你可以拆开油缸测绘尺寸,查对标准和相关样本,找出型号在采购呀

; X$ B2 p2 L( i- e4 @: J4 q# f$ b$ M& L; R* X5 |9 ]3 P
请问如何查对标准,又如何找到相关型号呢?本人还没有从事过这方面的工作,以前都是别人帮我直接找到油缸总成,后来发现换总成成本太高了,就改成自己维修,但是经验缺乏,请大虾指点。
发表于 2007-12-14 08:47:39 | 显示全部楼层 来自: 中国
原帖由 gdliangdemin 于 2007-12-13 23:04 发表 http://www.3dportal.cn/discuz/images/common/back.gif
7 `- k* @9 R, X; ~/ Q( w2 k+ I7 j; M2 [( G1 S. C

% O  {  u: @$ @$ @% s0 t7 ]请问如何查对标准,又如何找到相关型号呢?本人还没有从事过这方面的工作,以前都是别人帮我直接找到油缸总成,后来发现换总成成本太高了,就改成自己维修,但是经验缺乏,请大虾指点。

4 R. T& o0 c4 m% {8 o; F3 n1 p" z. z% o
有没有人工的,人工也是成本之一!出多少钱你想???
 楼主| 发表于 2007-12-14 13:02:25 | 显示全部楼层 来自: 中国湖南邵阳
我计划自己拆,我已经拆了一个了,所以人工成本可以说是0,不知道楼上说的人工成本还有哪些?我出的钱也就是计划出材料配件的钱。
发表于 2007-12-14 15:11:51 | 显示全部楼层 来自: 中国河北唐山
楼主可以提供密封的图片吗,便于大家帮助。
发表于 2007-12-14 15:57:32 | 显示全部楼层 来自: 中国四川成都
WWW.sealtech.net,上面有各种液压气动密封圈总汇
发表于 2007-12-14 21:55:15 | 显示全部楼层 来自: 中国广东东莞
你可以找一下艾志公司,他们在密封行业还不错的哟
发表于 2007-12-15 09:42:55 | 显示全部楼层 来自: 中国河北唐山
其中的几个O型圈楼主可以自己测量后订购应该不难,其他几个防尘封及活塞用密封,楼主可以通过密封厂家的样本找一下,如洪格尔,霞板等进行咨询。
发表于 2007-12-16 20:07:48 | 显示全部楼层 来自: 中国上海

回复 1# 的帖子

鼓励你大胆拆开,做工程一定要敢于实践,找一个密封件样本和设计手册,上面读有沟槽安装尺寸,对比一下.
 楼主| 发表于 2007-12-23 23:58:48 | 显示全部楼层 来自: 中国湖南长沙
常感谢大家的帮助,我已经拆开,而且也在长沙找到型号,非常感谢!
发表回复
您需要登录后才可以回帖 登录 | 注册

本版积分规则


Licensed Copyright © 2016-2020 http://www.3dportal.cn/ All Rights Reserved 京 ICP备13008828号

小黑屋|手机版|Archiver|三维网 ( 京ICP备2023026364号-1 )

快速回复 返回顶部 返回列表