QQ登录

只需一步,快速开始

登录 | 注册 | 找回密码

三维网

 找回密码
 注册

QQ登录

只需一步,快速开始

展开

通知     

全站
10天前
查看: 2231|回复: 12
收起左侧

[求助] 吸油问题?

[复制链接]
发表于 2007-12-17 18:31:09 | 显示全部楼层 |阅读模式 来自: 新加坡

马上注册,结识高手,享用更多资源,轻松玩转三维网社区。

您需要 登录 才可以下载或查看,没有帐号?注册

x
大家帮我看看,是不是1.1米的距离太高?5 Y% Y7 B& a/ F6 x
见下图,1 Y8 X" u$ c# B) b# E4 m( _; ~- X
买了一个原装 的泵,但因为单向阀阀卡了,所以泵爆了。
1 Y5 C7 `- {9 _# R: Y7 r5 f& r8 G- Y后来买一个普通的双牙泵,装上。
( T- I1 {/ E8 |6 S% x5 ^6 n今天上午把一切联结好后,泵比较好的工作,推动旋转马达旋转。4 G! ]7 u8 y- w8 y- W
下午的时候,发现泵的出油软管1和2基本没有什么震动,而且马达也不能工作。* _0 ~! a* k1 p% w2 A6 s/ j
基本判断泵出油口只有很少的油出。
. H% E+ v! |' v9 b8 V; H停车后,用手去捏吸油软管(没有用透明的PVC管,用的是发动机的耐高温,奈压力10BAR的吸水管),,软软的,感觉软水管里面没有油。
. z6 y5 N/ f2 ^4 N' {; [& }那么它是因为我的牙泵的吸油口太高呢,,而造成吸油不足?
3 K, A  h) u+ u6 g9 w6 C& E上午的时候,是不是因为是新的泵,所以没有什么影响。磨合了一会之后, 牙泵的自吸能力就相对减弱呢?% J* l  |3 s5 r" o! D0 F

2 t' {* T" i! S# M& h* `; P- }假如牙泵在这种吸油不足的情况下工作,那么其出油是必定受影响的。
9 d: w& z% A( |这样工作不超过2个小时,对泵的磨损很厉害吗?' E- Q; H' q! u% B  X

+ n, V! @% }4 D7 T6 S5 i* K7 ?# j9 _

  E2 ]7 ]0 j0 n
, ~/ W& o, k2 s
$ l) ]' n  e+ i: D3 ]5 d3 o& Q
& j! b- A$ ~0 g& b& ~
* _" ^# S& w' ^5 A& C3 F- W------------------------------------------------------------------------------------
7 O0 L/ t/ q1 N+ `5 N5 c9 o% [+ N谢谢大家的帮助。5 Q' K5 `9 F  j9 m- i
现在已经发现问题了,油的确没有吸上来,这个是因为我的泵没有转。
3 m" ]4 O  K+ D. P5 a5 P- y泵的轴断掉了,所以,发动机虽然在转,但泵没有在转。
' G6 \/ e. [$ C* S-----------发现这个是因为我用手感觉泵,其他泵都在发热,而就它一点都不热,所以拆开发现轴断掉了。

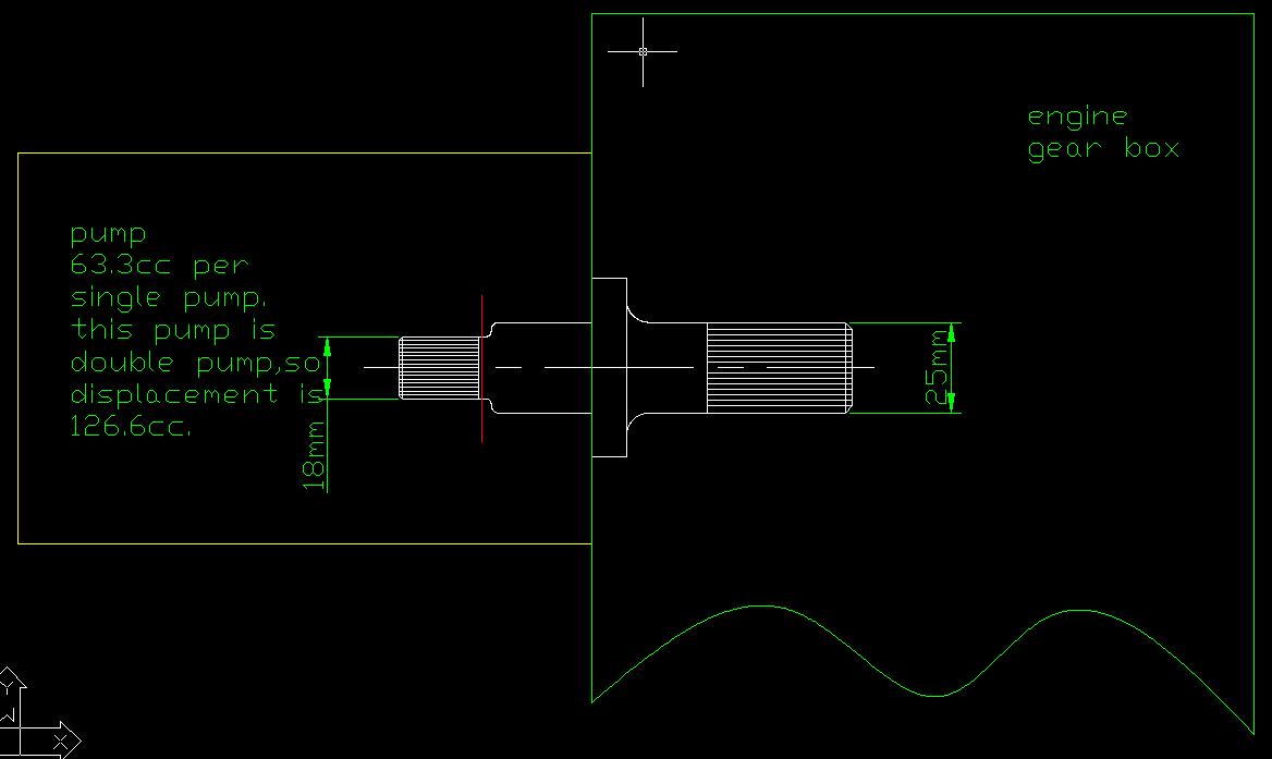
. c, e6 [. [3 [& X% x轴结构如下图。。。。
. e0 |( x! c  b: S这个轴一端插到泵里面带动齿轮旋转,另一端插入齿轮箱,由齿轮带动轴。" C- E4 _! Z6 X% G4 z
断裂的地方在我画红线的位置。裂口很平整,就像被车床车过一样。。这个可能是因为后来我还启动过几次发动机,断裂轴断面相会磨。
& c+ I, z, ^( ]# [& v3 d9 F% [. a( k% E: x1 u5 M) G: F

; E" ?8 r: v8 B-------------------------------------------------------------* H8 h5 O  H9 q! q: f
新的问题又出来了。轴的断裂是因为轴太细只有18,而它带动的泵是126cc的。如果我的发动机是1800转,流量为226升,压力如果是200BAR,转矩约为360NM.7 ~$ g* o! k4 z
这样的话,轴实在太脆弱了。
3 J% b) ?! _" o+ T, J% s" V---
; ^$ I3 F& @' y4 }, r/ H用这个轴式因为,以前换了一次泵,泵总共为80cc。后来再换泵,还是利用了这根轴。2 m: J/ `& T( N* D1 U) Y
--------
( t) p2 y0 d" H3 Q8 Z! q! ]# R6 Z6 j* v9 M7 r/ G% |, W
解决方法:2 L# D( l: G' J# m+ j/ k- K6 x
1,
轴,,增大18,达到25左右。。问了我们的商家,,答案是不行。更换则是把轴和泵的齿轮连成一体。而轴和齿轮箱相连的这端是14个牙的花建,而我们的齿轮箱是15个牙的。。这样我还得去改齿轮箱。
) u0 Z1 \, s0 y! B& Q4 z3 V2。改用其它材料来做轴,并且的强度和硬度上面提高要求。在工作上,尽可能降低压力。
/ P. o! A5 z- [: @用这种方法,大家建议使用什么材料?材料的硬度达到什么要求?% s/ N; G# R4 C4 }
我看了一下,如果用弹簧钢来做,可以吗?有人有这样使用吗?

' g' z5 w# L$ ~# T, K* ^3 q* D& z+ ?8 l) r- m
[ 本帖最后由 yplw 于 2007-12-19 19:11 编辑 ]
IMG_3472.jpg
cl32-g.JPG
 楼主| 发表于 2007-12-17 18:40:14 | 显示全部楼层 来自: 新加坡
!!!!!!!!!!!1
IMG_3472.jpg
发表于 2007-12-18 08:45:02 | 显示全部楼层 来自: 中国江苏无锡
应该是高度太高了吧, 我大概了解柱塞泵, 叶片泵的吸油高度不高于500mm
; I8 Y& {1 m' w- ^你现在是1.4米, ...   能不能把泵站的高度降低一点??
  V8 v  L$ P4 F1 A6 A; z" V8 I原则上说,泵的吸油高度越低, 那泵的效率就发挥的越好,寿命也越长.
发表于 2007-12-18 08:52:24 | 显示全部楼层 来自: 美国
绝对高了,0.5米以下是必须的.用伯努利方程推倒和经验都要求0.5一下.
发表于 2007-12-18 16:32:07 | 显示全部楼层 来自: 中国浙江台州
吸油高度有点高,你说牙泵就是指的齿轮泵吗??
$ ]2 T( c/ A( F% J) x2 n吸油口你描述的软软的管是什么程度的软,太软的话,管子会自闭的,吸油过程中管子自己就扁了,将无法吸油.
发表于 2007-12-18 20:56:54 | 显示全部楼层 来自: 中国河北邢台
绝对高了,0.5米以下是必须的.用伯努利方程推倒和经验都要求0.5一下.7 s. N7 `0 u- p; s1 s5 d
同意以上观点,可以把泵放低一点试一下,泵装得太高,会使空气从油液中分立,甚至使油液气化自然吸油能力就差了。
发表于 2007-12-18 21:27:13 | 显示全部楼层 来自: 中国北京
柱塞泵吸油高度样本上推荐好像都是500以下的,1.4M肯定高了,对泵不利,一旦吸空,泵很容易坏的,而且5楼说的问题也是必须考虑的!
 楼主| 发表于 2007-12-19 18:28:57 | 显示全部楼层 来自: 新加坡
原帖由 DDR0001 于 2007-12-18 08:45 发表 http://www.3dportal.cn/discuz/images/common/back.gif
4 l* i4 r- S' A7 I! n应该是高度太高了吧, 我大概了解柱塞泵, 叶片泵的吸油高度不高于500mm# ~4 E' A3 z7 `1 W/ G2 t7 L
你现在是1.4米, ...   能不能把泵站的高度降低一点??! ~  k% k( U. g2 s
原则上说,泵的吸油高度越低, 那泵的效率就发挥的越好,寿命也越长.
0 o# m  K% s/ R/ Z' p' y( x
# @2 a; X! A) d6 M- O3 O

' ^( A* e1 t* B: S/ j--------------------! {0 b, Z: n$ R/ o+ p  A
这个是一个履带吊车的设计,,原装的就是这个样子。我这次只是把泵转了个角度,所以比以前多高了10cm左右吧。
8 W/ n' e2 g+ E: q5 J, [后来我的新泵刚开始工作的时候,也能吸油上来。
( A0 Y8 Y+ |# {; m  a
! H+ L4 m" |6 }2 [8 z7 O% H/ F  Z原则上,我觉得这个高度也太高了,但是作为这种行走机械,它的设计就是要求紧凑。
/ S8 l2 g4 d, n4 g
 楼主| 发表于 2007-12-19 18:30:19 | 显示全部楼层 来自: 新加坡
原帖由 jf_241 于 2007-12-18 08:52 发表 http://www.3dportal.cn/discuz/images/common/back.gif4 a! }2 w# V% N1 ~3 o) y. _
绝对高了,0.5米以下是必须的.用伯努利方程推倒和经验都要求0.5一下.
# x: \% R( ~& \( Z5 k3 l

) A: }9 d( C& L6 d. L----------
. _3 N" H& ?! T9 n6 t我也觉得高了。。呵呵,但是别人设计的高度应该也有1米多点吧。。。
 楼主| 发表于 2007-12-19 18:33:11 | 显示全部楼层 来自: 新加坡
原帖由 yy21sj 于 2007-12-18 16:32 发表 http://www.3dportal.cn/discuz/images/common/back.gif
1 n& }% p6 Q/ L4 O% Q吸油高度有点高,你说牙泵就是指的齿轮泵吗??
; G- [; Y1 X; z3 K( `吸油口你描述的软软的管是什么程度的软,太软的话,管子会自闭的,吸油过程中管子自己就扁了,将无法吸油.
% q% q2 E9 s' i: |) Z/ k( _% e
0 l$ k, R6 v+ y: M- z8 G2 n
; _5 b, e/ I8 a( A0 X# \0 ^: M
--------------1 B: ~1 {  U+ c0 R; ^( d: ~( w
恩,是齿轮泵。。。
+ Y% K) @$ `1 @' C3 `软管是发动机的而热的橡胶管。它可以奈150psi的压力。
$ J8 Q0 ]) Y% y3 W# V4 q4 e8 s* V它在正常工作过程中没有匾,。
 楼主| 发表于 2007-12-19 18:35:55 | 显示全部楼层 来自: 新加坡
原帖由 gaolijun2007 于 2007-12-18 20:56 发表 http://www.3dportal.cn/discuz/images/common/back.gif( ?+ F+ v' w$ ]+ H
绝对高了,0.5米以下是必须的.用伯努利方程推倒和经验都要求0.5一下.
7 W) k8 G! a+ [' I7 J同意以上观点,可以把泵放低一点试一下,泵装得太高,会使空气从油液中分立,甚至使油液气化自然吸油能力就差了。

$ b% o6 E" `+ |+ N# ^  n! y* }2 q* v, ]2 k4 a! t8 a7 G
---------------------
/ o6 x& ~( O' E( K$ N* ^1 f没有办法把泵放低。。。。。。。+ Q  I) d. {$ V. u5 i3 T1 B: g' z8 r
那样的确会降低吸油能力。4 B  U# U5 D+ F' w
不过这个可能是日本人在紧凑等各方面上采取折中设计的结果。

评分

参与人数 1三维币 +3 收起 理由
晨砂 + 3 积极参与主题!

查看全部评分

发表于 2007-12-22 09:34:15 | 显示全部楼层 来自: 中国河南濮阳
为什么不做严密的试验?# Y: K5 H( {/ G* N4 a+ R1 H4 p2 o
直接使用的思路不对头啊。
发表于 2007-12-23 19:45:53 | 显示全部楼层 来自: 中国河北秦皇岛
什么泵都不能在油箱以上那么高 油泵是要自吸的
发表回复
您需要登录后才可以回帖 登录 | 注册

本版积分规则


Licensed Copyright © 2016-2020 http://www.3dportal.cn/ All Rights Reserved 京 ICP备13008828号

小黑屋|手机版|Archiver|三维网 ( 京ICP备2023026364号-1 )

快速回复 返回顶部 返回列表