QQ登录

只需一步,快速开始

登录 | 注册 | 找回密码

三维网

 找回密码
 注册

QQ登录

只需一步,快速开始

展开

通知     

查看: 3805|回复: 13
收起左侧

[已解决] 如何提高轴的强度。

 关闭 [复制链接]
发表于 2007-12-19 18:48:23 | 显示全部楼层 |阅读模式 来自: 新加坡

马上注册,结识高手,享用更多资源,轻松玩转三维网社区。

您需要 登录 才可以下载或查看,没有帐号?注册

x
可参看http://www.3dportal.cn/discuz/viewthread.php?tid=416572&extra=page%3D1
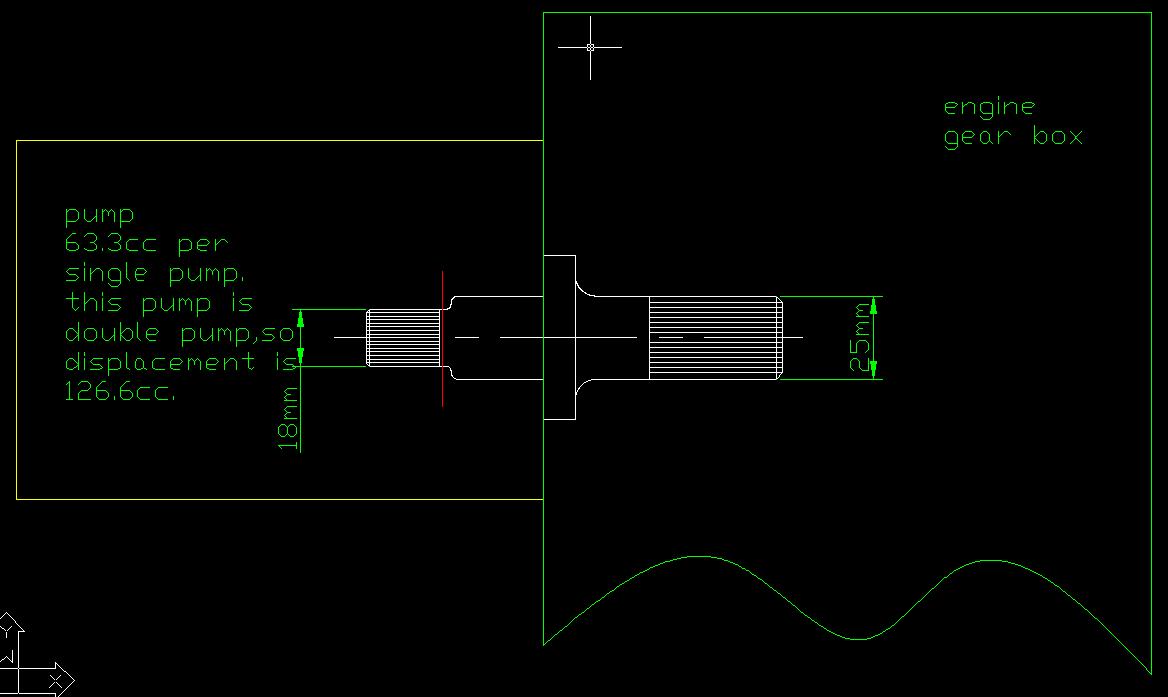
& g8 p4 K# r/ O3 x2 v: B: }' `  T& N下图。
0 d3 N$ p2 g5 Y$ J我的发动机带动油泵,通过一根轴。
  P$ m2 ~" x6 g; H. K# d, X轴的两端都是花键联结。
' i, [. z1 x+ k; k7 Z3 K. _( n( ^( M$ o3 h) ^, [5 m
由于泵升级,但是轴依然没有改变。( v: \4 |2 s0 T0 H
所以升级后的泵由于流量加大,所以在相同转速下,轴承受的扭矩就加大了。
1 H0 N& b* l/ I; {' Q1 e0 J所以我的轴的红线的位置断裂。
% j' v" X: D& b! B6 w) H' B% W8 G
请教各位高手。我如果不改我泵和齿轮箱的结构,而是在轴的材料和热处理上作文章。
. w6 v. N/ \2 D4 Z" }那么,我用什么样的材料,并且进行怎么样的处理,使轴承受的强度可以大大的提高。& ]( c+ C$ s( {2 }3 F% B! ^

( o$ t/ M4 P+ m, W- v弹簧钢的疲劳强度和屈服强度都是很厉害的,,可以用它来做轴吗?
; g1 g1 Z4 X* D8 j6 k- a( f( O& B我听有人说4340材料
! M/ k7 t7 N  T. O这个应该是美国标准的,那么它对应的是中国的什么材料呢?性能是怎么样的呢?
( C" [7 ]$ c9 b+ e; t1 L& ~) e
; B4 q' v3 }1 o7 X8 B[ 本帖最后由 mideas 于 2007-12-23 12:12 编辑 ]
cl32-g.JPG
发表于 2007-12-20 08:00:30 | 显示全部楼层 来自: 中国山东济南
4340材料对应中国牌号40CrNi2Mo高强度钢!5 C( i3 K6 c: Z
弹簧钢虽然疲劳强度和屈服强度很厉害,但芯部硬度太高!
9 K8 b- g$ w4 ?+ \' r' t个人推荐:用38CrMnAl渗氮钢,表面渗氮处理,渗氮层0.7mm;表面硬度HRC60~65,我用过这种材料,最起码不会断裂!

评分

参与人数 1三维币 +2 收起 理由
zyxwq + 2 积极参与

查看全部评分

发表于 2007-12-20 08:05:30 | 显示全部楼层 来自: 中国江苏南京
原先轴的机械性能?) T0 Q$ O9 c# j# H& e
现在要求的机械性能?
  I4 d' l8 m9 x" W8 k& e. E9 N9 u你得告诉大家。
发表于 2007-12-20 15:36:14 | 显示全部楼层 来自: 中国江西宜春
是否可能考虑使用:42CrMu材料,热处理调质。
发表于 2007-12-20 19:47:24 | 显示全部楼层 来自: 中国湖北武汉
茄子是高手!" y( k8 q% H4 F, s2 ~, @: n) o
德国人的水泥泵车发动机和油泵连接轴就是用的38CrMnAl.其硬度在渗氮钢中最高.
5 x1 ]2 S( p# M3 ?机床主轴用此材料,如镗杆,轧辊磨主轴.
 楼主| 发表于 2007-12-20 20:36:57 | 显示全部楼层 来自: 新加坡
以前用的好像是4140,对应的国内是42CrMo
! g) F. F1 F5 J6 ?0 p) \' ^; Y,,18mm花键处好像没有经过任何处理。' q5 W# U, q/ T! X# q0 b
1 Z# ]. J) {9 d  e4 p( C( H
断裂是因为扭矩台大了,超过轴的极限。
* `; s2 d! K" W8 v& [* ^新轴要求承受扭矩应该在200NM以上些吧。。- |. S$ l+ T5 a! j5 k3 O2 |
反正它能承受的扭矩要求尽可能大吧。
 楼主| 发表于 2007-12-20 20:42:31 | 显示全部楼层 来自: 新加坡
原帖由 sxfqz 于 2007-12-20 08:00 发表 http://www.3dportal.cn/discuz/images/common/back.gif
, R3 \7 A  ^$ x, g1 x1 T4 e7 F4340材料对应中国牌号40CrNi2Mo高强度钢!+ Z" @& m. P; r7 b
弹簧钢虽然疲劳强度和屈服强度很厉害,但芯部硬度太高!
5 j( F. ]% s$ {; V个人推荐:用38CrMnAl渗氮钢,表面渗氮处理,渗氮层0.7mm;表面硬度HRC60~65,我用过这种材料,最起码不会断裂!

9 P' t% N% ~" u0 ~0 ?& @! h
9 H: c! t0 J( Z5 h
0 ]+ l! B, w+ H# F* g# o; Z那么4340和38CrMnAl,相对来说,是后种材料更能承受大的扭矩吗?
发表于 2007-12-21 08:30:07 | 显示全部楼层 来自: 中国山东济南

回复 7# 的帖子

不好意思,第一种没用过,没有研究!1 X3 u7 w. A  t  a# ^6 Y6 }1 M; M
不过38CrMnAl我们正在用,也和你的情况一样,也是花键需要承受很大的扭矩!因芯部保持韧性,不会断!
; g9 ~6 K! c. I  M' T( ^6 C具体研究你发到咱们网站的热处理板块看看!
发表于 2007-12-21 10:21:43 | 显示全部楼层 来自: 中国吉林吉林市
轴断裂的位置正是应力集中点,38CrMnAl这种材质不错,但国外与国内的性能有一定的差别,如果做成空心轴,效果可能更好些

评分

参与人数 1三维币 +2 收起 理由
williswon + 2 技术讨论

查看全部评分

发表于 2007-12-21 13:09:21 | 显示全部楼层 来自: 中国黑龙江齐齐哈尔
各位,有外国牌号和中国牌号的对照表吗??望告知。
发表于 2007-12-21 14:02:29 | 显示全部楼层 来自: 中国福建泉州
4340材料是一种合金结构钢----铬镍钼钢,对应中国牌号40CrNiMoA,如想要提高其强度,可以通过:; f7 G/ M+ Z$ g$ j% d3 r
1.热处理:调质处理后再进行表面高频;
& G) U" P( |8 s% z* v: p2.结构上的设计:避免尖角过渡;% a5 m; `- S6 ]: Z' r
3.外径可加大。

评分

参与人数 1三维币 +3 收起 理由
williswon + 3 技术讨论

查看全部评分

发表于 2007-12-21 14:37:10 | 显示全部楼层 来自: 中国山东聊城
具说40Cr是优秀调质钢,做轴是非常好的材料。在楼主的图中应该考虑轴颈处圆弧要到位,避免应力集中。

评分

参与人数 1三维币 +3 收起 理由
williswon + 3 技术讨论

查看全部评分

 楼主| 发表于 2007-12-23 11:56:49 | 显示全部楼层 来自: 新加坡
:) :) :) :) :) :) :) 谢谢各位
发表于 2007-12-23 12:22:09 | 显示全部楼层 来自: 中国江苏常州
38CrMoAlA氮化处理要控制脆化等级,否则还是会应力断裂的。
发表回复
您需要登录后才可以回帖 登录 | 注册

本版积分规则


Licensed Copyright © 2016-2020 http://www.3dportal.cn/ All Rights Reserved 京 ICP备13008828号

小黑屋|手机版|Archiver|三维网 ( 京ICP备2023026364号-1 )

快速回复 返回顶部 返回列表