QQ登录

只需一步,快速开始

登录 | 注册 | 找回密码

三维网

 找回密码
 注册

QQ登录

只需一步,快速开始

展开

通知     

查看: 2431|回复: 15
收起左侧

[已解决] 这个阀怎么搞?

[复制链接]
发表于 2007-12-24 14:57:25 | 显示全部楼层 |阅读模式 来自: 中国安徽铜陵

马上注册,结识高手,享用更多资源,轻松玩转三维网社区。

您需要 登录 才可以下载或查看,没有帐号?注册

x
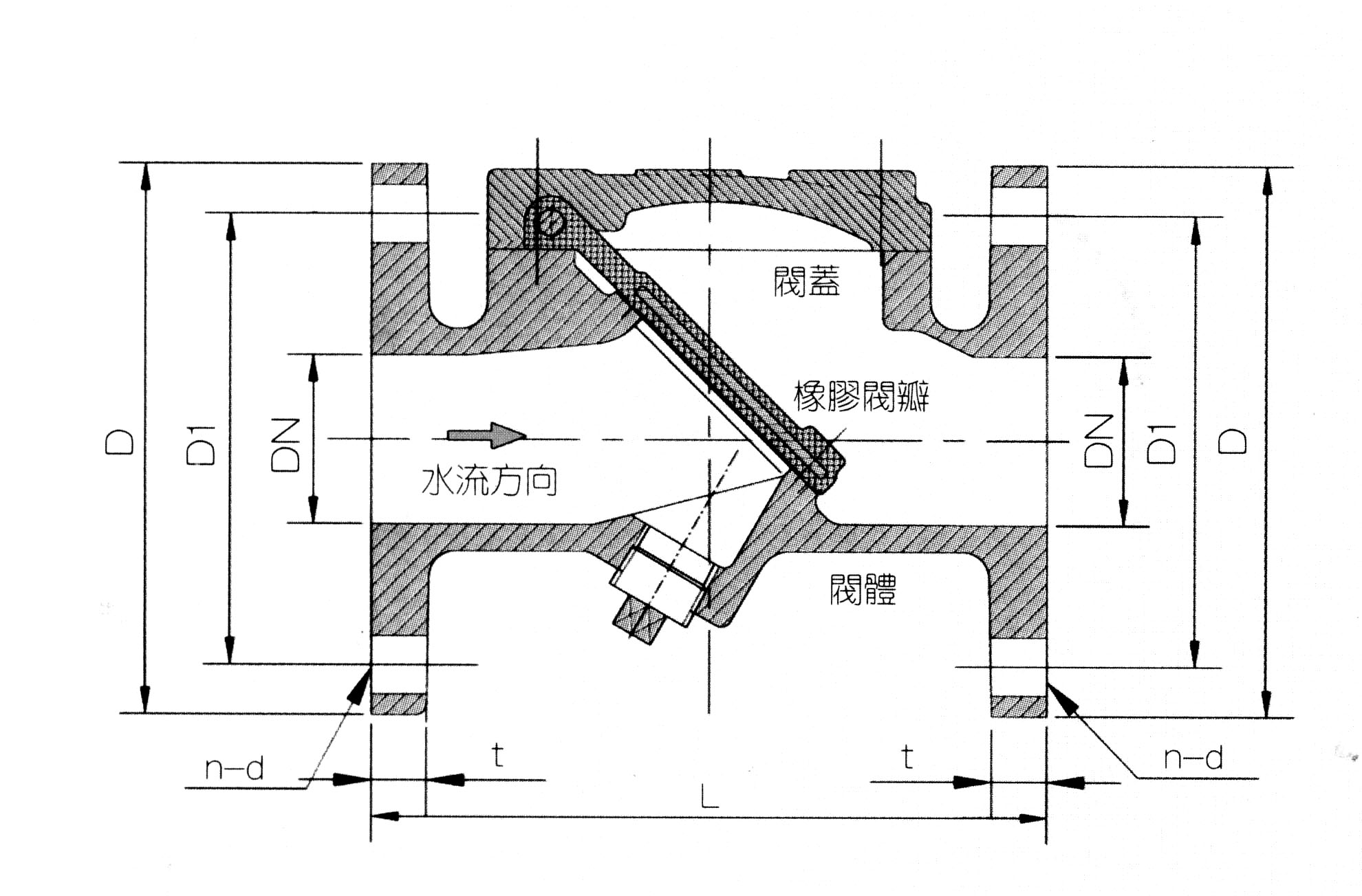
这是一个特种阀,大肚子型的,全过渡,水损小,本人攻城数日未果,请高人指点..请回附原文件.为感!
. n1 Q, K0 {$ ]1 p. }1 M9 ?4 p
0 W) L* p. |7 h+ m% ]" H4 ]. j1 e这是橡胶瓣止回阀,阀瓣的颈部是橡胶的,,开启角度仅为30度左右.... hc44x带油缸.jpg / K( {: w" I( a; H6 W6 C

5 ^/ [( S/ k' y/ A- c[ 本帖最后由 tdty06 于 2007-12-25 10:07 编辑 ]
2_2.jpg

实物图因口径小没配油缸

实物图因口径小没配油缸

是不是图大了,怎么实物图传不上哟!!!

是不是图大了,怎么实物图传不上哟!!!
发表于 2007-12-24 16:41:02 | 显示全部楼层 来自: 中国广东中山
楼主的意思是把3D图画出来吗?
发表于 2007-12-24 17:09:33 | 显示全部楼层 来自: 中国广东惠州
这种阀是防返流的吧,不过楼主给的2D图不全,不好出3D图.
发表于 2007-12-24 19:16:15 | 显示全部楼层 来自: 中国上海
这是个旋启式止回阀,结构长度,法兰尺寸以及壁厚要根据压力和口径来确定.应该不会有什么难度.
发表于 2007-12-24 19:23:46 | 显示全部楼层 来自: 中国浙江台州
此阀按楼主的图看来,阀瓣转动有点困难,感觉动不了
发表于 2007-12-24 20:21:10 | 显示全部楼层 来自: 中国台湾
原帖由 艾飞 于 2007-12-24 19:23 发表 http://www.3dportal.cn/discuz/images/common/back.gif' t2 \  X1 ]+ j' v
此阀按楼主的图看来,阀瓣转动有点困难,感觉动不了

) x6 x( h8 g/ ]$ s5 k7 t. M- l5 x* r" O  S; B( D. V
看起來是轉不動  可能閥瓣都是橡膠的吧 或許還有可能 :D
发表于 2007-12-24 22:11:40 | 显示全部楼层 来自: 中国广东
从图中结构来看,应该是很难打开,如果打开了又可能无法关闭,不知是不是这样。
发表于 2007-12-25 08:22:13 | 显示全部楼层 来自: 中国河北沧州
上部开孔怎么放螺栓,看图的比例应该放不进去。
发表于 2007-12-25 09:18:17 | 显示全部楼层 来自: 中国广东中山
原帖由 艾飞 于 2007-12-24 19:23 发表 http://www.3dportal.cn/discuz/images/common/back.gif
: Q+ `% e: o5 Y/ O此阀按楼主的图看来,阀瓣转动有点困难,感觉动不了

6 f8 |9 W+ Q9 ], u9 {' X6 k1 F1 X( f0 t3 r, f( ?0 M6 s$ K/ D7 b! X9 o
按道理应该可以,只是楼主给的资料数据不全,我想应该是标准件吧,没接触过,不太清楚!5 B! J1 u, k& d  [8 G

$ d+ _; N5 F; r[ 本帖最后由 mr.lee 于 2007-12-25 09:20 编辑 ]
 楼主| 发表于 2007-12-29 15:58:12 | 显示全部楼层 来自: 中国安徽铜陵

自己的事自己做了,攻城日久,终于完全..

此造型全曲面阀体,干涉,COM../ANI.../均运行正常,材质为球铁,本人监工.
橡胶瓣逆止.jpg
发表于 2007-12-29 19:53:29 | 显示全部楼层 来自: 中国台湾
原帖由 tdty06 于 2007-12-29 15:58 发表 http://www.3dportal.cn/discuz/images/common/back.gif. y$ n" B" c( d2 A6 ?
此造型全曲面阀体,干涉,COM../ANI.../均运行正常,材质为球铁,本人监工.

9 V/ i$ a) E3 [8 b& \  b1 O; W  o* n7 g6 R* P) D- C% T
能說說閥瓣是如何運動的嗎 :handshake    是不是全橡膠
 楼主| 发表于 2008-1-17 16:15:42 | 显示全部楼层 来自: 中国安徽铜陵

回答楼上的..

是全包胶,,中间是碳钢202牌号的.依靠颈部的全橡胶结构,只需打开30度左右即可了..* _: \0 B% e0 Y5 s1 h) Z* `

8 V7 }4 v8 D- A) m# [6 u[ 本帖最后由 tdty06 于 2008-1-17 16:16 编辑 ]
发表于 2008-1-17 20:21:28 | 显示全部楼层 来自: 中国河南安阳
解释一下,没有看太懂.
发表于 2008-1-17 21:26:56 | 显示全部楼层 来自: 中国浙江嘉兴
原帖由 tdty06 于 2008-1-17 16:15 发表 http://www.3dportal.cn/discuz/images/common/back.gif4 R0 r+ K$ F+ ]! R8 v) `6 f
是全包胶,,中间是碳钢202牌号的.依靠颈部的全橡胶结构,只需打开30度左右即可了..
. d4 j9 ]! j7 z, c$ v
是不是依靠橡胶的弹性开关!!!!!
发表于 2008-1-17 21:28:44 | 显示全部楼层 来自: 中国浙江嘉兴
感觉阀的上半部是动不了的
发表于 2008-1-18 08:34:39 | 显示全部楼层 来自: 中国广东中山
原帖由 lsl721 于 2008-1-17 21:26 发表 http://www.3dportal.cn/discuz/images/common/back.gif
9 e  a  _) P. Y, A4 v2 z2 W
1 Z0 Z4 S; J/ \5 z3 r- o9 o是不是依靠橡胶的弹性开关!!!!!
/ }0 w* `- Y) m' C
/ D) P3 P$ P7 j6 W
应该是,否则开不了
发表回复
您需要登录后才可以回帖 登录 | 注册

本版积分规则


Licensed Copyright © 2016-2020 http://www.3dportal.cn/ All Rights Reserved 京 ICP备13008828号

小黑屋|手机版|Archiver|三维网 ( 京ICP备2023026364号-1 )

快速回复 返回顶部 返回列表