|
|

楼主 |
发表于 2008-1-5 19:51:43
|
显示全部楼层
来自: 中国湖南邵阳
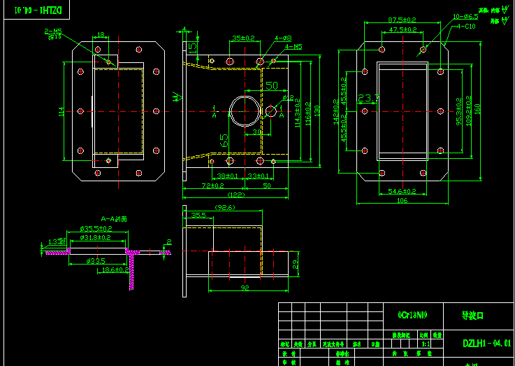
总练习区看到的几道建模题
继续总练习区看到的几道建模题。, l/ }( z/ J1 g0 `
- ^$ {" ~4 S* m/ t" w/ j! q[ 本帖最后由 xuhongejo 于 2008-1-9 00:38 编辑 ] |
-
原题4(比较简单)
-
-
-
-
冰激凌
-
冰激凌
-
风车
-
塑料椅
-
塑料椅
-
-
冰激凌.rar
1.16 MB, 下载次数: 156
冰激凌文件(sw2008sp1)
-
-
风车.rar
85.63 KB, 下载次数: 106
sw2008sp1文档
-
-
塑料椅子.rar
352.63 KB, 阅读权限: 100, 下载次数: 1
ws2008sp1文件
|