QQ登录

只需一步,快速开始

登录 | 注册 | 找回密码

三维网

 找回密码
 注册

QQ登录

只需一步,快速开始

展开

通知     

查看: 1507|回复: 3
收起左侧

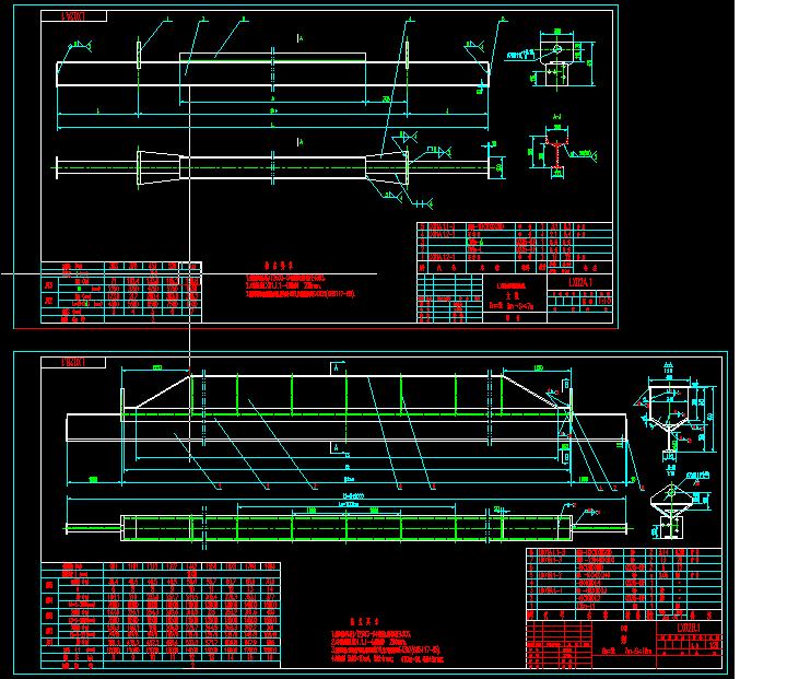
[分享] 2吨LX主梁端梁图纸

[复制链接]
发表于 2008-1-15 16:42:25 | 显示全部楼层 |阅读模式 来自: 中国内蒙古鄂尔多斯

马上注册,结识高手,享用更多资源,轻松玩转三维网社区。

您需要 登录 才可以下载或查看,没有帐号?注册

x
2吨LX端梁图纸
. m- r  @  g; b; w9 ^# ^' s6 {, n) @, |' \5 V+ h: _9 j: J
[ 本帖最后由 z6z6j6 于 2008-1-15 17:27 编辑 ]
dl.jpg

2t 悬挂吊端梁.rar

38.89 KB, 下载次数: 26

 楼主| 发表于 2008-1-15 16:43:48 | 显示全部楼层 来自: 中国内蒙古鄂尔多斯

2吨LX主梁图纸

2吨LX端梁图纸
主梁.jpg

2t悬挂吊主梁.rar

69.5 KB, 下载次数: 23

评分

参与人数 1三维币 +5 收起 理由
z6z6j6 + 5 好资料,感谢对论坛的支持!

查看全部评分

发表于 2008-1-15 22:01:48 | 显示全部楼层 来自: 中国浙江杭州
不错的资料,非常感谢桃木梳子
发表于 2008-5-18 09:33:11 | 显示全部楼层 来自: 中国山东烟台
LX主梁端梁结构形式都是大同小异
发表回复
您需要登录后才可以回帖 登录 | 注册

本版积分规则


Licensed Copyright © 2016-2020 http://www.3dportal.cn/ All Rights Reserved 京 ICP备13008828号

小黑屋|手机版|Archiver|三维网 ( 京ICP备2023026364号-1 )

快速回复 返回顶部 返回列表