QQ登录

只需一步,快速开始

登录 | 注册 | 找回密码

三维网

 找回密码
 注册

QQ登录

只需一步,快速开始

展开

通知     

全站
7天前
查看: 2673|回复: 6
收起左侧

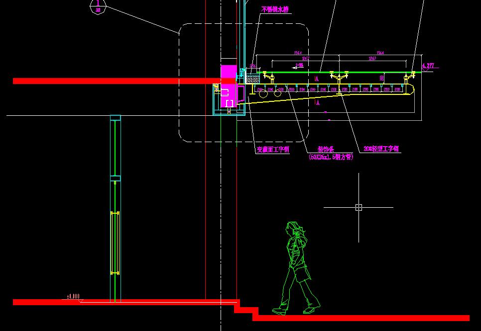
[分享] 小雨棚

[复制链接]
发表于 2008-1-16 15:04:57 | 显示全部楼层 |阅读模式 来自: 中国上海

马上注册,结识高手,享用更多资源,轻松玩转三维网社区。

您需要 登录 才可以下载或查看,没有帐号?注册

x
从其它网上找的,看了一下还可以,和大家一起分享
00.JPG

14小雨棚-01.rar

298.13 KB, 下载次数: 81

评分

参与人数 1三维币 +5 收起 理由
唐昕晨 + 5 资料共享

查看全部评分

发表于 2008-1-17 21:25:24 | 显示全部楼层 来自: 中国江苏南京
不错的图,我单位就是用的类似的结构
发表于 2008-1-18 08:17:12 | 显示全部楼层 来自: 中国山东威海
公共汽车站台使用?
 楼主| 发表于 2008-1-18 09:06:02 | 显示全部楼层 来自: 中国上海
帖出的只是一部分,打开看有好几个视图.
发表于 2008-1-18 09:13:49 | 显示全部楼层 来自: 中国陕西延安
谢谢楼主,支持楼主,
发表于 2008-1-18 10:13:48 | 显示全部楼层 来自: 中国广东广州
谢谢楼主分享,这个图还不错的
发表于 2017-2-10 19:26:13 | 显示全部楼层 来自: 中国江西吉安

# p6 K8 i- i3 w, A; | 谢谢楼主分享,这个图还不错的
发表回复
您需要登录后才可以回帖 登录 | 注册

本版积分规则


Licensed Copyright © 2016-2020 http://www.3dportal.cn/ All Rights Reserved 京 ICP备13008828号

小黑屋|手机版|Archiver|三维网 ( 京ICP备2023026364号-1 )

快速回复 返回顶部 返回列表