QQ登录

只需一步,快速开始

登录 | 注册 | 找回密码

三维网

 找回密码
 注册

QQ登录

只需一步,快速开始

展开

通知     

查看: 8299|回复: 52
收起左侧

[讨论] 精密小型级进模加工

[复制链接]
发表于 2008-1-22 15:44:24 | 显示全部楼层 |阅读模式 来自: 中国江苏镇江

马上注册,结识高手,享用更多资源,轻松玩转三维网社区。

您需要 登录 才可以下载或查看,没有帐号?注册

x
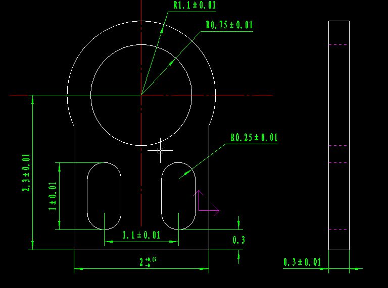
诚心求助!!& \9 V. O& t& v$ C! D- F
此产品材质为医用316L不锈钢板,厚0.3MM! O: i" P( ^+ q/ }# r1 Y( f' B
求购此产品生产所用模具,此产品量奇大,模具长期要用!!+ L( p) u. j" f3 s# h
如有诚心帮助者,价格等具体事宜请电话联系或我去你处当面详谈!联系电话:13852920798  向生
2.jpg
 楼主| 发表于 2008-2-16 17:26:08 | 显示全部楼层 来自: 中国江苏镇江
怎么没有一个人支持我呀!大家帮忙想想办法吧!
发表于 2008-2-18 16:03:45 | 显示全部楼层 来自: 中国广东深圳
这个看起来不难啊,自己搞不定吗
 楼主| 发表于 2008-2-22 15:12:31 | 显示全部楼层 来自: 中国江苏镇江
真的是不好意思,我本人就正因为搞不定才向大家求助的呀!楼上的朋友能帮我想想办法或是帮我做成成品吗?万分感谢!
发表于 2008-2-23 17:12:15 | 显示全部楼层 来自: 中国福建泉州
图纸上的尺寸精度要求较高,是有难度。开模时应考虑模具的磨损问题,否则尺寸很容易超差。
发表于 2008-2-23 21:33:04 | 显示全部楼层 来自: 中国江苏苏州

新手请教!

请问级进模是什么模具啊?是不是所谓的冲模?
 楼主| 发表于 2008-2-24 18:19:13 | 显示全部楼层 来自: 中国江苏镇江
我想请教各位大侠,这样的尺寸用什么机器来加工这付模具呢?用线切割吗?快走还是慢走丝的?这样的模具要用什么模具材料来制造呢?模具做好后,用什么样的机床生产才能保证高精度以求不损伤模具呢?" y( Z/ c- T) f
快急死了!大家帮帮我吧! ;)
 楼主| 发表于 2008-2-24 18:22:51 | 显示全部楼层 来自: 中国江苏镇江

回复 6# 的帖子

级进模是冲床复合模的一种,它是在一个机械动作中打孔和落料同时进行的模具,各地名称说法不一样,也许你见过或知道的!
 楼主| 发表于 2008-2-26 11:34:52 | 显示全部楼层 来自: 中国江苏镇江
论坛里这么多的能人,难道就没有一个人能帮帮我吗?
 楼主| 发表于 2008-2-26 11:36:25 | 显示全部楼层 来自: 中国江苏镇江
是不是我这个东东太难了,把大家都给难住了呀!平时所谓的团队精神,平时所谓的精诚合作都到哪里去了哟!!
 楼主| 发表于 2008-2-26 11:37:28 | 显示全部楼层 来自: 中国江苏镇江
我们这个版本的版主你也要组织大家来帮帮我呀!!
; B6 ]2 k! c8 ~! c( O- Q$ b急得要死哟!!!
发表于 2008-2-26 11:42:15 | 显示全部楼层 来自: 中国台湾
用冲床做啊..去外面问问加工厂啊..
发表于 2008-2-26 11:42:51 | 显示全部楼层 来自: 中国台湾
你不去外面看看..怎做你想要ㄉ模具啊
 楼主| 发表于 2008-2-26 12:33:33 | 显示全部楼层 来自: 中国江苏镇江
这位大姐呀,我问过了,就是因为他们都说做不了,我才在论坛上求助的呀,我知道用冲床做,但是什么冲床能有这么高的精度呢?这么小的小径,用什么机床来加工呢?请速答复,谢谢!!!
 楼主| 发表于 2008-3-1 11:44:06 | 显示全部楼层 来自: 中国江苏镇江
气死我了,这么多的人都不能帮我把这个模具搞定,哪怕是出出主意也行呀,或都聚聚人气,.......9 c3 F3 B8 X) @* t9 V
看样子,大家平时说些空洞的大道理,头头是道,一但碰到实际的问题了,大家全不说话了,全当做看不见!悲呀!!!!!!!!!!!
发表于 2008-3-1 17:06:32 | 显示全部楼层 来自: 中国天津
精度很高,确实不好做啊,
& u0 c8 B2 M0 W1 Y( N建议用慢丝加工,材料最少要用asp23,可以考虑Tinc
: B% }* E4 g% K0 n2 A/ b( q用硬制合金造价会更高.
发表于 2008-3-1 17:15:37 | 显示全部楼层 来自: 中国广东中山
楼主的这个零件设计模具不难,难在模具加工精度,还有对设备(冲床)要求也高,一般的厂家做不来!
 楼主| 发表于 2008-3-2 11:44:37 | 显示全部楼层 来自: 中国江苏镇江
不管是不是能做,首先我非常非常感谢楼上的兄弟给我的建议,
! I  ?3 U% e1 e0 X1 `( M现在的问题是我问过了慢走丝加工厂,他们说这么小不能割哟!!!
8 t2 ]( R5 L: H3 G这位兄弟还有更好的办法吗?
7 |9 t: P; E+ o& a谢谢你了!
发表于 2008-3-2 17:54:38 | 显示全部楼层 来自: 中国天津
慢丝最小可以带0.05的铜线,不过这种机床很难找到做外加工的
) b4 g% h5 q. g2 j/ D8 y我不知道楼主在什么地区,估计就算找到了价格也不会低.
0 ]5 n- ~. ~6 I3 z0 ~# J3 M  T9 Y% j楼主的工件0.15~0.2的丝应该就可以满足了,
5 r% S" O8 S6 M0 A不知道工件还有没有其他的要求,是否允许有接刀,平面要求是多少
发表于 2008-3-2 18:20:59 | 显示全部楼层 来自: 中国黑龙江哈尔滨
不行就做水切割或激光切割吧
 楼主| 发表于 2008-3-3 12:16:35 | 显示全部楼层 来自: 中国江苏镇江

回复 19# 的帖子

我工厂在江苏省镇江地区丹阳市!
# |0 q' q, E2 Y# y5 w7 s$ w" k我全打听过了,都没有这种可加工的机器!不知道你那里有没有,价格不是问题!2 K! g8 T! y3 I$ C/ x' ?7 U5 s
而且产品表面没有其它特殊要求,但是不能有接缝!
  U- D+ O3 K- o. {3 [* N非常非常希望您能够为我提供一些帮助!!万分感谢!!!
 楼主| 发表于 2008-3-3 12:19:22 | 显示全部楼层 来自: 中国江苏镇江

回复 20# 的帖子

这位兄弟,你好,我还没有接触过水切割和激光切割,就是想问,水切割精度能达到吗?哪里可能加工,我们这边还没有呢,激光切割也没有!您能帮我想想办法吗?万分感谢!!!
 楼主| 发表于 2008-3-3 12:22:28 | 显示全部楼层 来自: 中国江苏镇江

回复 17# 的帖子

对的,现在就是说还没有找到合适的高精度加工机器设备!!!一句话,没有金刚钻,这个活做不了呀!!
 楼主| 发表于 2008-3-3 12:23:37 | 显示全部楼层 来自: 中国江苏镇江
精密小型级进模加工1 ?& c. M/ L8 e! g* y: J! c
诚心求助!!/ x. M" ]# S8 {  B# i% T" }( K/ w
此产品材质为医用316L不锈钢板,厚0.3MM0 u+ I: x4 b: A+ I! C- Q
求购此产品生产所用模具,此产品量奇大,模具长期要用!!1 r$ D0 m* r0 S. |* [; A) t. `
如有诚心帮助者,价格等具体事宜请电话联系或我去你处当面详谈!联系电话:13852920798  向生- W7 t! i& j0 B$ H, a
附件' q; \3 s0 |( A/ {/ s# \$ ]3 f
2.jpg (40.56 KB)
. |7 N, U4 _0 y" O& A0 [2008-1-22 15:51
发表于 2008-3-3 13:28:18 | 显示全部楼层 来自: 中国北京
公差太严了,估计容易被黑,小心
发表回复
您需要登录后才可以回帖 登录 | 注册

本版积分规则


Licensed Copyright © 2016-2020 http://www.3dportal.cn/ All Rights Reserved 京 ICP备13008828号

小黑屋|手机版|Archiver|三维网 ( 京ICP备2023026364号-1 )

快速回复 返回顶部 返回列表