QQ登录

只需一步,快速开始

登录 | 注册 | 找回密码

三维网

 找回密码
 注册

QQ登录

只需一步,快速开始

展开

通知     

全站
11天前
查看: 1963|回复: 12
收起左侧

[已解决] 电机在液压工作中起什么作用

[复制链接]
发表于 2008-1-22 08:39:49 | 显示全部楼层 |阅读模式 来自: 中国广东广州

马上注册,结识高手,享用更多资源,轻松玩转三维网社区。

您需要 登录 才可以下载或查看,没有帐号?注册

x
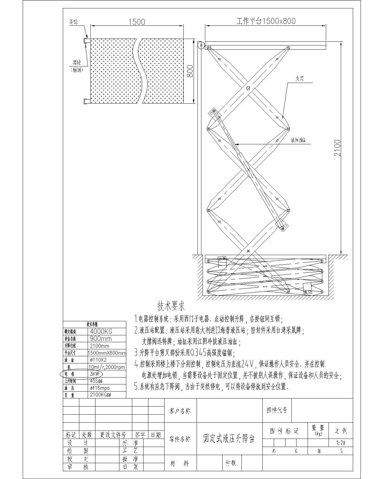
请问各位高手:我有一个固定式液压升降台的图纸有一点看不明白,为什么液压升降还要配一个电机?这个电机在液压工作中起什么作用啊?请高手指教,非常感谢!
发表于 2008-1-22 13:02:56 | 显示全部楼层 来自: 中国河南新乡
你将图纸沾上把5 s: O8 S& \5 Z2 G3 n5 w7 c& X& y
连个东西都没有
# u& L. R& g. j8 o  l1 t5 j5 H0 B你让谁给你解决问题了
发表于 2008-1-22 13:38:21 | 显示全部楼层 来自: 中国广东深圳
为什么液压升降还要配一个电机。我也想问你我 这个问题。如果是液压升降台,那肯定是油缸来传动的。除非上面也带丝杆升降。
 楼主| 发表于 2008-1-22 16:12:49 | 显示全部楼层 来自: 中国广东广州

电机在液压工作中起什么作用

请问各位高手:我有一个固定式液压升降台的图纸有一点看不明白,为什么液压升降还要配一个电机?这个电机在液压工作中起什么作用啊?请高手指教,非常感谢!
升降台.jpg
 楼主| 发表于 2008-1-22 16:14:45 | 显示全部楼层 来自: 中国广东广州
请高手帮忙,先谢了!
升降台.jpg
发表于 2008-1-22 16:22:01 | 显示全部楼层 来自: 中国广东深圳
这位兄弟,这个电机肯家是带动油泵的。没有它,乍会产生液压源。我对升降平台有些兴趣,能给我一些资料?我的邮箱是maoyouchun2003@yahoo.com.cn   多谢了
 楼主| 发表于 2008-1-22 16:32:38 | 显示全部楼层 来自: 中国广东广州
兄弟,你把这张图片下载啊。看得很清楚的,谢谢你的指点。
 楼主| 发表于 2008-1-22 16:34:01 | 显示全部楼层 来自: 中国广东广州
非常感谢上楼指点,谢谢!
发表于 2008-1-22 16:40:17 | 显示全部楼层 来自: 中国江苏常州
二楼说的正确,看图纸有油泵,另外小型的可以用手动泵油。
发表于 2008-1-22 18:36:23 | 显示全部楼层 来自: 中国北京
曾在一次展会上见过这种车,是 北京京城重工机械有限责任公司的。
2 ], C# Z& \5 c, \3 f: C% ]1 r' D这个电机就是液压动力源。, O$ P! c" S. E2 ~$ [
不知四轮驱动是否也是电机
/ _( `# C  a9 e- ~3 ^& T+ u4 R电源是拉线,还是用电瓶?
发表于 2008-2-19 10:16:15 | 显示全部楼层 来自: 中国山东日照
动力源 电机带动齿轮泵
发表于 2008-2-21 12:37:21 | 显示全部楼层 来自: 中国河南濮阳
曾维修过这样的系统中的油缸,电机为油泵驱动电机,四轮没有驱动动力 。
发表于 2008-2-21 14:06:18 | 显示全部楼层 来自: 中国上海
说的正确,看图纸有油泵,另外小型的可以用手动泵油。

评分

参与人数 1三维币 -1 收起 理由
晨砂 -1 复制他人发言

查看全部评分

发表回复
您需要登录后才可以回帖 登录 | 注册

本版积分规则


Licensed Copyright © 2016-2020 http://www.3dportal.cn/ All Rights Reserved 京 ICP备13008828号

小黑屋|手机版|Archiver|三维网 ( 京ICP备2023026364号-1 )

快速回复 返回顶部 返回列表