QQ登录

只需一步,快速开始

登录 | 注册 | 找回密码

三维网

 找回密码
 注册

QQ登录

只需一步,快速开始

展开

通知     

查看: 2276|回复: 18
收起左侧

[讨论] 没法完成

[复制链接]
发表于 2008-1-23 13:41:04 | 显示全部楼层 |阅读模式 来自: 中国浙江宁波

马上注册,结识高手,享用更多资源,轻松玩转三维网社区。

您需要 登录 才可以下载或查看,没有帐号?注册

x
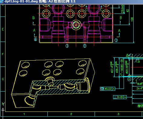
我不能完成此图,既在工程图中给立体图做一剖切,以便显示内部结构,请帮忙。
三维剖面图.jpg
发表于 2008-1-23 13:56:10 | 显示全部楼层 来自: 中国河北沧州
阶梯剖视不可以吗??
发表于 2008-1-23 15:35:46 | 显示全部楼层 来自: 中国山东聊城
试了一下,三维的可以实现,但转工程图没有成功,希望有高手解决
发表于 2008-1-23 15:41:54 | 显示全部楼层 来自: 中国广东佛山
我也期待!!!!
发表于 2008-1-23 16:02:09 | 显示全部楼层 来自: 中国湖北襄阳
二楼说的难道不行吗?
 楼主| 发表于 2008-1-24 19:58:27 | 显示全部楼层 来自: 中国浙江宁波

回复 5# 的帖子

没人知道吗?我用PROE可以做得出来,上图用PROE做完后转AUTOCAD后标的尺寸,但SOLIDWORKS不知怎样做,请版主指导一下。
发表于 2008-1-24 22:56:35 | 显示全部楼层 来自: 中国江苏南京

回复 6# 的帖子

既然用SW了还有必要用别的吗% }! O6 }, \, u8 N7 s2 v0 z4 y
你觉得呢
发表于 2008-1-24 22:58:29 | 显示全部楼层 来自: 中国江苏南京
他用的可是 AUTOCAD做的
发表于 2008-1-25 00:36:11 | 显示全部楼层 来自: 中国浙江杭州
SW肯定能做出来啦,看我的:
) @" C% E2 y. @9 u4 a) N 1.jpg
$ ^3 @' Z5 ^' |( Q) V) L1 l  P$ X8 [; y- ~, F$ f
用Part2生成工程图:  J  |9 B' h1 X# u: v- ?
2.jpg % h* b7 g5 g6 k. t$ x' P; H
- b4 ?, |% z/ `( L6 X
在零件Part1上新建一个视图,保存视图名称:& Y) b3 p, ]: E: I7 `8 r
130.gif & ]: V" }" [! x7 u! V
/ K& y* I* Q) j  a4 `/ D/ C) @
然后将刚才在零件Part1新建的视图插入到Part2的工程图中:" O3 ]9 T' @# a! }
130.gif
/ R9 c9 m7 w) i# N
5 }+ W3 ?. k. R9 n. h0 R& Y  W[ 本帖最后由 hahap 于 2008-1-25 00:51 编辑 ]
发表于 2008-1-25 07:16:58 | 显示全部楼层 来自: 中国广东广州
阶梯剖视就可以了,或在立体图中,加模型组态
 楼主| 发表于 2008-1-26 18:35:41 | 显示全部楼层 来自: 中国浙江宁波

回复 10# 的帖子

请您详细点好吗?我真的很想知道。
发表于 2008-1-27 07:02:12 | 显示全部楼层 来自: 中国上海
9楼的兄弟说的没错,已经挺详细了,添加一个新的配置就行了,工程图和立体图取不同的配置
发表于 2008-1-29 22:31:01 | 显示全部楼层 来自: 中国广东东莞
9楼的兄弟做得很对8 I: @: p8 V7 x- B) p
先做一个切割实体,然后再生成工程图,选择一个等角视图就可以
发表于 2008-1-29 23:25:14 | 显示全部楼层 来自: 中国台湾
用模型組態是不錯的選擇,單一零件對應單一工程圖
新圖片 (5).jpg
发表于 2008-1-29 23:39:45 | 显示全部楼层 来自: 中国广东广州
嘿嘿,是个油路块呢,SW特别擅长做这个
发表于 2008-1-30 08:28:43 | 显示全部楼层 来自: 中国浙江绍兴
9楼的真是高手,又学习了一招
发表于 2008-1-30 08:54:41 | 显示全部楼层 来自: 中国山东泰安
9楼高,实在是高!good
发表于 2008-1-30 17:07:14 | 显示全部楼层 来自: 中国山东潍坊
9楼真是太高了,佩服
发表于 2008-1-31 09:57:05 | 显示全部楼层 来自: 中国浙江嘉兴
非常好的交流,顶 good
发表回复
您需要登录后才可以回帖 登录 | 注册

本版积分规则


Licensed Copyright © 2016-2020 http://www.3dportal.cn/ All Rights Reserved 京 ICP备13008828号

小黑屋|手机版|Archiver|三维网 ( 京ICP备2023026364号-1 )

快速回复 返回顶部 返回列表