QQ登录

只需一步,快速开始

登录 | 注册 | 找回密码

三维网

 找回密码
 注册

QQ登录

只需一步,快速开始

展开

通知     

查看: 2434|回复: 8
收起左侧

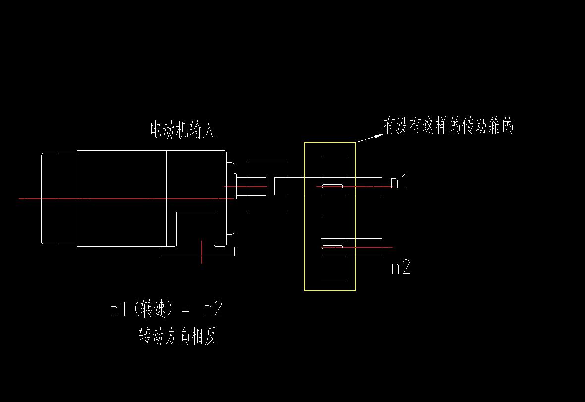
[求助] 有没有如图这样的传动箱的

[复制链接]
发表于 2008-1-25 14:17:52 | 显示全部楼层 |阅读模式 来自: 中国浙江杭州

马上注册,结识高手,享用更多资源,轻松玩转三维网社区。

您需要 登录 才可以下载或查看,没有帐号?注册

x
要求是电动机输入经过一传动箱(其它结构也行)后输出为两个轴,旋转方向相反,转速相等。以达到输送管料的目的如图2
5 p: a. [# A' f2 H
4 e9 G$ s. |1 V; t" @( x$ g* ^. H[ 本帖最后由 xlphzh 于 2008-1-25 14:22 编辑 ]
J方案.jpg
11.JPG
发表于 2008-1-25 14:36:07 | 显示全部楼层 来自: 中国河北石家庄
当然有了,这个是非常简单的齿轮箱,如果楼主能够提供接口尺寸和使用要求,我可以很容易的给出传动方案。) i+ D% a. x7 \+ e. |

3 s9 k' X$ @- i8 _' N; g[ 本帖最后由 sjh6007 于 2008-1-25 14:51 编辑 ]

评分

参与人数 1三维币 +2 收起 理由
hero2006 + 2 应助

查看全部评分

 楼主| 发表于 2008-1-25 20:53:01 | 显示全部楼层 来自: 中国浙江杭州

回复 2# 的帖子

那就麻烦你能大概说 一下吗,最好贴张图!
发表于 2008-1-25 23:29:55 | 显示全部楼层 来自: 中国江苏苏州
这就是我们常说的分配箱或牙箱,需要提供一些参数才能设计., Q/ W* R; r' L& z( z. b+ e
比如电机功率,转速,齿轮箱输出转速,两出轴的中心距,使用场合等.
发表于 2008-1-26 09:48:55 | 显示全部楼层 来自: 中国福建泉州
像这样的传动箱可以自己设计。
! q9 X& Y* ]3 x采用齿轮传动,轴1和轴2的齿轮齿数必须相等;具体设计方案如下:& s4 K, b* E0 I2 N% R3 o' |" h5 b
轴1的齿轮与电机上的齿轮直接捻和,而轴2 的齿轮与电机上的齿轮间加上一个附加齿轮(改变转动方向的作用)。
发表于 2008-1-26 12:17:56 | 显示全部楼层 来自: 中国浙江杭州
是啊,把要求写清楚,完全可以自己设计一个。
发表于 2008-1-26 18:01:21 | 显示全部楼层 来自: 中国山西太原
这样的传动机构实际应用中有很多,如双轴搅拌机,两个转子需相反方向转,作一对同样规格的齿轮,安装在一个箱体中,主动轴与电机之间还可以通过其它方式减速。
发表于 2008-1-26 21:06:14 | 显示全部楼层 来自: 中国湖北武汉
你的箱体中应该是4个齿轮,一对固定中心距,一对可调中心距.
 楼主| 发表于 2008-1-27 10:16:33 | 显示全部楼层 来自: 中国浙江杭州

回复 8# 的帖子

能说的明白一点吗?最好附张图
发表回复
您需要登录后才可以回帖 登录 | 注册

本版积分规则


Licensed Copyright © 2016-2020 http://www.3dportal.cn/ All Rights Reserved 京 ICP备13008828号

小黑屋|手机版|Archiver|三维网 ( 京ICP备2023026364号-1 )

快速回复 返回顶部 返回列表