QQ登录

只需一步,快速开始

登录 | 注册 | 找回密码

三维网

 找回密码
 注册

QQ登录

只需一步,快速开始

展开

通知     

全站
7天前
查看: 6689|回复: 14
收起左侧

[机械] 龙门吊图纸

[复制链接]
发表于 2008-1-30 19:28:20 | 显示全部楼层 |阅读模式 来自: 中国河南平顶山

马上注册,结识高手,享用更多资源,轻松玩转三维网社区。

您需要 登录 才可以下载或查看,没有帐号?注册

x
20t双梁) Y) Y4 S' ~1 J9 ?" }
5 v- ~$ l- I- y8 B+ a
[ 本帖最后由 ★新手★ 于 2008-1-30 21:51 编辑 ]

单梁龙门吊 20t 26m.rar

49.76 KB, 下载次数: 647

 楼主| 发表于 2008-1-30 19:30:01 | 显示全部楼层 来自: 中国河南平顶山

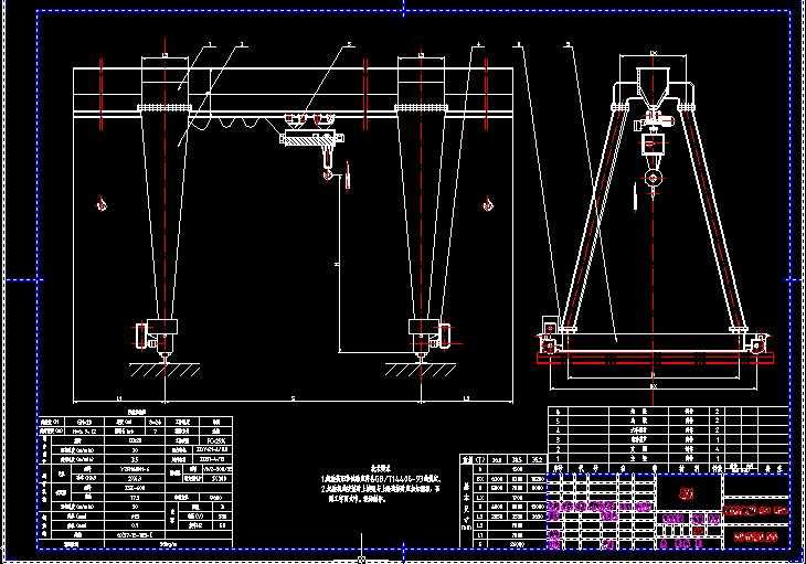
龙门吊图纸

.单梁
2 |1 ?' n# q; P+ `* f8 U3 F# w4 b6 p
[ 本帖最后由 ★新手★ 于 2008-1-30 21:51 编辑 ]

单梁龙门吊 20t 26m.rar

49.76 KB, 下载次数: 346

发表于 2008-2-1 14:30:12 | 显示全部楼层 来自: 中国江苏南京
好东西,朋友怎么搞到的啊
发表于 2008-2-1 14:37:25 | 显示全部楼层 来自: 中国江苏泰州
没尺寸???????????
发表于 2008-2-2 09:46:00 | 显示全部楼层 来自: 中国上海
是一个方案图没有多少尺寸的.
发表于 2008-2-2 20:04:58 | 显示全部楼层 来自: 中国浙江杭州
请教,一楼和二楼的压缩包是不是一样的啊?
发表于 2008-2-3 11:27:30 | 显示全部楼层 来自: 中国广东梅州
我就是做电动葫芦的! K* l8 p! [$ w& D
可惜我不敢上传公司的图纸
& {+ h- l0 o  Z1 A+ }  J`
8 q2 y+ g' ^- J: p6 X8 w, ``
发表于 2008-2-3 14:47:21 | 显示全部楼层 来自: 中国山东威海
一楼的朋友您好!您能将贵公司的名称提供一下吗?目前我公司厂房搬迁,需要各种吊车,目前采购部门正在寻找厂家,希望能与各方朋友合作
发表于 2008-4-13 00:31:09 | 显示全部楼层 来自: 中国湖南长沙

好东东

好东东,请教,一楼和二楼的压缩包是不是一样的啊?
发表于 2008-4-13 15:19:20 | 显示全部楼层 来自: 中国广东清远
下了先研究一下,很感兴趣的
发表于 2008-6-28 09:44:35 | 显示全部楼层 来自: 中国浙江温州
未命名.JPG
7 Z0 c& e0 P6 R$ K4 {$ ^' I量了一下,不是按一比一画的...

评分

参与人数 1三维币 +2 收起 理由
2005llnn + 2 感谢你的贴图!

查看全部评分

发表于 2008-6-30 13:49:46 | 显示全部楼层 来自: 中国天津
可惜了,不是1:1画得啊。。
发表于 2008-7-23 12:49:15 | 显示全部楼层 来自: 中国云南昆明
谢谢下载学习!!!!
发表于 2008-7-24 11:22:00 | 显示全部楼层 来自: 中国四川内江
可惜尺寸标注太少了~
发表于 2010-8-2 08:24:13 | 显示全部楼层 来自: 中国浙江杭州
好东西,谢谢楼主~
发表回复
您需要登录后才可以回帖 登录 | 注册

本版积分规则


Licensed Copyright © 2016-2020 http://www.3dportal.cn/ All Rights Reserved 京 ICP备13008828号

小黑屋|手机版|Archiver|三维网 ( 京ICP备2023026364号-1 )

快速回复 返回顶部 返回列表