QQ登录

只需一步,快速开始

登录 | 注册 | 找回密码

三维网

 找回密码
 注册

QQ登录

只需一步,快速开始

展开

通知     

查看: 2349|回复: 7
收起左侧

[求助] 高手们,看看这个轴承盖应该选择什么样的密封圈

[复制链接]
发表于 2008-2-1 15:14:37 | 显示全部楼层 |阅读模式 来自: 中国山东青岛

马上注册,结识高手,享用更多资源,轻松玩转三维网社区。

您需要 登录 才可以下载或查看,没有帐号?注册

x
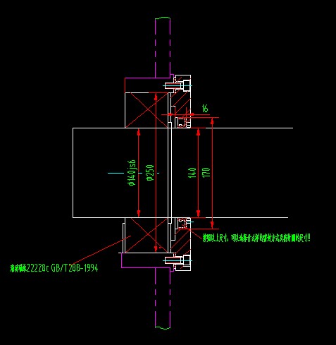
轴的转速大概再在400-600转/min,需要动密封,应该选择什么样的密封圈!密封效果如何!不允许漏气!! 根据我的图,能否选出密封圈的尺寸!还有一点,密封圈要耐二氯甲烷腐蚀
% n# L& D5 b: L0 Q4 B: |8 W: Z+ D+ a常压下:二氯甲烷极易挥发,所以要保证箱体的气密性5 O% h8 f# [3 A0 K5 m) j! @- P

4 r/ h2 O% o$ J- F5 A4 `/ ~" I[ 本帖最后由 胖胖的瘦猴 于 2008-2-1 16:47 编辑 ]
密封圈的选择.jpg
解释.jpg
发表于 2008-2-1 15:33:07 | 显示全部楼层 来自: 中国山西太原
根据图示结构,可采用唇形橡胶密封圈或聚四氟乙烯密封圈,前者密封性能好,后者更耐磨。
发表于 2008-2-1 15:38:09 | 显示全部楼层 来自: 中国北京
楼主,您的图太不清楚了。
& {) Z% B# K- d6 x& \' h- T4 ?但按您所说的要保证不漏气,估计不太好搞。8 j, {( O7 _; `2 r/ l- ?" q' s$ B3 L
一般的轴承密封大多是为防尘用的。防尘盖主要用在要求极限转速高,启动力矩小的场合,使用密封圈的正好相反。就算在安装初期可保证不漏气,但时间久了,密封件和轴之间也会磨损,难免会漏气的。而且好多轴承在安装后需要后期维护,在轴承座上或端盖上就必然有注油孔,有注油孔就必定有泄气孔(VENT HOLE),所以去保证不漏气我觉得没什么意义。

评分

参与人数 1三维币 +5 收起 理由
hero2006 + 5 技术讨论

查看全部评分

 楼主| 发表于 2008-2-1 15:54:17 | 显示全部楼层 来自: 中国山东青岛
我的想法:在轴承盖上、固定一个密封箱体!用轴承盖里的密封圈作为密封箱体与轴之间的动密封,不知道此法是否可行!
发表于 2008-2-1 16:39:39 | 显示全部楼层 来自: 中国浙江杭州
还要看气压多大..................
发表于 2008-2-24 21:00:05 | 显示全部楼层 来自: 中国安徽芜湖
实际上就是用密封纸垫,每个密封垫公司的标注都不一样,如克林格公司一般工况用的C4243之类的。3 l" Q! p6 Q- ^3 c' O. x9 m/ p
当然如果化工特殊工况,可以选用PTFE。
发表于 2008-2-24 21:40:49 | 显示全部楼层 来自: 中国江苏扬州
用的是骨架油封
发表于 2008-3-1 14:40:03 | 显示全部楼层 来自: 中国江苏徐州
由于气体的分子很小 一道密封是不保险的 建议用2道以上. o4 S1 g, P# B. t' b
另外密封介质是气体 还要考虑密封件的润滑问题

评分

参与人数 1三维币 +3 收起 理由
hero2006 + 3 鼓励新手应助

查看全部评分

发表回复
您需要登录后才可以回帖 登录 | 注册

本版积分规则


Licensed Copyright © 2016-2020 http://www.3dportal.cn/ All Rights Reserved 京 ICP备13008828号

小黑屋|手机版|Archiver|三维网 ( 京ICP备2023026364号-1 )

快速回复 返回顶部 返回列表